Contact Agent

Contact Simon Brien (East Belfast)

Contact Simon Brien (East Belfast)

Agricultural Land

Building Site Adjacent To, 112 Orangefield Road

Belfast, County Antrim, BT5 6DD

offers over £80,000
  • Status Sale Agreed
  • Property Type Agricultural Land
  • EPC Rating D62 / D68
  • Stamp Duty
    Higher amount applies when purchasing as buy to let or as an additional property
    £0 / £4,000*
  • Typical Mortgage
    Click price to use our mortgage calculator
EPC Rating

Key Features & Description

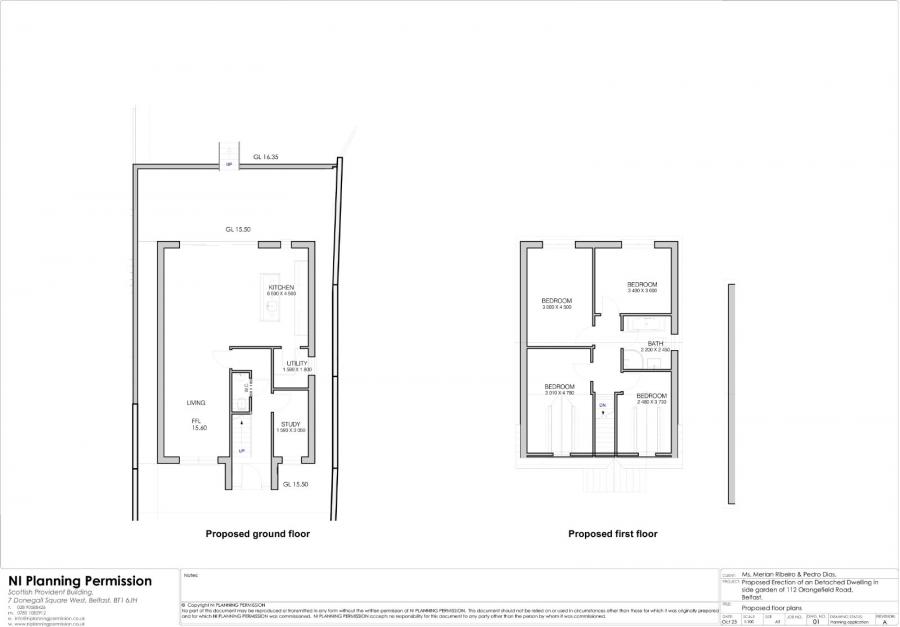
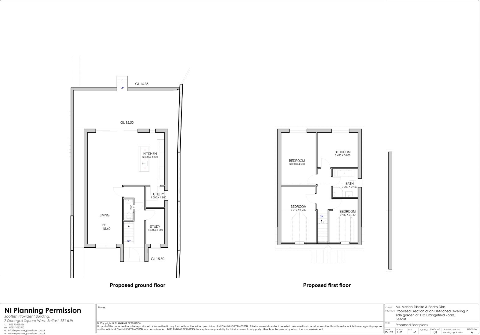
  • Building Site with Full Planning Permission for Detached House LA04/2023/4412/RM
  • Convenient Location Close To City Centre, Shops, Schools & Public Transport Links
  • Description
    The site is situated at the end of Orangefield Road which then becomes Sandhill Gardens. There are excellent transport links to Belfast City Centre along the Upper Newtownards Road with a wide variety of amenities nearby including the Ulster Hospital, Comber Greenway and Ballyhackamore Village within walking distance.

    Description & Planning

    Planning has been approved for a single detached dwelling (ref: LA04/2023/4412/RM) allowing for the purchaser to build their dream home and finish it to their own specification. The site is currently the side garden of No.112 with various plants trees and shrubs along the border, many of which could be retained giving extra privacy.

    LOCATION: Down to the bottom of 112 Orangefield Road just before Sandhill Gardens

    Broadband Speed Availability

    Ultrafast

    Potential Speeds for 112 Orangefield Road

    Max Download
    1800
    Mbps
    Max Upload
    220
    Mbps
    The speeds indicated represent the maximum estimated fixed-line speeds as predicted by Ofcom. Please note that these are estimates, and actual service availability and speeds may differ.

    Property Location

    Show Map

    Mortgage Calculator

    Disclaimer: The following calculations act as a guide only, and are based on a typical repayment mortgage model. Financial decisions should not be made based on these calculations and accuracy is not guaranteed. Always seek professional advice before making any financial decisions.

    Contact Agent

    Contact Simon Brien (East Belfast)

    Contact Simon Brien (East Belfast)

    Request More Information
    Requesting Info about...
    Building Site Adjacent To, 112 Orangefield Road, Belfast, County Antrim, BT5 6DD Building Site Adjacent To, 112 Orangefield Road, Belfast, County Antrim, BT5 6DD

    By registering your interest, you acknowledge our Privacy Policy