Contact Agent

Contact Templeton Robinson (Ballyhackamore)

Contact Templeton Robinson (Ballyhackamore)

3 Bed Semi-Detached House

31 Orangefield Parade

Orangefield, Belfast, BT5 6DE

offers over £225,000
  • Status For Sale
  • Property Type Semi-Detached
  • Bedrooms 3
  • Receptions 2
  • Heating Gas
  • EPC Rating D62 / C80 -
  • Stamp Duty
    Higher amount applies when purchasing as buy to let or as an additional property
    £2,000 / £13,250*
  • Typical Mortgage
    Click price to use our mortgage calculator
EPC Rating

Key Features & Description

Impressive, Semi-detached home
Popular residential location
Three well-proportioned bedrooms
Living room to front with feature fireplace
Additional reception room
Solid oak kitchen with access to rear
Family bathroom on first floor
Driveway / detached garage with power & light
Enclosed south facing rear garden
Excellent amenities in Ballyhack & Belmont Villages close by
Transport links to Belfast City Centre
No onward chain
Description
This semi-detached property will be sure to appeal to a wide range of purchasers. Conveniently located, it is within comfortable walking distance of Ballyhackamore village and its array of amenities, plus close to a Glider stop ideal for commuters. With the property close to the Comber Greenway, it is also the ideal for keen cyclists and walkers.

The accommodation comprises of two reception rooms, separate kitchen to the ground floor, and three bedrooms plus bathroom to the first floor. Externally, there is a well manicured garden to rear with south facing aspect, detached garage, plus driveway parking to the front.

Early viewing is highly recommended as we expect high levels of interest.

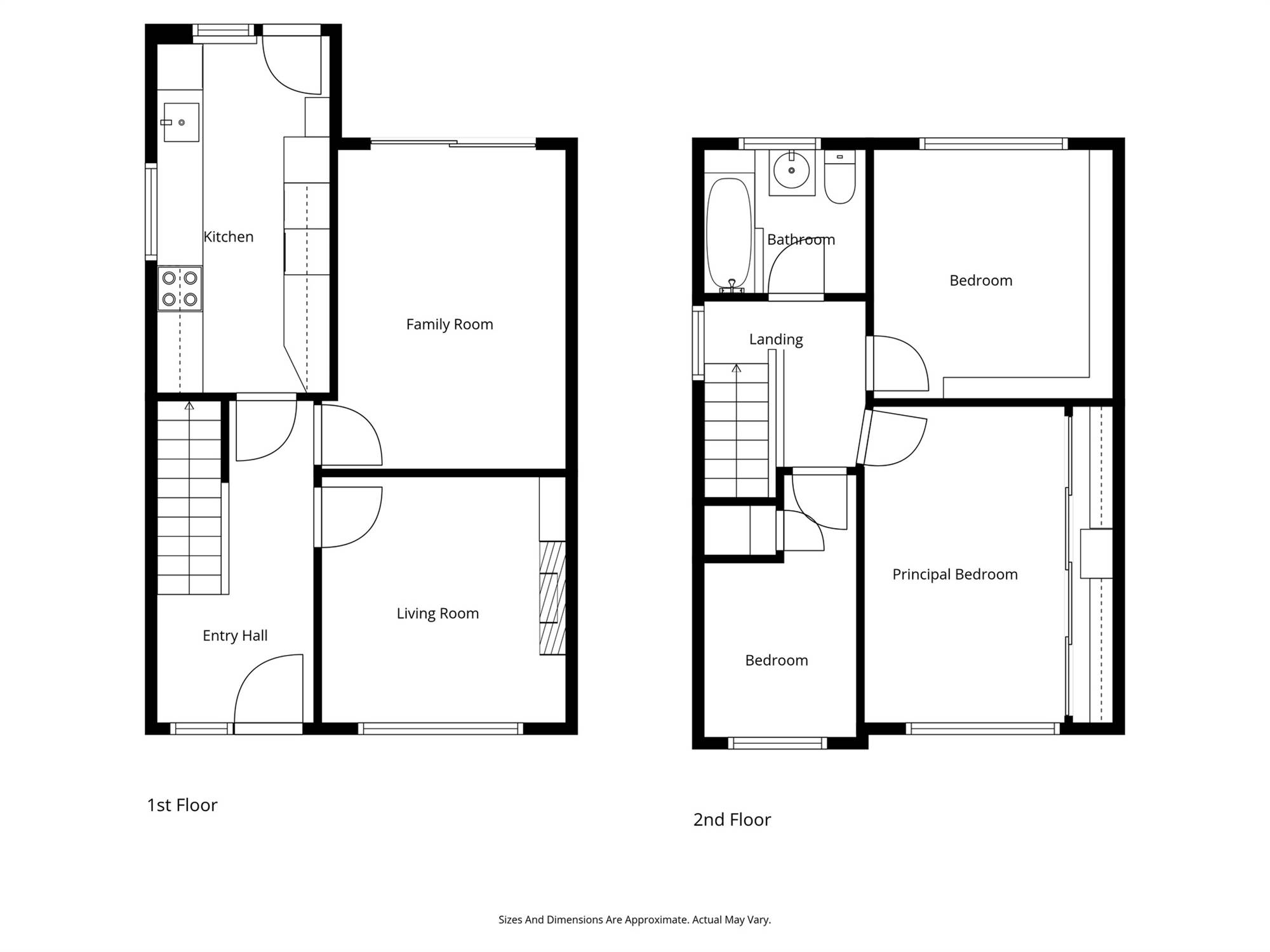
Rooms

uPVC front door to . . .
ENTRANCE HALL: Solid wooden flooring. Understairs storage.
LIVING ROOM: 10' 6" X 10' 5" (3.21m X 3.18m) Wood effect flooring. Feature fireplace. Cornice ceiling.
FAMILY ROOM: 13' 8" X 10' 6" (4.17m X 3.19m) Solid wooden flooring. Cornice ceiling.
KITCHEN: 15' 3" X 7' 5" (4.65m X 2.26m) Range of high and low level solid oak unit, work surfaces. Stainless steel sink unit with mixer tap. Space for oven and hob, extractor fan. Space for tumble dryer. Plumbed for washing machine. Space for fridge freezer. Tiled splashback. uPVC door to rear.
LANDING: Access to roofspace.
PRINCIPAL BEDROOM: 13' 7" X 8' 7" (4.13m X 2.62m) Wood effect flooring. Walll to wall built-in wardrobe storage.
BEDROOM (2): 10' 8" X 10' 3" (3.24m X 3.12m) Wood effect flooring.
BEDROOM (3): 11' 3" X 6' 6" (3.43m X 1.98m) (at widest points). Wood effect flooring. Storage cupboard.
BATHROOM: White suite comprising dual flush wc, vanity unit with ceramic sink and mixer tap. Panelled bath with thermostatic shower and glass screen. Part-tiled walls.
DETACHED GARAGE: 16' 8" X 9' 3" (5.07m X 2.82m) Light and power. Roller shutter door.
FRONT: Brick pavior driveway parking.
REAR: Enclosed south facing rear garden laid in lawn. Additional patio area. Raised flower beds and mature shrubbery. Outside light and tap.

Broadband Speed Availability

Ultrafast

Potential Speeds for 31 Orangefield Parade

Max Download
1800
Mbps
Max Upload
220
Mbps
The speeds indicated represent the maximum estimated fixed-line speeds as predicted by Ofcom. Please note that these are estimates, and actual service availability and speeds may differ.

Property Location

Show Map

Mortgage Calculator

Disclaimer: The following calculations act as a guide only, and are based on a typical repayment mortgage model. Financial decisions should not be made based on these calculations and accuracy is not guaranteed. Always seek professional advice before making any financial decisions.

Directions

Travelling along North Road from Ballyhackamore, turn left onto Orangefield Road and right into Orangefield Grove before taking the first left onto Orangefield Parade. Number 31 is located on the right hand side.

Contact Agent

Contact Templeton Robinson (Ballyhackamore)

Contact Templeton Robinson (Ballyhackamore)

Request More Information
Requesting Info about...
31 Orangefield Parade, Orangefield, Belfast, BT5 6DE 31 Orangefield Parade, Orangefield, Belfast, BT5 6DE

By registering your interest, you acknowledge our Privacy Policy
Ask Holmes
Ask Holmes
Let's find your next home

Are you sure you want to reset the chat?

Checking API...