Contact Agent

Contact CPS Omagh

Contact CPS Omagh

4 Bed Site

2 Sites Adjacent To 39 Knockmoyle Road

Omagh, BT79 7TB

price £40,000
  • Status Sale Agreed
  • Property Type Site
  • Bedrooms 4
  • Stamp Duty
    Higher amount applies when purchasing as buy to let or as an additional property
    £0 / £2,000*
  • Typical Mortgage
    Click price to use our mortgage calculator

Description

Ready to go!

CPS welcome to the market two excellent sites with full planning permission located off the Knockmoyle/Reaghan Road, Omagh.

This is an ideal opportunity for those longing to build their dream home nestled in the countryside whilst only being a short drive from Omagh Town Centre. This excellent site benefits from close by water and electric supply.

For further information or to arrange a viewing contact CPS Omagh on 0288 2252820!

- Two Excellent Sites With Full Planning Permission
- House Type A Circa. 1540 Sq Ft
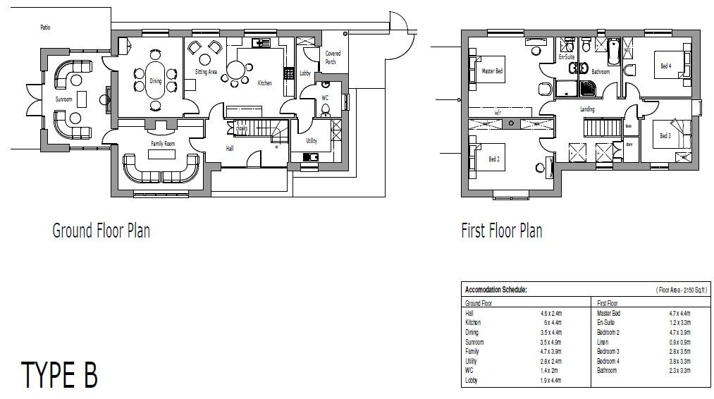
- House Type B Circa. 2150 Sq Ft
- Application No: LA10/2021/1032/F
- Contemporary Family Homes
- Excellently Located From Omagh Town Centre
- Taking Offers Over £40,000 Per Site

Property Location

Show Map

Mortgage Calculator

Disclaimer: The following calculations act as a guide only, and are based on a typical repayment mortgage model. Financial decisions should not be made based on these calculations and accuracy is not guaranteed. Always seek professional advice before making any financial decisions.

Contact Agent

Contact CPS Omagh

Contact CPS Omagh

Request More Information
Requesting Info about...
2 Sites Adjacent To 39 Knockmoyle Road, Omagh, BT79 7TB 2 Sites Adjacent To 39 Knockmoyle Road, Omagh, BT79 7TB

By registering your interest, you acknowledge our Privacy Policy
Ask Holmes
Ask Holmes
Let's find your next home

Are you sure you want to reset the chat?

Checking API...