Contact Agent

Contact Corry and Stewart

Contact Corry and Stewart

4 Bed Semi-Detached House

14 Eden Wood

Omagh, BT78 5FL

offers around £219,950
  • Status Under Offer
  • Property Type Semi-Detached
  • Bedrooms 4
  • Receptions 1
  • Bathrooms 2
  • Rates
    Rate information is for guidance only and may change as sources are updated.
    £1253.00
  • Heating Gas
  • EPC Rating B83 / B83
  • Stamp Duty
    Higher amount applies when purchasing as buy to let or as an additional property
    £1,899 / £12,897*
  • Typical Mortgage
    Click price to use our mortgage calculator
EPC Rating

Property Financials

  • Offers Around £219,950
  • Rates £1253.00

Key Features & Description

* Stunning Semi-Detached Home
* 4 Bedrooms with Master Bedroom
* Spacious Lounge With Wood Burning Stove
* Excellent Energy Efficiency Rating
* Beautifully Finished Property
* Solid Oak Internal Doors
* Gas Central Heating
* Spacious And Mature Site
* Walking Distance to Town Centre
* Prewired for Burglar Alarm
* Must be Viewed to be Fully Appreciated
* Sought After and Convenient Location
* Taking Opening Offers From £215,000
Description

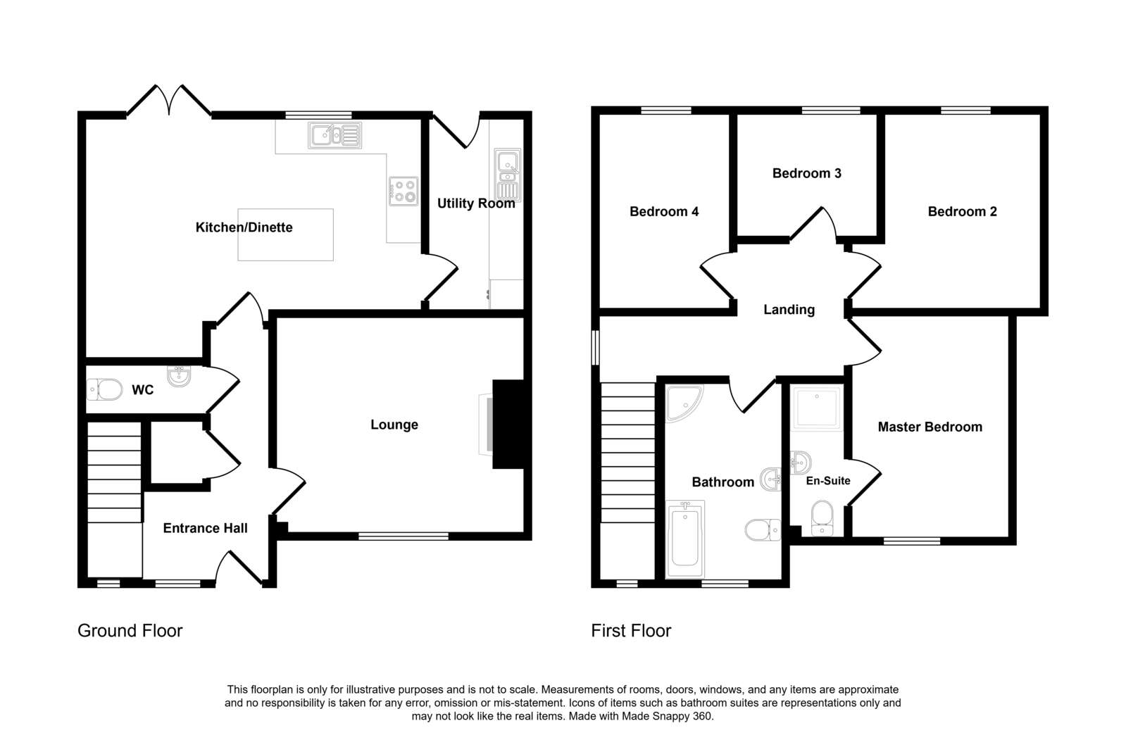
ACCOMMODATION

GROUND FLOOR


Entrance Hall:

15’'05” (Longest Point) x 6’11” (Widest Point) Wooden Composite Exterior Door With Glazed Panel And Side Panels. Laminate Flooring. Carpeted Hand Painted Staircase. W.C Off. Cloak Room Off.


W.C: 

6’06” (Longest Point) x 3’0’’ (Widest Point) Toilet And Wash Hand Basin. Part Tiled Walls. Tiled Flooring. 


Lounge: 

14’07’’ (Longest Point) x 12’09’’ (Widest Point) Laminate Flooring. T.V Point. Recessed Lighting. Fitted Wood Burning Stove With Granite Hearth. 


Kitchen / Dinette: 

19’03” (Longest Point) x 14’0” (Widest Point) Fitted High And Low Level Units. Extractor Fan. Fitted Island Unit With Breakfast Bar. Tiled Flooring. Part Tiled Walls. Integrated Dish Washer. Freestanding Fridge Freezer. Integrated Electric Oven And Hob. Recessed Lighting. S.S Sink. Patio Doors Leading To Rear Garden And Patio Area. 


Utility Room: 

11’0” (Longest Point) x 5’10’’ (Widest Point) Fitted High And Low Level Units. Tiled Flooring. Plumbed For Washing Machine And Tumble Drier. Sink Unit. PVC Exterior Door With Glazed Panel. 


FIRST FLOOR


Landing: 

14’02” (Longest Point) x 7’09” (Widest Point) Carpet Flooring. Access To Roof Space Via Slingsby Ladder. 


Master Bedroom: 

12’10” (Longest Point) x 9’02’’ (Widest Point) Laminate Flooring. T.V Point. 


En-Suite: 

8’07” (Longest Point) x 3’03’’ (Widest Point) Part Tiled Walls. Tiled Flooring. Fitted Vanity Unit With Basin. Toilet. Heated Towel Rail. Shower. Recessed Lighting. 


Bedroom 2: 

11’01” (Longest Point) x 10’11” (Widest Point) Laminate Flooring. T.V Point.


Bedroom 3: 

8’02” (Longest Point) x 7’02” (Widest Point) Laminate Flooring. 


Bedroom 4: 

11’04” (Longest Point) x 7’05” (Widest Point) Laminate Flooring. 


Bathroom: 

11’05” (Longest Point) x 6’11” (Widest Point) Part Tiled Walls. Tiled Flooring. Toilet. White Suite. Fitted Vanity Unit With Basin. Bath. Separate Shower. Recessed Lighting. Heated Towel Rail.


OUTSIDE / GARDENS

Mature Lawns And Gardens To Front And Rear. Patio To Rear. 

Spacious Site. Tarmacadam Driveway.


Services: All Mains

Heating: Gas Central Heating 

Age of Property: Circa 4 Years

Capital Value: £125,000

Rates: £1,253.00 (Price Correct As Of April 2026)

Virtual Tour

Property Location

Show Map

Mortgage Calculator

Disclaimer: The following calculations act as a guide only, and are based on a typical repayment mortgage model. Financial decisions should not be made based on these calculations and accuracy is not guaranteed. Always seek professional advice before making any financial decisions.

Directions

Travel Down The Old Derry Road Past The Police Station And Take Left Into The Prestigious Eden Wood Development. Once In The Development Look Out For The Corry & Stewart Sign Outside The Property On The Left.

Contact Agent

Contact Corry and Stewart

Contact Corry and Stewart

Request More Information
Requesting Info about...
14 Eden Wood, Omagh, BT78 5FL 14 Eden Wood, Omagh, BT78 5FL

By registering your interest, you acknowledge our Privacy Policy
Ask Holmes
Ask Holmes
Let's find your next home

Are you sure you want to reset the chat?

Checking API...