9 Corbally Road
Omagh, BT78 3HW
- Status For Sale
- Property Type Detached
- Bedrooms 5
- Receptions 2
- Bathrooms 5
- Heating Not Specified
-
Stamp Duty
Higher amount applies when purchasing as buy to let or as an additional property£0 / £4,950*
Key Features & Description
A dream home in the country waiting for you!
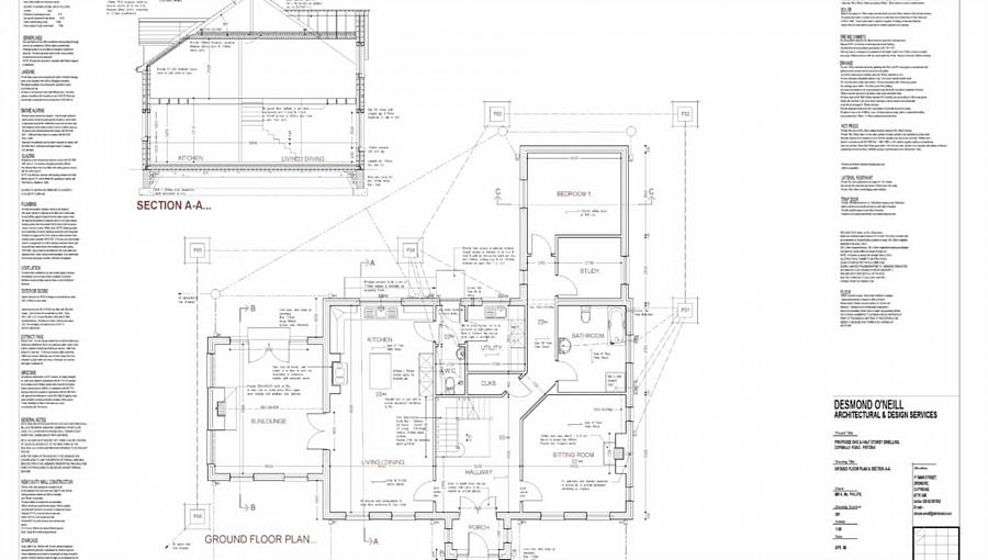
For sale is this partially constructed detached five bedroom family home surrounded by rural beauty set on circa 1.2 acres on the Corbally road Fintona.
This property when completed will have many desirable features with the potential for five bedrooms, the ground floor will comprise of an open plan kitchen/dining area, family living room, family bathroom and sun room. The first floor is yet to be constructed offering the new buyer an opportunity to make some changes if they wish, subject to approval.
The exterior of the property has extensive space and is it is set off the main road and completely private. There is also planning for a detached garage.
We are advised that all services are close by (electric, water & phone).
Get in touch for further information and to book a viewing on site.
Tel: 028 66 022200
Email: info@watterspopertysales.co.uk
For the exact location copy the link below!
https://what3words.com/race.dame.enjoys
Notice
Please note we have not tested any apparatus, fixtures, fittings, or services. Interested parties must undertake their own investigation into the working order of these items. All measurements are approximate and photographs provided for guidance only.
Utilities
Electric: Unknown
Gas: Unknown
Water: Unknown
Sewerage: Unknown
Broadband: Unknown
Telephone: Unknown
Other Items
Heating: Not Specified
Garden/Outside Space: No
Parking: No
Garage: No
Property Location

Mortgage Calculator
Contact Agent
