Contact Agent
Contact Colin Graham Residential
3 Bed Detached Bungalow
2A Carmavy Road
Nutts Corner, BT29 4TF
offers over
£265,000
Key Features & Description
Spacious, Detached Bungalow
Three Bedroom / Three Reception
Kitchen With Informal Dining Area
Utility Room
Fully Tiled Bathroom
Fully Tiled En Suite Shower Room
Oil Heating; PVC Double Glazing
Private Driveway
Large Matching Detached Garage
Gardens Front, Side and Rear
Description
Well presented, three bedroom/three reception, detached bungalow with large matching detached garage, occupying a generous sized site off Carmavy Road, Killead, Nutts Corner.
The property comprises entrance hall, lounge with open fire, separate dining room, conservatory, kitchen with informal dining area, utility room, three bedrooms, to include principal en suite, and separate, fully tiled family bathroom.
Externally, the property enjoys private driveway area, large matching detached garage, and gardens front, side and rear, finished mainly in lawn, and small grass paddock to rear.
Other attributes include oil heating and PVC double glazing.
Early viewing highly recommended.
Well presented, three bedroom/three reception, detached bungalow with large matching detached garage, occupying a generous sized site off Carmavy Road, Killead, Nutts Corner.
The property comprises entrance hall, lounge with open fire, separate dining room, conservatory, kitchen with informal dining area, utility room, three bedrooms, to include principal en suite, and separate, fully tiled family bathroom.
Externally, the property enjoys private driveway area, large matching detached garage, and gardens front, side and rear, finished mainly in lawn, and small grass paddock to rear.
Other attributes include oil heating and PVC double glazing.
Early viewing highly recommended.
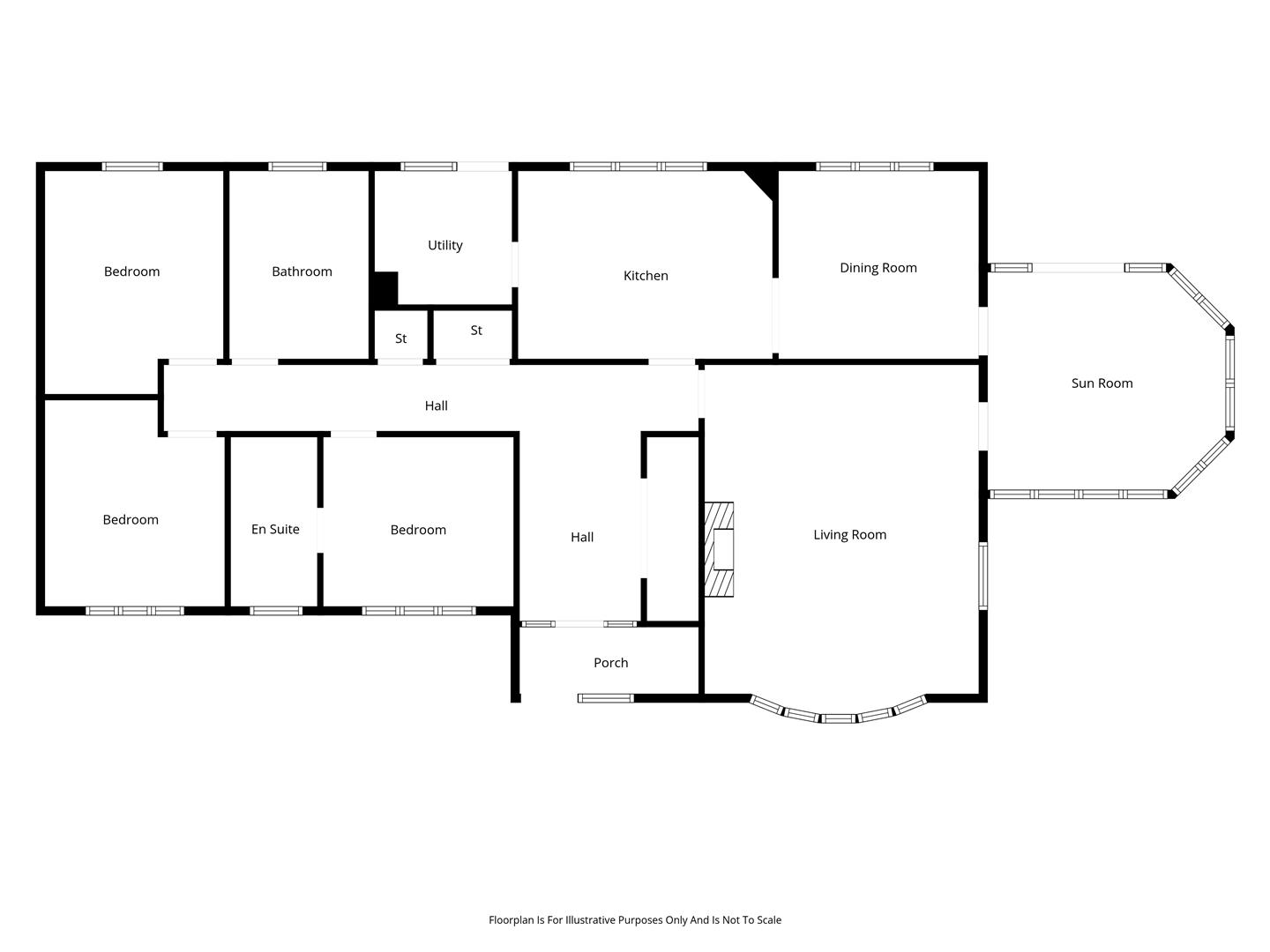
Rooms
ACCOMMODATION
ENTRANCE PORCH
PVC double glazed front door with matching side screen. Tiled floor. Glass panelled door with matching side screens leading to:
ENTRANCE HALL
Timber flooring. Twin cloakrooms/stores accessed via double doors. Access to hot press. Access to roof space.
LOUNGE 19'2" X 15'10" (5.86m X 4.85m)
Dual aspect windows. Bay window to front elevation. Open fire in marble fireplace with granite inset and hearth with mahogany surround. Wood laminate floor covering.
DINING ROOM 11'3" X 10'10" (3.44m X 3.32m)
Wood laminate floor covering. Open arch leading to kitchen.
CONSERVATORY 14'4" X 13'4" (4.37m X 4.07m)
Tiled floor. PVC double glazed French doors to rear garden.
KITCHEN WITH INFORMAL DINING AREA 15'1" X 10'10" (4.61m X 3.31m)
Country style fitted kitchen with range of high and low level storage units, with contrasting marble effect melamine work surface. Colour coded 1.5 bowl sink unit with draining bay. Integrated ceramic hob with extractor hood over. Integrated oven. Space for fridge freezer. Space for plumbed for dishwasher. Fitted breakfast bar area. Splash back tiling to walls. Tiled floor.
UTILITY ROOM 7'11" X 7'10" (2.42m X 2.39m)
Fitted high and low level storage units with contrasting melamine work surface to match kitchen. Stainless steel sink unit with draining bay. Plumbed for automatic washing machine. Space for tumble dryer. Vacuum hub. Oil fired central heating boiler (housed within matching unit). Tiled floor. PVC double glazed door to rear garden.
PRINCIPAL BEDROOM 11'1" X 9'9" (3.39m X 2.99m)
Fitted wardrobes and storage.
FULLY TILED EN SUITE SHOWER ROOM
White, three piece suite comprising shower enclosure, pedestal wash hand basin and WC. Thermostat controlled mains shower.
BEDROOM 2 13'0" X 10'6" (wps) (3.97m X 3.21m (wps))
Wall to wall fitted wardrobes.
BEDROOM 3 11'10" X 10'5" (wps) (3.62m X 3.19m (wps))
Wall to wall fitted wardrobes.
FULLY TILED BATHROOM
White, four piece suite comprising panelled bath, separate shower enclosure, pedestal wash hand basin and WC. Thermostat controlled mains shower unit.
EXTERNAL
Double gates leading to generous sized private driveway area, finished in tarmac.
Gardens front, side and rear finished in lawn and range of shrubs.
Small grass paddock to rear.
External lighting.
PVC soffits, fascia and rainwater goods.
Paved patio area.
PVC oil storage tank.
Outside tap.
Gardens front, side and rear finished in lawn and range of shrubs.
Small grass paddock to rear.
External lighting.
PVC soffits, fascia and rainwater goods.
Paved patio area.
PVC oil storage tank.
Outside tap.
LARGE MATCHING DETACHED GARAGE 21'8" X 15'1" (6.61m X 4.62m)
PVC coated roller shutter door. Separate service door to rear garden. Power and light.
IMPORTANT NOTE TO ALL POTENTIAL PURCHASERS
Please note that we have not tested the services or systems in this property. Purchasers should make/commission their own inspections if they feel it is necessary.
Broadband Speed Availability
Potential Speeds for 2A Carmavy Road
Max Download
1800
Mbps
Max Upload
220
MbpsThe speeds indicated represent the maximum estimated fixed-line speeds as predicted by Ofcom. Please note that these are estimates, and actual service availability and speeds may differ.
Property Location
Mortgage Calculator
Contact Agent
Contact Colin Graham Residential
Request More Information
Requesting Info about...
2A Carmavy Road, Nutts Corner, BT29 4TF
By registering your interest, you acknowledge our Privacy Policy
By registering your interest, you acknowledge our Privacy Policy