Contact Agent

Contact Ulster Property Sales (UPS) Cavehill

Contact Ulster Property Sales (UPS) Cavehill

Land - Building Plot

84 Squires View

North Belfast, BT14 8FS

price £85,000
  • Status Sale Agreed
  • Property Type Land - Building Plot
  • Interior Area 1356 sqft
  • Stamp Duty
    Higher amount applies when purchasing as buy to let or as an additional property
    £0 / £4,250*
  • Typical Mortgage
    Click price to use our mortgage calculator

Key Features & Description

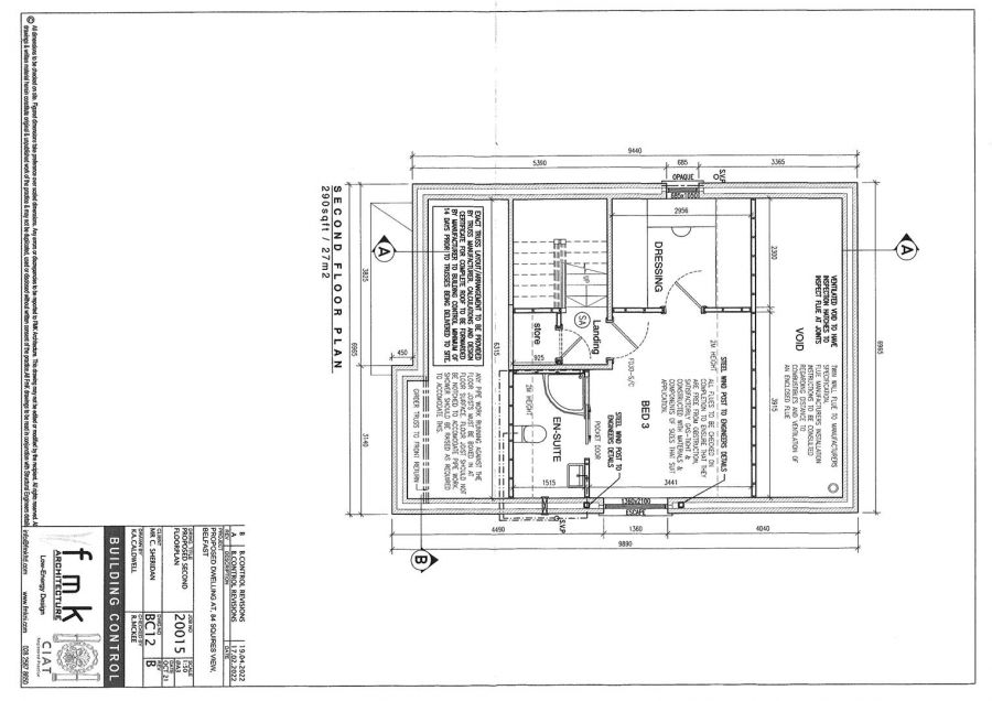
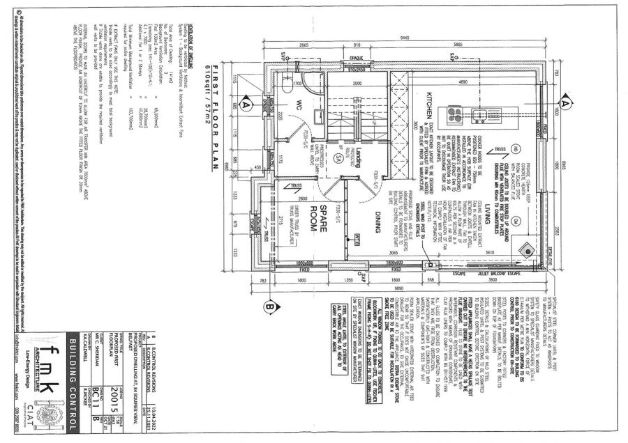
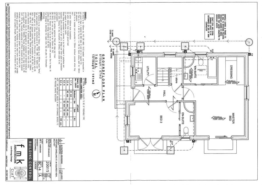
Stunning Site for A 1510 sq foot Detached Villa
Panoramic Views Over Belfast Lough.
4 Bedrooms Open Plan Living Dining
Open Plan Kitchen
4 Bathrooms Plus Dressing Room
Utility Laundry Room
Designed For Wood Burner and Gas Heating
Secure Carparking
Cul De- Sac Position
Unique Opportunity.
Description
Stunning Site Affording Panoramic Views Over Belfast Lough

A unique opportunity to purchase a building plot with planning permission passed to construct a 1510 sq ft detached residence. The site affords fabulous far reaching views over Belfast Lough and beyond and offers the opportunity to construct a fabulous 4 bedroom 4 bathroom detached home within this exceptionally popular location. Opportunities of this nature seldom present themselves and we strongly recommend immediate action to avoid disappointment - Call on Site to view.

Rooms

Entrance Hall Under stairs cloaks
Utility Room 7'3" X 5'6" (2.22m X 1.70m)
Bedroom 13'3" X 12'9" (4.06m X 3.90m) Sliding patio doors
Dressing Room 8'9" X 6'10" (2.69m X 2.10m)
En-suite Bathroom
Bedroom 13'1" X 8'10" (4.00m X 2.71m) Double Glazed patio doors
En-suite Shower Room
First Floor Landing
Bedroom 9'2" X 8'10" (2.80m X 2.71m)
Shower room
Kitchen- Living- Dining 22'9" X 21'1" (6.95m X 6.45m) Juliet Balcony
Second Floor Landing
Bedroom 12'9" X 11'3" (3.91m X 3.44m)
Dressing Room
En-Suite Shower Room
Outside Gardens front side and rear with driveway and carparking bays.

Property Location

Show Map

Mortgage Calculator

Disclaimer: The following calculations act as a guide only, and are based on a typical repayment mortgage model. Financial decisions should not be made based on these calculations and accuracy is not guaranteed. Always seek professional advice before making any financial decisions.

Contact Agent

Contact Ulster Property Sales (UPS) Cavehill

Contact Ulster Property Sales (UPS) Cavehill

Request More Information
Requesting Info about...
84 Squires View, North Belfast, BT14 8FS 84 Squires View, North Belfast, BT14 8FS

By registering your interest, you acknowledge our Privacy Policy
Ask Holmes
Ask Holmes
Let's find your next home

Are you sure you want to reset the chat?

Checking API...