Contact Agent

Contact Smyth Leslie & Co

Contact Smyth Leslie & Co

Site

Drumsoo Road

Corrardaghy, Newtownbulter, BT92 6NY

Price on Application
  • Status For Sale
  • Property Type Site

Key Features & Description

FPP For Detached Dwelling
Planning Ref: LA10/2021/0943/F
Distinctively Modern Design
Sympathetic To Country Setting
9 Miles To Lisnaskea, 1.5 Miles To The Dernawilt Road
Set Within Beautiful Countryside
Road Frontage To The Drumsoo Road
Option For Additional Land
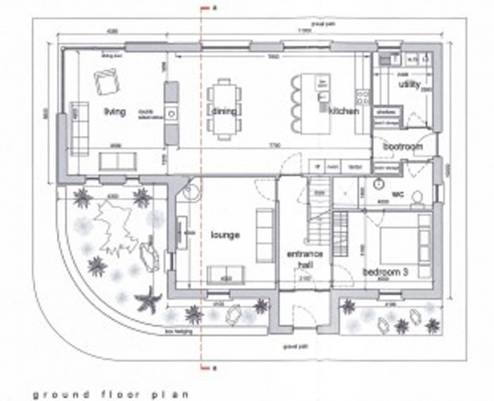
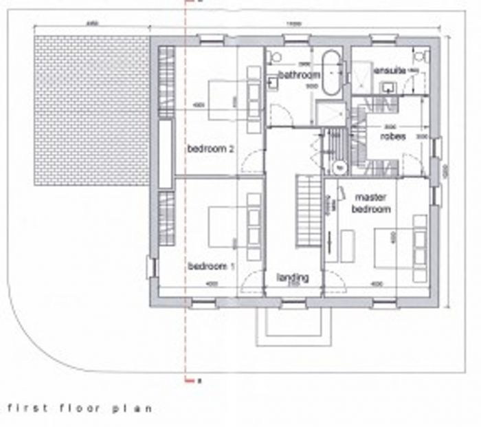
Description

Tucked away within unspoilt and picturesque countryside, this building site is surrounded by nature at its best, in the heart of County Fermanagh, some 9 miles from Lisnaskea, 1.5 miles from the Main Dernawilt Road, 30 minutes drive to both Enniskillen and Monaghan town.

Positioned on the site of a traditional farm holding, the building site offers FPP for a detached 2 storey residence that affords an eye catching modern design that is sympathetic to its wonderful surroundings that includes an open plan living space and many other features.

The site has good frontage to the Drumsoo Road and provides perfectly natural surroundings that can be sympathetically maintained.

Property Location

Show Map

Contact Agent

Contact Smyth Leslie & Co

Contact Smyth Leslie & Co

Request More Information
Requesting Info about...
Drumsoo Road, Corrardaghy, Newtownbulter, BT92 6NY Drumsoo Road, Corrardaghy, Newtownbulter, BT92 6NY

By registering your interest, you acknowledge our Privacy Policy