Contact Agent

Contact John Minnis Estate Agents (Donaghadee)
3 Bed End Terrace
22 Stump Road
Ballywalter, Newtownards, BT22 2NT
offers around
£139,950

Key Features & Description
Attractive End Terrace Property
Cul-de-Sac Position Convenient to the Town Centre Area
Living Room with Attractive Brick Fireplace
Kitchen
Conservatory
Three Well Proportioned Bedrooms
Shower Room with Two Piece Suite
Separate WC
Oil Fired Central Heating
ouPVC Double Glazed Windows
Communal Parking to the Front
Front Garden in Lawns
Fully Enclosed Rear and Side Garden
Convenient to Many Amenities Including
Demand Anticipated to be High
Early Viewing Essential
Description
Located in the extremely popular and picturesque seaside town of Ballywalter, here is an ideal opportunity to purchase an end terrace property with excellent convenience to the local amenities which include shops, cafes and beach.
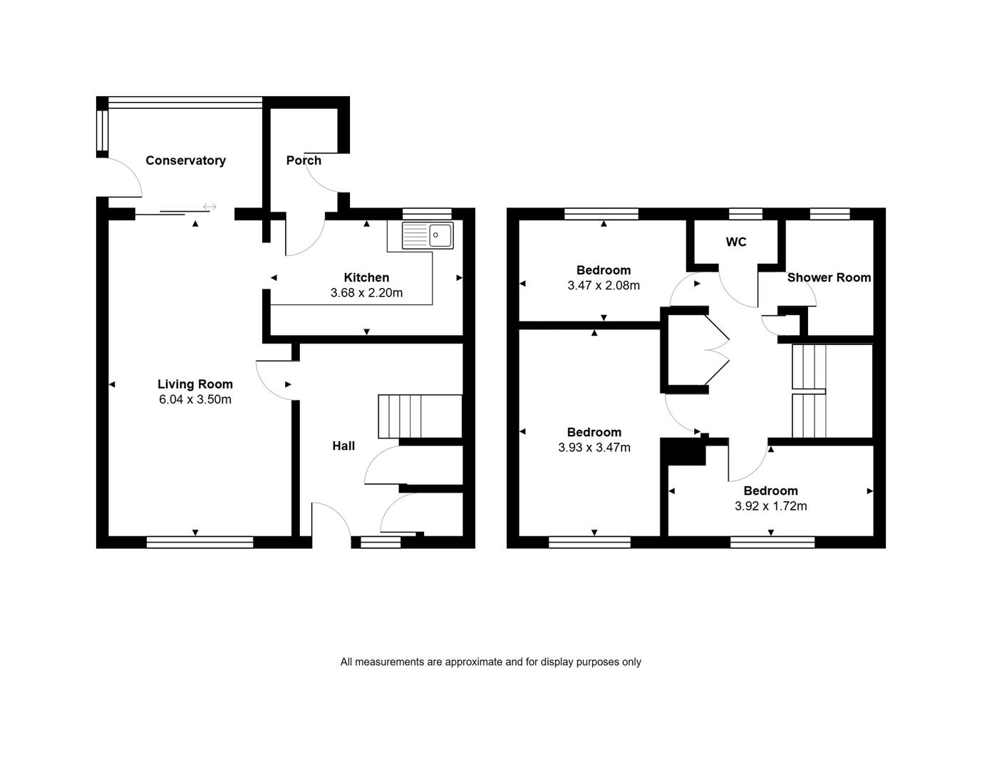
The accommodation comprises living room with attractive brick fireplace and cast iron wood burning stove, kitchen and conservatory on the ground floor. Upstairs this fine home is further enhanced by having three well proportioned bedrooms and a shower room as well as a separate WC. Other benefits include oil fired central heating and uPVC double glazed windows. Outside there is communal parking to the front, a front garden in lawns and fully enclosed rear and side garden with extensive paved terrace areas and artificial grass.
Demand is anticipated to be high and from a wide range of prospective purchasers including first time buyers, young professionals, families and investors. A viewing is thoroughly recommended at your earliest opportunity.
Located in the extremely popular and picturesque seaside town of Ballywalter, here is an ideal opportunity to purchase an end terrace property with excellent convenience to the local amenities which include shops, cafes and beach.
The accommodation comprises living room with attractive brick fireplace and cast iron wood burning stove, kitchen and conservatory on the ground floor. Upstairs this fine home is further enhanced by having three well proportioned bedrooms and a shower room as well as a separate WC. Other benefits include oil fired central heating and uPVC double glazed windows. Outside there is communal parking to the front, a front garden in lawns and fully enclosed rear and side garden with extensive paved terrace areas and artificial grass.
Demand is anticipated to be high and from a wide range of prospective purchasers including first time buyers, young professionals, families and investors. A viewing is thoroughly recommended at your earliest opportunity.
Rooms
ENTRANCE
uPVC double glazed front door with uPVC double glazed side panel to reception hall.
GROUND FLOOR
Reception Hall
Laminate wood effect floor, storage cupboard.
Living Room 19'7 X 11'7 (5.97m X 3.53m)
at widest points. Attractive brick fireplace, tiled hearth, cast iron wood burning stove, archway to kitchen, uPVC double glazed door to conservatory, dado rail.
Kitchen 11'9 X 7'3 (3.58m X 2.21m)
Range of high and low level units, granite effect work surfaces, single bowl single drainer stainless steel sink unit with mixer taps, space for cooker, tiled splashback, extractor fan above, plumbed for washing machine, space for fridge freezer, plumbed for dishwasher, part tiled floor, part tiled walls.
Conservatory 10'2 X 6'5 (3.10m X 1.96m)
Laminate wood effect floor, uPVC double glazed door to outside.
Rear Porch
Laminate wood effect floor, uPVC double glazed door to outside.
FIRST FLOOR
Landing
Shelved hotpress with lagged copper cylinder, shelved storage cupboard, access to roofspace.
Bedroom One 12'8 X 8'9 (3.86m X 2.67m)
Laminate wood effect floor.
Bedroom Two 10'6 X 6'8 (3.20m X 2.03m)
Laminate wood effect floor.
Bedroom Three 12'8 X 5'8 (3.86m X 1.73m)
at widest points. Laminate wood effect floor.
Shower Room
Two piece suite comprising built-in fully tiled shower cubicle, wash hand basin with mixer tap, storage beneath, fully tiled floor, fully tiled walls, chrome heated towel rail, tongue and groove ceiling.
Separate WC
Comprising low flush WC, fully tiled floor, part tiled walls.
OUTSIDE
Communal parking to the front, front garden in lawns, timber decked terrace, fully enclosed rear and side garden with extensive paved terrace areas, artificial grass, uPVC oil tank, oil fired boiler.
Ballywalter is a picturesque village, known for its scenic coastal views and sandy beaches. The village has a rich history, with several historical buildings and sites, including the Ballywalter Park, a grand country house set in extensive grounds. The local community is vibrant, with various events and activities taking place throughout the year, making it a charming place to visit or reside in.
Broadband Speed Availability
Potential Speeds for 22 Stump Road
Max Download
1000
Mbps
Max Upload
1000
MbpsThe speeds indicated represent the maximum estimated fixed-line speeds as predicted by Ofcom. Please note that these are estimates, and actual service availability and speeds may differ.
Property Location

Mortgage Calculator
Contact Agent

Contact John Minnis Estate Agents (Donaghadee)
Request More Information
Requesting Info about...
22 Stump Road, Ballywalter, Newtownards, BT22 2NT
By registering your interest, you acknowledge our Privacy Policy

By registering your interest, you acknowledge our Privacy Policy