Contact Agent

Contact Simon Brien (Newtownards)

Contact Simon Brien (Newtownards)

3 Bed Semi-Detached House

46 Tullynagardy Lane

Newtownards, County Down, BT23 4ZF

price £230,000
  • Status For Sale
  • Property Type Semi-Detached
  • Bedrooms 3
  • Receptions 1
  • Bathrooms 2
  • EPC Rating C76 / C80
  • Stamp Duty
    Higher amount applies when purchasing as buy to let or as an additional property
    £2,100 / £13,600*
  • Typical Mortgage
    Click price to use our mortgage calculator
EPC Rating

Key Features & Description

  • Beautifully presented semi-detached home located just off the Crawfordsburn Road
  • Commuter routes To Belfast, Holywood & Bangor are close by
  • Ideally positioned at the rear of the development on a private corner plot
  • Welcoming entrance hall with modern downstairs cloakroom in white suite
  • Lounge with attractive fireplace, open fire, and bay window
  • Luxury fitted kitchen/ dining space in Cream units and range of integrated appliances
  • Three Bedrooms - bedroom one with views to Newtownards, Strangford Lough, and Scrabo Tower
  • Luxury ensuite comprising modern white suite
  • Luxury family bathroom with modern white suite
  • Extensive tarmac driveway to front and side with parking for up to five cars
  • Gardens with lawns, modern patio, summer house, and garden bar- ideal for alfresco entertaining
  • Gas fired central heating system with NEST zoned controls included
  • Upvc double glazed windows and rear door
  • Black, painted solid wood front door and feature stone façade porch
  • CAT 5 hardwired to Lounge, Bedroom one and three
  • Description
    Situated just off the Crawfordsburn Road in the highly regarded Tullynagardy development, this well-presented semi-detached home offers a great location giving ease of access to Newtownards town centre, shopping centre, schooling options and commuter routes to Belfast, Holywood, and Bangor.

    Internally the property offers deceptive accommodation and upon entering the home you are met with a bright entrance hall with smart downstairs WC. There is a fabulous lounge with attractive fireplace, open fire, and large bay window. At the back of the house, you will find a modern kitchen/dining space with Cream units, range of integrated appliances and direct access to the rear private garden.

    At first floor level there are three good sized bedrooms including bedroom one with ensuite shower room, and family bathroom in modern White suite.

    Externally the property is neatly tucked away at the rear of the development and set on a corner plot with large tarmac driveway to the front and side. The gardens are laid in manicured lawns, modern paved patio, summer house and garden bar which is perfect for those who enjoy entertaining in the summer months.

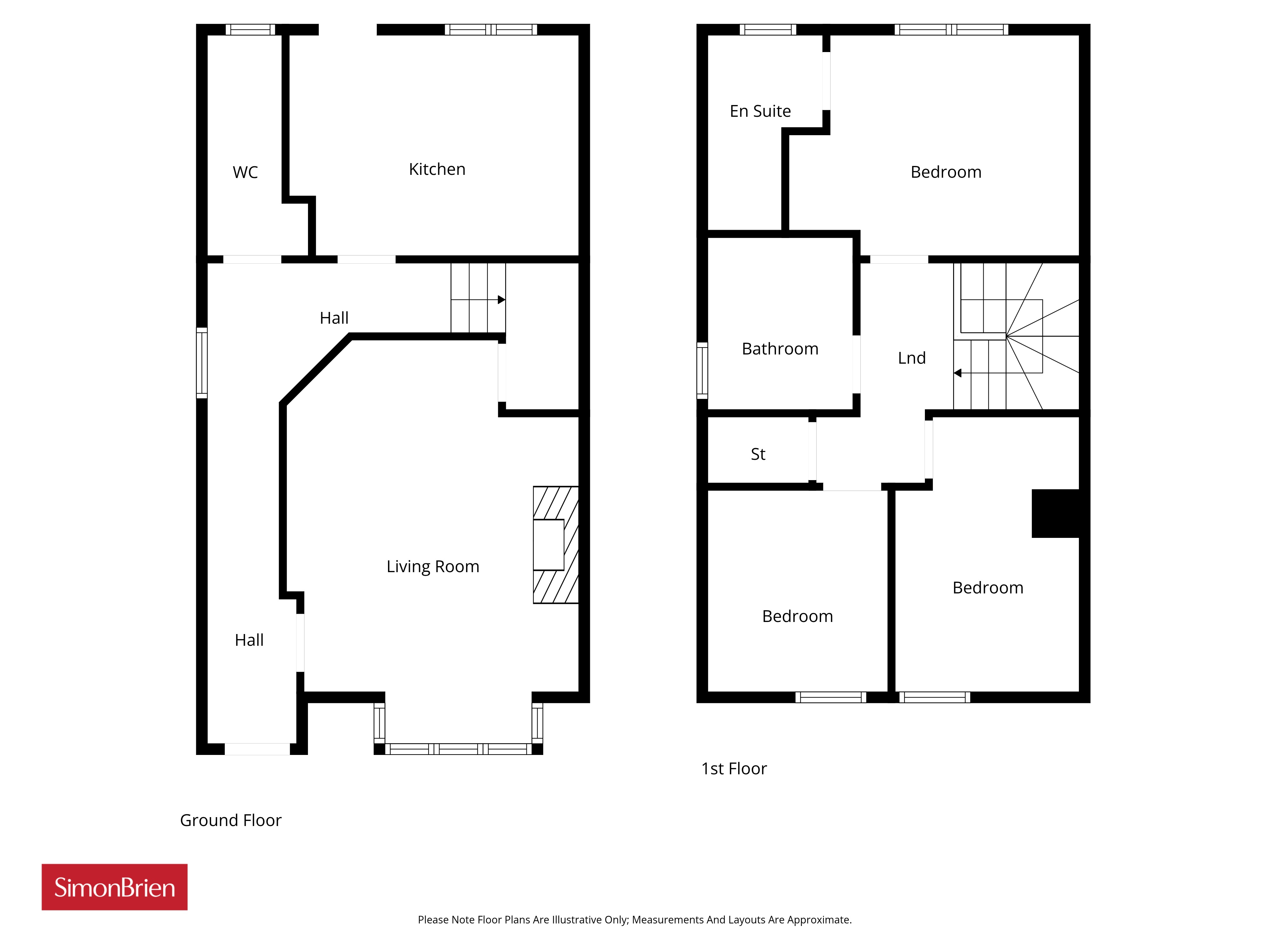
    Rooms

    Ground Floor Black solid wood front door.
    Stone Facade Porch Outside light.
    Entrance Hall Ceramic tiled floor, telephone point.
    Cloakroom Modern white suite comprising: Vanity sink unit with mixer taps, push button WC, ceramic tiled floor, feature wall tiling.
    Lounge 19'8" X 13'1" (6.00m X 4.00mIntobay.) Attractive stone fireplace with cast iron inset and open fire, tiled hearth, feature bay window, TV and telephone point, storage.
    Luxury Fitted Kitchen/Dining 13'0" X 10'2" (3.96m X 3.10m) Black 1.5 tub single drainer sink unit with mixer taps, range of high and low level cream shaker style units, wood effect Formica roll edge work surfaces, 4 ring gas hob unit, built in oven, stainless steel extractor hood, integrated fridge freezer, dishwasher and washing machine, wall tiling, concealed gas boiler, lighting, ceramic tiled floor, LED recessed spotlighting, double glazed timber door to rear enclosed garden.
    First Floor
    Landing Access to roofspace via integral ladder, walk in linen storage.
    Bedroom 1 13'4" X 9'0" (4.06m X 2.74m) Polished laminate floor, TV and telephone point, far reaching views to Scrabo Tower, Newtownards, Strangford Lough, Island Hill and Craigantlet.
    Luxury Ensuite Modern white suite comprising: Separate fully tiled shower cubicle, thermostatically controlled shower, high gloss vanity unit, wash hand basin with mixer taps, push button WC, wall tiling, ceramic tiled floor, extractor fan, LED recessed spotlights.
    Bedroom 2 9'2" X 8'2" (2.80m X 2.50m) Polished laminate floor, views to Lead Mines.
    Bedroom 3 12'7" X 8'2" (3.84m X 2.50m) Views to Lead Mines.
    Deluxe Bathroom Modern white suite comprising: Panelled bath with mixer taps and telephone hand shower over, wall mounted wash hand basin with mixer taps, push button WC, large chrome towel radiator, feature wall tiling, ceramic tiled floor, extractor fan, recessed spotlighting.
    Outside Gardens to front, side and rear laid out in manicured lawns, well stocked flowerbeds and plants, shrubs, large paved patio, summer house and garden bar, 6 ft fencing, outside light, outside water tap.

    Extensive tarmac driveway to front and side offering space for up to 5 cars.

    Broadband Speed Availability

    Ultrafast

    Potential Speeds for 46 Tullynagardy Lane

    Max Download
    1800
    Mbps
    Max Upload
    220
    Mbps
    The speeds indicated represent the maximum estimated fixed-line speeds as predicted by Ofcom. Please note that these are estimates, and actual service availability and speeds may differ.

    Property Location

    Show Map

    Mortgage Calculator

    Disclaimer: The following calculations act as a guide only, and are based on a typical repayment mortgage model. Financial decisions should not be made based on these calculations and accuracy is not guaranteed. Always seek professional advice before making any financial decisions.

    Contact Agent

    Contact Simon Brien (Newtownards)

    Contact Simon Brien (Newtownards)

    Request More Information
    Requesting Info about...
    46 Tullynagardy Lane, Newtownards, County Down, BT23 4ZF 46 Tullynagardy Lane, Newtownards, County Down, BT23 4ZF

    By registering your interest, you acknowledge our Privacy Policy