Contact Agent

Contact Simon Brien (Holywood)

Contact Simon Brien (Holywood)

3 Bed Semi-Detached House

19 Milecross Manor

Newtownards, County Down, BT23 4ZW

price £315,000
  • Status Sale Agreed
  • Property Type Semi-Detached
  • Bedrooms 3
  • Receptions 2
  • EPC Rating B83 / B83
  • Stamp Duty
    Higher amount applies when purchasing as buy to let or as an additional property
    £5,750 / £21,500*
  • Typical Mortgage
    Click price to use our mortgage calculator
EPC Rating

Key Features & Description

  • Immaculately Presented Three Storey Semi Detached
  • No Expense Spared on Fixtures and Fittings
  • Open Plan Kitchen / Living / Dining with Access to Rear Garden
  • Ground floor WC
  • Spacious First Floor Lounge with French Doors to Juliete Balcony
  • Three Well Proportioned Bedrooms - Principal with Stunning Views to Scrabo Tower and Strangford Lough, Vaulted Ceiling and Ensuite Shower Room
  • Modern Family Bathroom
  • Integral Garage with Utility Area and Driveway Parking for Two Cars
  • uPVC Double Glazing and Gas Fired Central Heating
  • Well-Tended, Enclosed Rear Garden with Paved Patio Area
  • Large 29 sq m fully floored roof space with light
  • Enjoying a Quiet Setting with Countryside Views to the Front.
  • Superb Location Within Walking Distance to Newtownards Bustling Town Centre, local amenities and Kiltonga Nature Reserve
  • Description
    Set within the popular Milecross Manor development in Newtownards, this modern three-storey semi-detached home is tucked away to the rear of the development, enjoying a quiet setting with countryside views to the front.
    Finished to a high standard throughout, the property offers three well-proportioned bedrooms across three floors, including a spacious principal suite with ensuite shower room and impressive views towards Scrabo and Strangford Lough.
    The bright open-plan kitchen, dining, and living area forms the heart of the home, with patio doors opening onto the enclosed rear garden, ideal for entertaining or relaxing. A separate first-floor lounge provides a flexible second living space.
    Further features include an integral garage with utility area and a private driveway offering off-street parking for two cars.
    Immaculately presented and ideally located just off the Belfast Road, the property is within walking distance of Newtownards Town Centre, close to schools, amenities, and excellent transport links to Belfast and Bangor, with scenic walks at Scrabo Tower and Kiltonga Nature Reserve nearby.

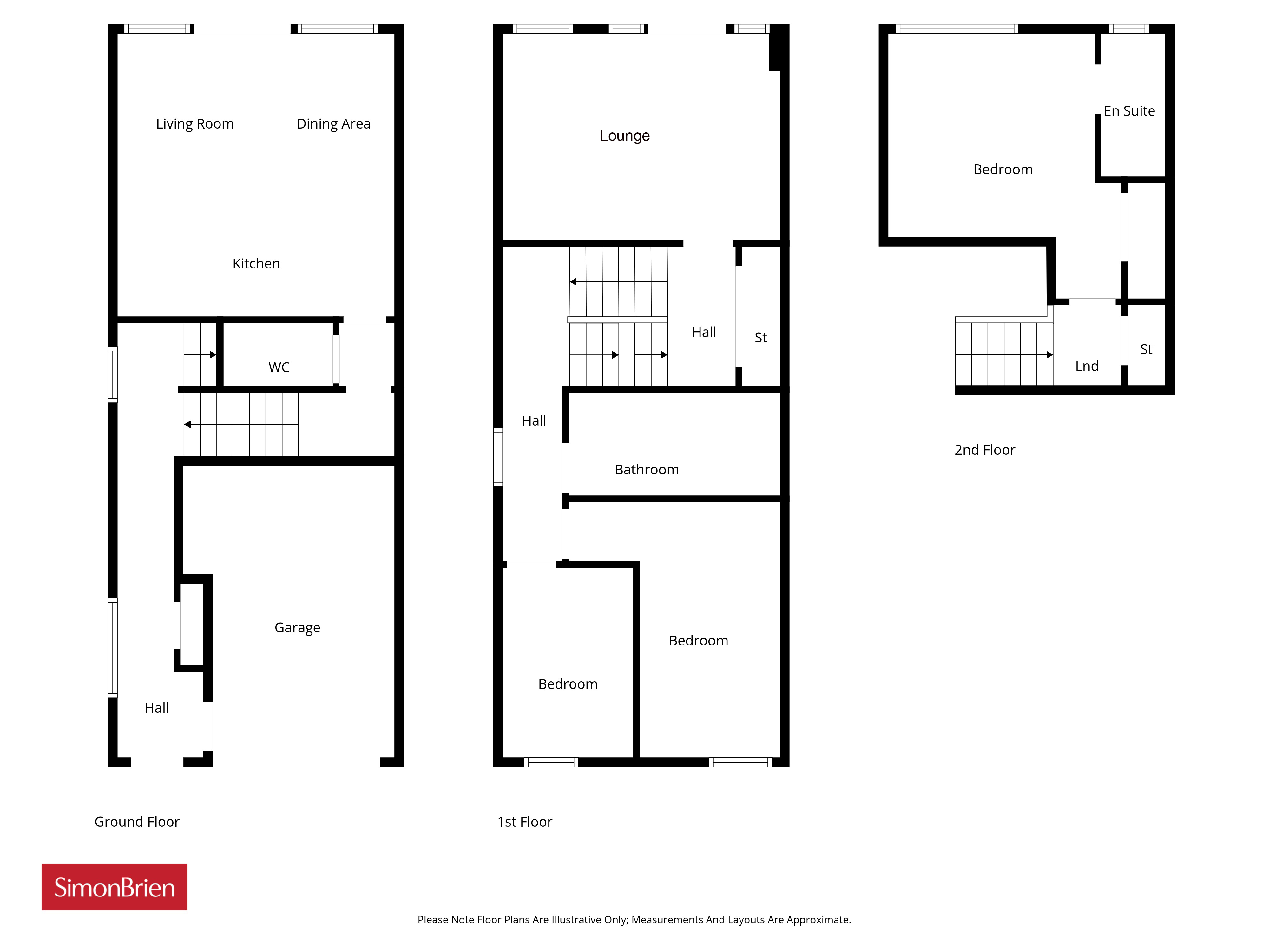
    Rooms

    Ground Floor uPVC double glazed front door.
    Reception Hall Ceramic tiled floor, alarm control panel, built in storage cupbard with gas fired boiler, additional storage cupboard, access to Garage.
    Garage 16'2" X 9'9" (4.93m X 2.97m) Roller door, light and power, range of high and low level units, laminate work surfaces, single drainer stainless steel sink unit with chrome mixer taps, plumbed for washing machine, space for tumble dryer.
    Lower Level
    WC Wash hand basin with chrome mixer taps, vanity unit, partly tiled walls, low flush WC, ceramic tiled floor, extractor fan.
    Kitchen / Living / Dining 16'0" X 15'6" (4.88m X 4.72m) Excellent range of high and low level units, granite worktop, upstands and splashback, island unit with 1 1/4 bowl sink unit with chrome mixer taps, inset drainer, integrated fridge and freezer, integrated washing machine, large Indesit 5 ring gas hob, stainless steel extractor fan, integrated electric double oven, ceramic tiled floor, low voltage spotlights, uPVC double glazed front door to patio and garden.
    Upper Level Double built in cloaks cupboard.
    Lounge 15'6" X 12'0" (4.72m X 3.66m) Herringbone engineered wood flooring, uPVC double glazed French doors to Juliet balcony, low voltage spotlights, feature wall radiator.
    First Floor
    Bathroom Contemporary white suite comprising: Tiled panelled bath with chrome mixer taps and telephone hand shower, wash hand basin with chrome mixer taps in vanity unit, fully tiled shower cubicle with chrome shower unit, chrome heated towel radiator, ceramic tiled floor, electric skylight, extractor fan.
    Bedroom 2 13'9" X 7'6" (4.20m X 2.29m) Outlook to countryside. Access to large 29 sq m fully floored roof space with light.
    Bedroom 3 10'4" X 7'6" (3.15m X 2.29m) Outlook to countryside.
    Upper Level
    Bedroom 1 12'9" X 11'6" (3.89m X 3.50m) Double built in wardrobe, vaulted ceiling, views to Scrabo Tower and Strangford Lough, electric roller blinds.
    Ensuite Contemporary white suite comprising: Low flush WC, wash hand basin with chrome mixer taps in vanity unit, double shower cubicle with chrome shower unit, extractor fan, chrome heated towel radiator, ceramic tiled floor, partly tiled walls.
    Outside Well maintainted and enclosed rear garden in lawn bordered by fencing. Paved patio area, outside light. Off street private parking for 2 cars to front.

    Broadband Speed Availability

    Ultrafast

    Potential Speeds for 19 Milecross Manor

    Max Download
    1800
    Mbps
    Max Upload
    220
    Mbps
    The speeds indicated represent the maximum estimated fixed-line speeds as predicted by Ofcom. Please note that these are estimates, and actual service availability and speeds may differ.

    Property Location

    Show Map

    Mortgage Calculator

    Disclaimer: The following calculations act as a guide only, and are based on a typical repayment mortgage model. Financial decisions should not be made based on these calculations and accuracy is not guaranteed. Always seek professional advice before making any financial decisions.

    Contact Agent

    Contact Simon Brien (Holywood)

    Contact Simon Brien (Holywood)

    Request More Information
    Requesting Info about...
    19 Milecross Manor, Newtownards, County Down, BT23 4ZW 19 Milecross Manor, Newtownards, County Down, BT23 4ZW

    By registering your interest, you acknowledge our Privacy Policy
    Ask Holmes
    Ask Holmes
    Let's find your next home

    Are you sure you want to reset the chat?

    Checking API...