3 Bed Semi-Detached House

Site 17, The Hester, Regent Park

North Road, Newtownards, BT23

price £262,500
  • Status Sale Agreed
  • Property Type Semi-Detached
  • Bedrooms 3
  • Receptions 1
  • Stamp Duty
    Higher amount applies when purchasing as buy to let or as an additional property
    £3,125 / £16,250*
  • Typical Mortgage
    Click price to use our mortgage calculator

Key Features & Description

  • Fully Furnished Show Home Open Sundays 2pm-4pm or by Private Appointment
  • *Please note that internal selections have already been made for this property - Please refer to the selling agents for details.
  • SPECIFICATION
  • Kitchen & Utility
  • High quality units with quality doors, worktop and handle
  • Integrated appliances to include gas hob, electric oven, extractor fan, fridge/freezer & dishwasher
  • LED under lighting to kitchen units
  • Porcelain floor tiling
  • Ceramic wall tiling between kitchen units
  • Integrated washing machine where no utility
  • Plumbing for washing machine in utility where applicable
  • Bathroom, En suites & WC
  • Contemporary white sanitary ware with chrome fittings
  • Full height porcelain tiling to shower enclosure in main bathroom where applicable
  • Chrome towel radiators in bathroom and ensuite
  • Recessed LED down lighters to ceilings in bathroom and ensuite
  • Porcelain partial wall tiling to bathroom and ensuite
  • Porcelain floor tiles to bathroom and ensuite
  • Dual drencher showerhead to ensuite
  • Ceramic splashback to WC sink
  • Internal Features
  • Internal décor, walls and ceilings painted from a palette of selected colours (1 colour throughout)
  • Stove with granite or slate hearth (Except The Ladywell)
  • Mains supply smoke & carbon monoxide detectors
  • Moulded skirting and architraves with painted finish
  • Painted internal doors with quality ironmongery
  • Carpets to lounge, bedrooms, stairs and landings with underlay
  • Porcelain tiles to hallway
  • Comprehensive range of electrical sockets, switches, TV and telephone points
  • Wiring for future satellite point
  • Gas fired central heating
  • Integral alarm system
  • Energy efficient fittings/bulbs to all rooms
  • High thermal insulation and energy efficiency rating
  • External Features
  • Timber frame construction (Except the Ladywell)
  • Traditional Masonry Construction to the Ladywell
  • Soft landscaping to front gardens (where applicable).
  • Front gardens to be turfed
  • Rear gardens rotovated and seeded in next planting season - weather dependant.
  • Bitmac driveway
  • Tobermore pavers to front
  • uPVC double glazed windows and uPVC rear door with lockable system
  • Composite front door with secure multi locking system
  • Outside water tap
  • External socket
  • External lighting to front and rear doors
  • 10 year NHBC structural warranty
  • Description
    Fully Furnished Show Home Open Sundays 2pm-4pm or by Private Appointment

    Sitting proudly on the northernmost tip of the rolling Strangford Lough landscape, Regent Park is another prestigious member of the growing family of outstanding move-in-ready houses from Hilmark Homes.
    A mere 10 miles from the heart of Belfast on the Ards Peninsula, we've created a unique development that allows you to seamlessly balance career, family and recreation for the very best of Northern Ireland living.
    It's the exceptional mix of quality build and traditional living in a highly desirable location that lifts Regent Park far above the rest.
    Surrounding Area
    Overlooked by the iconic Scrabo Tower and only minutes from unforgettable settings such as the UNESCO world heritage site Mount Stewart and Grey Abbey, home to world class antique shops, Newtownards is large town with a little bit of everything.
    Enjoy the peaceful solitude as you walk along the shores of Strangford Lough, join the crowd and cheer on the local rugby, cricket and football teams or meet family and friends at one of the many restaurants, bars and pubs.
    And with a wealth of shopping, excellent schools and historic churches, there's something to make everyone feel right at home.
    Hilmark Homes
    Every Regent Park home is designed to blend naturally with its environment and complement the surrounding architecture.
    Featuring truly unique designs, your future detached home is constructed by skilled local craftsmen using carefully selected materials. And though we meticulously consider every element, we're unique in that we encourage you to add your personal touch to the finished design.
    With Hilmark Homes we promise your new home will always be unique, always considered and always built for you.
    Location
    Regent Park offers a world of high-class traditional living with nearby historic landmarks, churches and schools, as well as sports clubs, modern amenities and easy access to Belfast and Bangor.

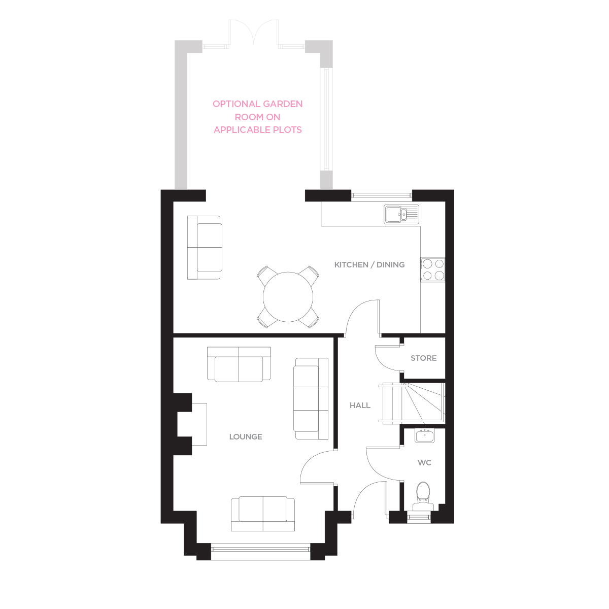
    Rooms

    Ground Floor
    Lounge 16'4" X 12'9" (4.98m X 3.89m)
    Kitchen / Dining 21'7" X 10'6" (6.58m X 3.20m)
    Store
    WC
    First Floor
    Bedroom 1 12'1" X 12'0" (3.68m X 3.66m)
    Ensuite
    Bedroom 2 11'9" X 10'6" (3.58m X 3.20m)
    Bedrom 3 10'6" X 9'10" (3.20m X 3.00m)
    Bathroom
    Store

    Property Location

    Show Map

    Mortgage Calculator

    Disclaimer: The following calculations act as a guide only, and are based on a typical repayment mortgage model. Financial decisions should not be made based on these calculations and accuracy is not guaranteed. Always seek professional advice before making any financial decisions.

    Request More Information
    Requesting Info about...
    Site 17, The Hester, Regent Park, North Road, Newtownards, BT23 Site 17, The Hester, Regent Park, North Road, Newtownards, BT23

    By registering your interest, you acknowledge our Privacy Policy