6 Bed Detached House
The Sycamores, 45A Loughries Road
Newtownards, BT23 8RW
asking price
£1,450,000
Key Features & Description
POTENTIAL BUSINESS OPPORTUNITY - 6 BED DETACHED HOUSE INCLUDING ANNEX , 3 LUXURY RENTAL PROPERTIES & 4 GARAGES
An imposing detached country residence
Located on the cusp of Newtownards at the beginning of the Newtownards Peninsula.
Bangor and Donaghadee towns are within easy striking distance, Belfast City can be reached via a 30 min drive
Set on a total site of circa 5.5 acres including 1.5 acre of gardens and a 4 acre field laid in grassland
The property has been constructed and finished to a high standard of specification throughout
Main dwelling with integral annex which has its own side door, Extensive first floor apartment, two semi- detached cottages
The main dwelling offers: entrance hall, lounge, sun room, formal dining room, family room, Medium Oak kitchen, four bedrooms 2 with en suite and family bathroom
Integral annex (Willow Tree Cottage) has entrance hall, lounge, fitted kitchen, 1 bedroom, dressing room and luxury bathroom. The annex can also be accessed via the kitchen of the main dwelling
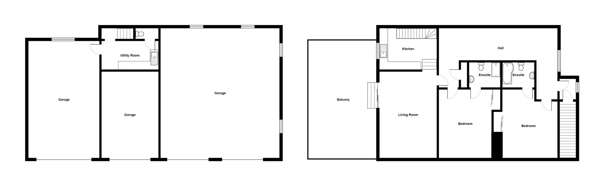
First floor apartment (Oak Tree Cottage) has a garage, luxury kitchen, utility room, lounge with patio doors to superb balcony/ terrace, two large double bedrooms both with en suite, dining/office
Two semi-detached cottages: Ash Tree Cottage: entrance hall, large open plan living/ dining and kitchen area with double height vaulted ceiling, sun room, downstairs shower room, 1 bedroom.
Apple Tree Cottage: entrance hall, large living/ dining room with double height vaulted ceiling, luxury kitchen, two beds, bed 1 with luxury en suite, bed 2 on first floor with luxury bathroom
Both cottages have large gardens to rear laid in lawns
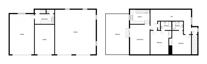
In total there are four good sized garages
A Circa 4 acre field, currently in grassland and may be utilised for grazing animals or equestrian
Gardens of Circa 1.5 of an acre laid in lawns, trees and flowerbeds
Accessed via a private lane leading onto electronic gates and large tarmac driveway
Extensive concrete yard with excellent parking and turning space
In all, a multi-faceted property on offer which will attract interest from clients from a wide spectrum
Oil fired central heating system: All dwellings have their own separate oil fired boilers, electricity and water supplies
uPVC double glazed windows
Description
This magnificent detached residence rests on a large private and mature site on the outskirts of the market town of Newtownards, within 15 minutes of Bangor, 10mins to Donaghadee and approximately 30 minutes" drive from Belfast City. Ideally situated in a quiet rural setting at the beginning of the Newtownards Peninsula, the property is set on grounds totalling circa 5.5 acres, and holds all the attributes to provide a relaxed rural lifestyle whilst pertaining excellent convenience.
Approached via a dry stone wall front boundary with electronic entrance gates, one is immediately struck by the size and kerb appeal of this impressive home. "The Sycamores" is a property that offers a vast wealth of spacious accommodation spread over the main dwelling house along with integral annex, extensive detached first floor apartment and two semi-detached cottages. The main house is set over two floors, there are large reception areas, ideal for entertaining, with lounge, sun room, formal dining room, family room and deluxe medium Oak kitchen. On the first floor there are four bedrooms, two with en-suite, study area on minstrel gallery landing and family bathroom. The integral annex (Willow Tree Cottage) has its own external door, but is also accessed from the kitchen of the main house. There is a lounge with open fire, fitted kitchen, 1 double bedroom plus dressing room and luxury bathroom. The annex would be a superb space for a dependant relative or Au Pair.
The detached apartment (Oak Tree Lodge) is positioned above the garaging and is extremely deceptive in its proportions and finished to a modern and trendy standard. Offering a large lounge with patio doors to a great sized balcony (28"3 ft x 17"5 ft) with superb countryside views, good sized luxury kitchen, two double bedrooms - both with en suites, large dining room/ home office and modern utility room. There is integral garage with remote control door along with the apartment.
The two semi-detached cottages are a fantastic addition to the property, Ash Tree Cottage (left side) with a cottage style interior holds an entrance hall, large double height open plan lounge/ dining/ and fitted kitchen space with feature Pitch Pine floor and wood burning stove. There is also a good sized sun room and shower room on the ground floor. At first floor level there is a double bedroom with vaulted ceiling. Apple Tree Cottage (right side) offers a modern style of interior with entrance hall, large lounge/ dining room with feature double height ceiling luxury fitted kitchen, two double bedrooms, bedroom with en suite, there is a fully fitted luxury bathroom next to bed 2 on the first floor.
Externally there is a range of domestic garages with the property which provide vast secure storage, should you have vehicles you wish to tuck away or require storage. Landscaped gardens of around 1.5 acres set out with rolling lawns, mature trees and planted flowerbeds, there is a large tarmac driveway which leads onto a extensive concrete yard and provides superb parking and turning space. In addition there is a 4 acre field currently laid out in grassland - which may be utilised as grazing for animals or for equestrian use.
To arrange a private viewing appraisal, please contact our Newtownards office on 02891 800700.
This magnificent detached residence rests on a large private and mature site on the outskirts of the market town of Newtownards, within 15 minutes of Bangor, 10mins to Donaghadee and approximately 30 minutes" drive from Belfast City. Ideally situated in a quiet rural setting at the beginning of the Newtownards Peninsula, the property is set on grounds totalling circa 5.5 acres, and holds all the attributes to provide a relaxed rural lifestyle whilst pertaining excellent convenience.
Approached via a dry stone wall front boundary with electronic entrance gates, one is immediately struck by the size and kerb appeal of this impressive home. "The Sycamores" is a property that offers a vast wealth of spacious accommodation spread over the main dwelling house along with integral annex, extensive detached first floor apartment and two semi-detached cottages. The main house is set over two floors, there are large reception areas, ideal for entertaining, with lounge, sun room, formal dining room, family room and deluxe medium Oak kitchen. On the first floor there are four bedrooms, two with en-suite, study area on minstrel gallery landing and family bathroom. The integral annex (Willow Tree Cottage) has its own external door, but is also accessed from the kitchen of the main house. There is a lounge with open fire, fitted kitchen, 1 double bedroom plus dressing room and luxury bathroom. The annex would be a superb space for a dependant relative or Au Pair.
The detached apartment (Oak Tree Lodge) is positioned above the garaging and is extremely deceptive in its proportions and finished to a modern and trendy standard. Offering a large lounge with patio doors to a great sized balcony (28"3 ft x 17"5 ft) with superb countryside views, good sized luxury kitchen, two double bedrooms - both with en suites, large dining room/ home office and modern utility room. There is integral garage with remote control door along with the apartment.
The two semi-detached cottages are a fantastic addition to the property, Ash Tree Cottage (left side) with a cottage style interior holds an entrance hall, large double height open plan lounge/ dining/ and fitted kitchen space with feature Pitch Pine floor and wood burning stove. There is also a good sized sun room and shower room on the ground floor. At first floor level there is a double bedroom with vaulted ceiling. Apple Tree Cottage (right side) offers a modern style of interior with entrance hall, large lounge/ dining room with feature double height ceiling luxury fitted kitchen, two double bedrooms, bedroom with en suite, there is a fully fitted luxury bathroom next to bed 2 on the first floor.
Externally there is a range of domestic garages with the property which provide vast secure storage, should you have vehicles you wish to tuck away or require storage. Landscaped gardens of around 1.5 acres set out with rolling lawns, mature trees and planted flowerbeds, there is a large tarmac driveway which leads onto a extensive concrete yard and provides superb parking and turning space. In addition there is a 4 acre field currently laid out in grassland - which may be utilised as grazing for animals or for equestrian use.
To arrange a private viewing appraisal, please contact our Newtownards office on 02891 800700.
Rooms
MAIN HOUSE
WILLOW TREE COTTAGE
Solid mahogany front doors, matching side lights to Entrance Porch.
ENTRANCE HALL:
Herringbone mahogany floor, telephone point, wall light points, corniced ceiling, double height ceiling, glazed double doors to Lounge and Dining Room. Cloaks cupboard.
CLOAKROOM:
White suite comprising: pedestal wash hand basin, low flush WC, wall tiling, ceramic tiled floor, corniced ceiling, extractor fan.
LOUNGE: 27' 10" X 14' 2" (8.48m X 4.32m)
Attractive reclaimed polished mahogany fireplace with granite inset and hearth, open fire with basket grate, corniced ceiling, wall light points, polished oak floor. LED recessed spotlighting, uPVC double glazed French doors to side, open to Sun Room.
SUN ROOM: 15' 9" X 13' 5" (4.80m X 4.09m)
Polished oak floor, countryside views.
FORMAL DINING ROOM: 13' 5" X 12' 5" (4.09m X 3.78m)
Wall light points, corniced ceiling and ceiling rose.
FAMILY ROOM: 16' 7" X 13' 4" (5.05m X 4.06m)
Feature oak fireplace surround, cast iron inset, granite hearth, open fire with Baxi back boiler, (heats 22 radiators and 3 HP cylinders), wall light points, polished oak floor, corniced ceiling and ceiling rose, open to Kitchen.
DELUXE FITTED KITCHEN: 14' 4" X 12' 0" (4.37m X 3.66m)
1.5 tub single drainer stainless steel sink unit with mixer taps, excellent range of high and low level oak units, tiled work surfaces, 4 ring ceramic hob unit, extractor hood, double built in oven, plumbed for dish washer, larder cupboard, display cabinets, breakfast bar, wall tiling, ceramic tiled floor, concealed lighting, corniced ceiling, LED recessed spotlights, intercom for main entrance gates.
REAR HALLWAY:
Ceramic tiled floor, oil fired boiler house, oil fired boiler, ceramic tiled floor.
REAR CONSERVATORY PORCH: 10' 9" X 9' 1" (3.28m X 2.77m)
Ceramic tiled floor, LED recessed spotlights, uPVC double glazed door to rear, plumbed for washing machine.
LARGE MINSTREL GALLERY LANDING:
Wall light points, corniced ceiling, and ceiling rose, LED recessed spotlights, study area, Hotpress with copper cylinder and immersion heater.
BEDROOM (1): 19' 9" X 14' 3" (6.02m X 4.34m)
Range of built in robes, corniced ceiling, LED recessed spotlighting, wired for wall mounted TV.
DELUXE ENSUITE:
White suite comprising: Separate fully tiled shower cubicle with thermostatically controlled shower, vanity sink unit, low flush WC, wall tiling, LED recessed spotlights, Hotpress with copper cylinder and immersion heater.
BEDROOM (2): 13' 3" X 13' 1" (4.04m X 3.99m)
2 built in robes, LED recessed spotlights.
ENSUITE:
White suite comprising: Separate fully tiled shower cubicle with thermostatically controlled shower, pedestal wash hand basin, low flush WC, wall tiling, LED recessed spotlights.
DELUXE BATHROOM:
Cream suite comprising: Panelled corner bath with mixer taps and telephone hand shower over bath, separate fully tiled shower cubicle with thermostatically controlled shower, pedestal wash hand basin with mixer taps, low flush WC, wall tiling, ceramic tiled floor, chrome towel radiator, LED recessed spotlighting, shaver point.
BEDROOM (3): 12' 5" X 11' 5" (3.78m X 3.48m)
Corniced ceiling, LED recessed spotlighting, Built in robe.
BEDROOM (4): 13' 2" X 8' 1" (4.01m X 2.46m)
Built in robe, LED recessed spotlights.
ANNEX
uPVC double glazed door to Entrance Hall.
ENTRANCE HALL:
Polished laminate floor, telephone point, storage under stairs, corniced ceiling, LED recessed spotlights.
LOUNGE: 13' 10" X 12' 5" (4.22m X 3.78m)
Feature carved mahogany fireplace surround, tiled inset and hearth, open fire, polished laminate floor, corniced ceiling, LED recessed spotlights, intercom for main electric gates.
DELUXE KITCHEN/BREAKFAST ROOM: 13' 10" X 8' 7" (4.22m X 2.62m)
Single drainer stainless steel sink unit with mixer taps, range of high and low level units, Formica roll edge work surfaces, freestanding cooker, extractor hood, plumbed for dishwasher and washing machine, ceramic tiled floor, concealed lighting, display cabinet, corniced ceiling.
LANDING:
Concealed hotpress with copper cylinder and immersion heater, corniced ceiling LED recessed spotlighting.
BEDROOM (1): 12' 7" X 12' 5" (3.84m X 3.78m)
2 Built in robes, corniced ceiling, LED recessed spotlighting.
DRESSING ROOM: 8' 8" X 6' 6" (2.64m X 1.98m)
L shaped.
LUXURY BATHROOM:
Modern white suite comprising: Panelled shower bath with mixer taps, telephone hand shower over, shower screen, pedestal wash hand basin, mixer taps, push button WC, fully tiled walls, polished laminate floor, chrome towel radiator, LED recessed spotlights, shaver point.
Boiler house with oil fired boiler, oil storage tank, outside light.
APARTMENT:
Oak Tree Lodge
uPVC double glazed door to:
UTILITY ROOM: 13' 5" X 7' 4" (4.09m X 2.24m)
Black single drainer sink unit with mixer taps, range of high adn low level white shaker style units, Formica roll edge work surfaces, plumbed for washing machine, recess for tumble dryer, feature wall tiling, ceramic tiled floor, LED recessed spotlighting.
CLOAKROOM:
Modern white suite comprising: Push button WC, chrome towel radiator, fully tiled walls, ceramic tiled floor, LED recessed spotlighting, extractor fan.
Staircase to First Floor.
LUXURY KITCHEN: 13' 5" X 10' 4" (4.09m X 3.15m)
Black single drainer stainless steel sink unit with mixer taps, range of high and low level white shaker style units, Formica roll edge work surfaces, 4 ring ceramic hob unit, built in oven, extractor hood, integrated fridge and dishwasher, wall tiling, concealed lighting, wall tiling, polished laminate floor, steps up to Lounge.
LOUNGE: 20' 5" X 13' 6" (6.22m X 4.11m)
Feature modern wall mounted electric fire, polished laminate floor, LED recessed spotlighting, TV points, wall light points, wired for wall mounted TV, uPVC double glazed double patio doors to:
PAVED TERRACE: 28' 3" X 17' 5" (8.61m X 5.31m)
Glass balustrade, wall light points, countryside views.
BEDROOM (1): 16' 7" X 12' 9" (5.05m X 3.89m)
Polished laminate floor, two velux windows, LED recessed spotlights, built in robes.
LUXURY ENSUITE:
Modern white suite comprising: Large separate fully tiled shower cubicle with thermostatically controlled shower, rain head and telephone hand shower, pedestal wash hand basin with mixer taps, push button WC, fully tiled walls, chrome towel radiator, roof light window, LED recessed spotlighting, extractor fan.
DINING ROOM/LARGE OFFICE: 28' 4" X 7' 9" (8.64m X 2.36m)
4 velux windows, LED recessed spotlights, polished laminate floor, built in robe.
BEDROOM (2): 16' 7" X 13' 0" (5.05m X 3.96m)
Polished laminate floor, LED recessed spotlighting, wired for wall mounted TV, built in robe.
LUXURY ENSUITE BATHROOM:
Modern white suite comprising: panelled shower bath with mixer taps and telephone hand shower over, shower screen, pedestal wash hand basin with mixer taps, push button WC, fully tiled walls, roof light window, LED recessed spotlights, extractor fan, chrome towel radiator.
INTEGRAL DOUBLE GARAGE: 28' 0" X 17' 9" (8.53m X 5.41m)
Remote control roller door, light and power, Grant condensing oil fired boiler.
SEMI DETACHED COTTAGE:
Apple Tree Cottage.
uPVC double glazed door to:
ENTRANCE HALL:
Polished laminate floor, LED recessed spotlights.
LOUNGE / DINING: 19' 10" X 19' 5" (6.05m X 5.92m)
Feature wood burning stove, ?? tiled hearth, polished laminate floor, wired for wall mounted TV, wall light points, feature vaulted ceiling, exposed brick detailing, uPVC double glazed French doors to rear.
LUXURY KITCHEN: 15' 5" X 7' 9" (4.70m X 2.36m)
1.5 tub single drainer stainless steel sink unit with mixer taps, range of high and low level shaker style units, Formica roll edge work surfaces, modern freestanding stainless steel Rangemaster range cooker and extractor hood, recess for fridge freezer, integrated washing machine and dish washer, wine rack, concealed lighting, ceramic tiled floor, stone wall tiling, LED recessed spotlighting.
BEDROOM (1): 15' 5" X 11' 6" (4.70m X 3.51m)
Polished laminate floor, range of mirror fronted Sliderobes, wired for wall mounted TV, corniced ceiling, vertical radiator, LED recessed spotlighting.
LUXURY ENSUITE SHOWER ROOM:
Modern white suite comprising: Separate fully tiled shower cubicle with thermostatically controlled shower, floating vanity unit, wash hand basin with mixer taps, push button WC, fully tiled walls, ceramic tiled floor, chrome towel radiator, LED recessed spotlights, extractor fan.
Staircase leading to:
LANDING:
Range of mirror fronted Sliderobes, LED recessed spotlighting.
BEDROOM (2): 19' 5" X 13' 4" (5.92m X 4.06m)
Vaulted ceiling, TV point, stainless steel and glass balustrade overlooking Lounge/Dining, velux windows, LED recessed spotlighting.
LUXURY BATHROOM:
Modern white suite comprising: Freestanding bath with mixer taps, separate fully tiled shower cubicle with thermostatically controlled shower, floating vanity sink unit with mixer taps, push button WC, storage cupboard, vaulted ceiling, LED recessed spotlighting, velux window.
GARAGE 1: 20' 2" X 13' 7" (6.15m X 4.14m)
Roller door, light and power.
GARAGE 2: 31' 5" X 28' 5" (9.58m X 8.66m)
Twin roller doors (remote control), four uPVC double glazed windows, uPVC double glazed pedestrian door.
SEMI DETACHED COTTAGE:
Ash Tree Cottage
uPVC double glazed door to Entrance Hall.
ENTRANCE HALL:
Ceramic tiled floor, LED recessed spotlights, glazed double doors to Lounge/Dining/Kitchen.
OPEN PLAN LOUNGE/DINING/KITCHEN: 33' 1" X 19' 7" (10.08m X 5.97m)
DELUXE KITCHEN: Range of high and low level units, Formica roll edge work surfaces, 1.5 tub single drainer stainless steel sink unit with mixer taps, Freestanding Smeg range cooker, stainless steel extractor hood and splashback, display cabinets, wine rack, ceramic tiled floor.
LOUNGE/DINING AREA:
Feature Belfast brick fireplace surround with sleeper mantle, wood burning stove, polished pitch pine floor, feature vaulted ceiling, 3 velux windows, double doors to:
SUN ROOM: 16' 5" X 12' 3" (5.00m X 3.73m)
Ceramic tiled floor, LED recessed spotlights, countryside views, uPVC double glazed door to side.
DELUXE SHOWER ROOM:
White suite comprising: Large separate fully tiled shower cubicle with thermostatically controlled shower, pedestal wash hand basin, low flush WC, fully tiled walls, ceramic tiled floor, chrome towel radiator, recessed spotlighting, Linen cupboard plumbed for washing machine.
Staircase leading to:
BEDROOM (1): 19' 6" X 13' 5" (5.94m X 4.09m)
Polished pitch pine floor, feature vaulted ceiling, LED recessed spotlighting, built in robe.
Video
Broadband Speed Availability
Potential Speeds for 45A Loughries Road
Max Download
42
Mbps
Max Upload
8
MbpsThe speeds indicated represent the maximum estimated fixed-line speeds as predicted by Ofcom. Please note that these are estimates, and actual service availability and speeds may differ.
Property Location
Mortgage Calculator
Directions
Travel along the Movilla Road leaving Newtownards, turn right onto Loughries Road, continue straight ahead, and turn left onto lane at the Movilla Trout Fishery sign, and follow round to the right, 45a is located on the left hand side.
Contact Agent
Contact Simon Brien (Newtownards)
Request More Information
Requesting Info about...
The Sycamores, 45A Loughries Road, Newtownards, BT23 8RW
By registering your interest, you acknowledge our Privacy Policy
By registering your interest, you acknowledge our Privacy Policy