Site
BUILDING SITE, 18 Cardy Road
Newtownards, Greyabbey, BT22 2LT
offers around
£99,950
- Status For Sale
- Property Type Site
-
Stamp Duty
Higher amount applies when purchasing as buy to let or as an additional property£0 / £4,998*
Key Features & Description
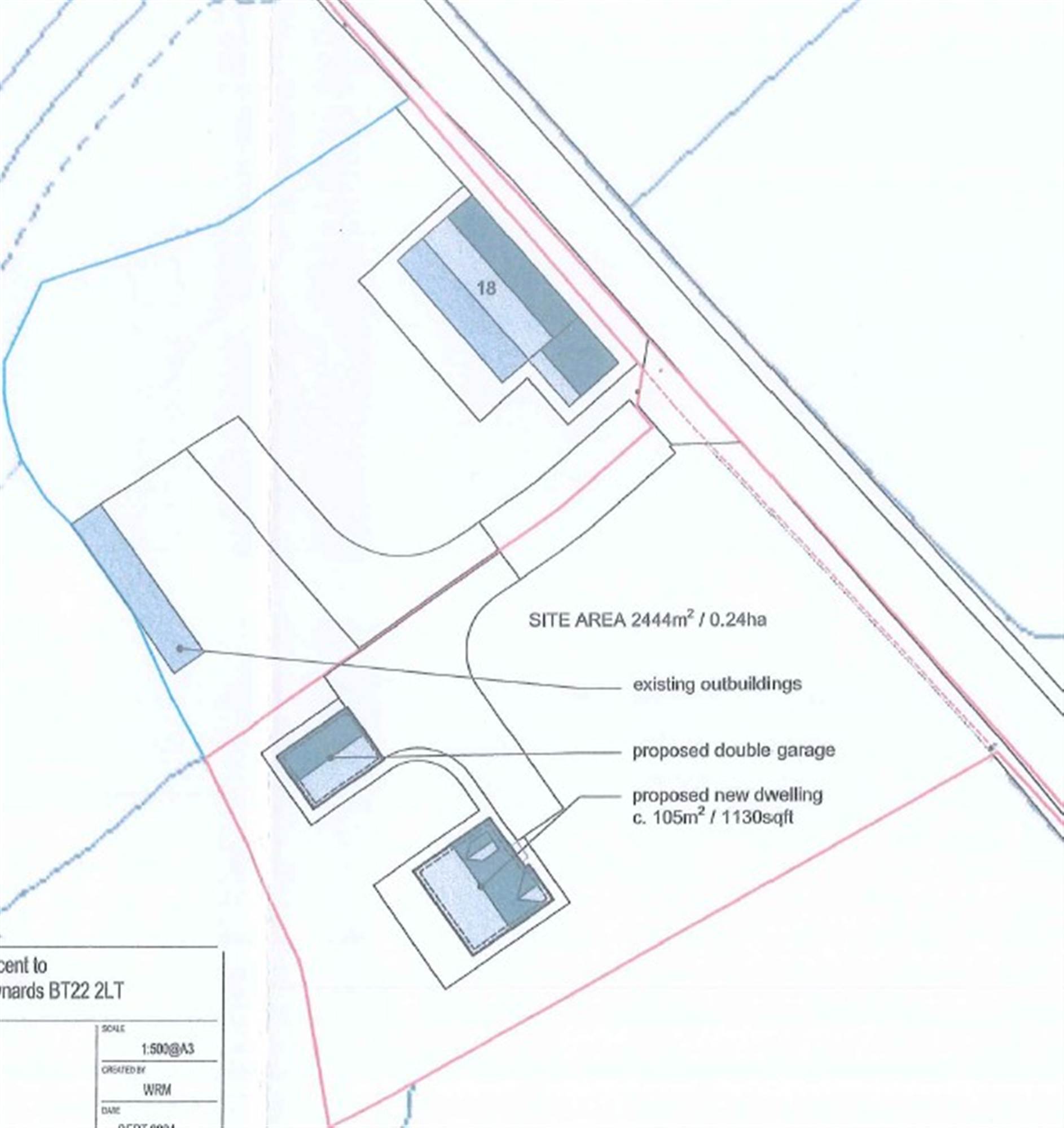
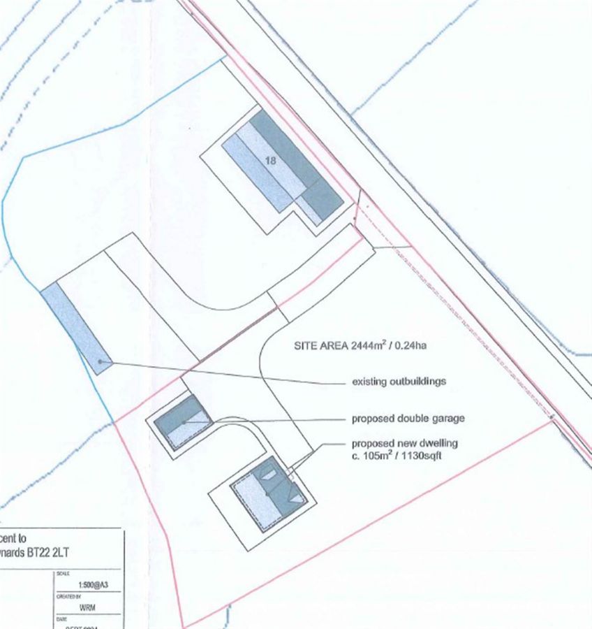
The site extends to approx 0.6 of an acre
Outline planning permission for a single storey dwelling, further details and copies of site plan and outline planning permission are available for inspection.
Description
This excellent site is situated within easy commuting distance of Bangor and
Newtownards, this would also be an ideal opportunity for the eventual purchaser to build a home to their own specification in this much sought after rural location.
This excellent site is situated within easy commuting distance of Bangor and
Newtownards, this would also be an ideal opportunity for the eventual purchaser to build a home to their own specification in this much sought after rural location.
Video
Broadband Speed Availability
Potential Speeds for 18 Cardy Road
Max Download
1800
Mbps
Max Upload
1000
MbpsThe speeds indicated represent the maximum estimated fixed-line speeds as predicted by Ofcom. Please note that these are estimates, and actual service availability and speeds may differ.
Property Location

Mortgage Calculator
Directions
Cardy Road
Contact Agent

Contact Peter Rogers Estate Agents
Request More Information
Requesting Info about...
BUILDING SITE, 18 Cardy Road, Newtownards, Greyabbey, BT22 2LT
By registering your interest, you acknowledge our Privacy Policy

By registering your interest, you acknowledge our Privacy Policy