Contact Agent
Contact Templeton Robinson (North Down)
5 Bed Detached House
3 Hadmore Heights
Newtownards, BT23 4YU
offers around
£389,950
Key Features & Description
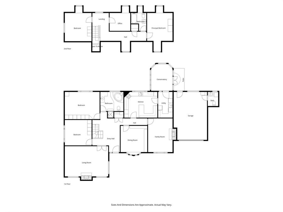
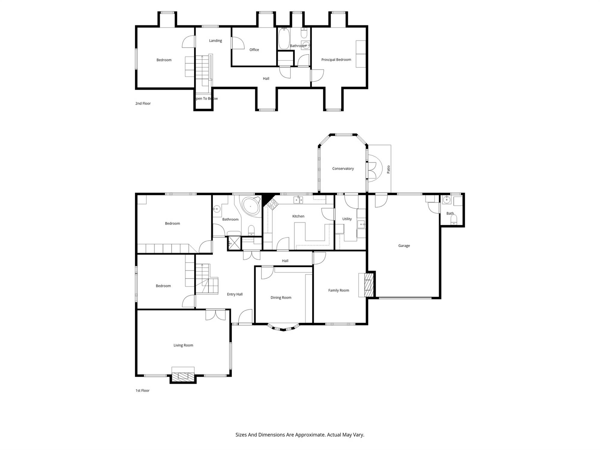
Wonderful detached family home extending to circa 2,500 sqft
Nestled within a quiet cu-de-sac with views to Scrabo Tower
Bright, well-proportioned and adaptable layout
Living Room (with wood burning stove)
Sitting Room (with wood burning stove)
Dining Room
Open plan Kitchen - Dining
Utility leading to:
Conservatory
Five Bedrooms - Three on first floor/Two on ground level
Two Bathrooms - One of first floor/One on ground level
Oil fired central heating
Part uPVC double glazed / Part uPVC triple glazed - to side & back of property
Attached Garage (measuring 22'1 X 15'3)
Tarmac driveway offering ample parking for several vehicles
Enveloped by mature gardens in lawn with patio, all bordered by shrubbery & trees
Established & sought after location on Belfast side of Ards - ideal for commuters
Nearby various amenities & recreational pursuits including schools, Ards Shopping Centre, Blair Mayne leisure centre & Scrabo Country Park
Description
Located off the Old Belfast Road on the Belfast side of Newtownards, this notably spacious, detached family home enjoys an established, mature location enhanced by the convenience of Newtownards town.
Nestled within a quiet cul-de-sac, the property occupies a fine level site affording views to Scrabo Tower. Extending to approx. 2,500 sq ft, the property offers a wealth of well-proportioned, adaptable accommodation lending itself perfectly to modern family living. Currently in the form of a spacious hallway, three reception rooms, an open plan kitchen/dining leading to utility plus conservatory. There are five bedrooms - three on the first floor / two on the ground floor plus two bathrooms, one on each floor. Externally, the property is enveloped by mature, private gardens; A sweeping tarmac driveway offers ample parking for several vehicles and leads to a large, attached garage.
Conveniently positioned for those wishing to commute to Belfast, the property is also nearby to the bustling town centre. Renowned primary & secondary schools, Ards Shopping Centre, local leisure centre and Scrabo Country Park are close to hand making it perfect for families also. Viewing is highly recommended to fully appreciate all this wonderful family home has to offer.
Located off the Old Belfast Road on the Belfast side of Newtownards, this notably spacious, detached family home enjoys an established, mature location enhanced by the convenience of Newtownards town.
Nestled within a quiet cul-de-sac, the property occupies a fine level site affording views to Scrabo Tower. Extending to approx. 2,500 sq ft, the property offers a wealth of well-proportioned, adaptable accommodation lending itself perfectly to modern family living. Currently in the form of a spacious hallway, three reception rooms, an open plan kitchen/dining leading to utility plus conservatory. There are five bedrooms - three on the first floor / two on the ground floor plus two bathrooms, one on each floor. Externally, the property is enveloped by mature, private gardens; A sweeping tarmac driveway offers ample parking for several vehicles and leads to a large, attached garage.
Conveniently positioned for those wishing to commute to Belfast, the property is also nearby to the bustling town centre. Renowned primary & secondary schools, Ards Shopping Centre, local leisure centre and Scrabo Country Park are close to hand making it perfect for families also. Viewing is highly recommended to fully appreciate all this wonderful family home has to offer.
Rooms
uPVC double glazed front door.
HALLWAY:
Cloaks store.
LIVING ROOM: 20' 0" X 13' 10" (6.10m X 4.22m)
Feature wood burning stove with timber mantle and attractive stone surround and hearth, ceiling rose, cornice ceiling, feature arch leaded windows.
DINING ROOM: 11' 10" X 11' 10" (3.61m X 3.61m)
Solid herringbone oak wooden floor.
FAMILY ROOM: 15' 5" X 11' 5" (4.70m X 3.48m)
Wood burning stove with decorative surround and stone hearth.
KITCHEN OPEN PLAN TO CASUAL DINING: 15' 2" X 11' 4" (4.62m X 3.45m)
Fitted kitchen with excellent range of high and low level units with open shelving and built-in cooker canopy, stainless steel one and a half bowl sink with drainer and mixer tap, wood block effect worktops, ceramic tiled floor, tiled splashback, built-in dishwasher, built-in fridge. Ceramic tiled floor, raised breakfast bar.
UTILITY ROOM: 11' 5" X 6' 7" (3.48m X 2.01m)
Range of built-in units, plumbed for washing machine, space for dryer.
CONSERVATORY: 13' 0" X 10' 6" (3.96m X 3.20m)
Fully uPVC double glazed, double doors to exterior.
BEDROOM (1): 16' 1" X 12' 8" (4.90m X 3.86m)
BEDROOM (5)/STUDY:: 12' 4" X 11' 6" (3.76m X 3.51m)
BATHROOM:
Four piece suite comprising corner bath with mixer tap, fully tiled shower cubicle, low flush wc, vanity unit with wash hand basin, fully tiled walls, window.
SPACIOUS LANDING:
Store x 2.
BEDROOM (2): 13' 7" X 11' 5" (4.14m X 3.48m)
BEDROOM (3): 13' 7" X 12' 4" (4.14m X 3.76m)
Feature dormer window.
BEDROOM (4): 9' 9" X 8' 7" (2.97m X 2.44m)
BATHROOM:
White bathroom suite comprising panelled bath with shower over, pedestal wash hand basin, low flush wc, half tiled walls, ceramic tiled floor. Access to eaves storage, dormer Velux window.
Nestled within a quiet cul-de-sac with views to Scrabo Tower.
Tarmac driveway offering ample parking for several vehicles.
Enveloped by mature gardens in lawn bordered by array of shrubbery and mature trees. Timber shed. Outside tap and light.
Broadband Speed Availability
Potential Speeds for 3 Hadmore Heights
Max Download
1800
Mbps
Max Upload
220
MbpsThe speeds indicated represent the maximum estimated fixed-line speeds as predicted by Ofcom. Please note that these are estimates, and actual service availability and speeds may differ.
Property Location
Mortgage Calculator
Directions
Travelling into Newtownards from Belfast along the A20/Kempe Stones Road; At the roundabout, take the third exit onto Blair Mayne Road South. Continue staight through the mini roundabout onto Messines Road then turn right onto Scrabo Road. Continue along Scrabo Road onto Old Belfast Road. Hadmore Heights is on the right.
Contact Agent
Contact Templeton Robinson (North Down)
Request More Information
Requesting Info about...
3 Hadmore Heights, Newtownards, BT23 4YU
By registering your interest, you acknowledge our Privacy Policy
By registering your interest, you acknowledge our Privacy Policy