Contact Agent
Contact Ulster Property Sales (UPS) Ballynahinch
4 Bed Detached House
57 Whiterock Road
Killinchy, Newtownards, BT23 6PT
offers around
£499,950
- Status For Sale
- Property Type Detached
- Bedrooms 4
- Receptions 3
- Bathrooms 4
-
Stamp Duty
Higher amount applies when purchasing as buy to let or as an additional property£14,998 / £39,995*
Key Features & Description
Detached Residence
Integral Garage
Four Bedrooms incl Master with Ensuite
Drawing room with stunning views over Strangford Lough
Kitchen with space for informal dining
Family room with beautiful countryside views
Beautifully Presented Throughout
Garden and Patio areas ideal for outside entertaining
Family Bathroom and Separate Ground Floor and First Floor W/C
Stunning Lough and Countryside Views
Description
Nestled in one of County Down´s most sought-after residential settings, this beautiful detached home on Whiterock Road, Killinchy offers an exceptional opportunity to enjoy luxury living just moments from the shores of Strangford Lough. Built in 2004 and thoughtfully designed for both comfort and longevity, this impressive property combines modern convenience with breathtaking natural surroundings.
A Home Designed for Living
From the moment you step inside, the sense of space and light is unmistakable. The property boasts four generously proportioned bedrooms, ideal for family living or hosting guests. The principal suite is a true retreat, complete with a private ensuite bathroom and a spacious dressing room.
The elegant drawing room enjoys stunning, uninterrupted views over Strangford Lough - a perfect setting for relaxing evenings or entertaining in style. The modern fitted kitchen with dining area forms the heart of the home, offering both practicality and contemporary design, while a separate utility room ensures everyday functionality.
Further accommodation includes:
Ground floor WC
First floor WC
Stylish principal family bathroom
Spacious integrated garage
Comfort & Accessibility
The property benefits from oil-fired central heating and double glazing throughout, ensuring warmth and efficiency all year round.
A standout feature of this exceptional home is the integrated lift, enhancing accessibility and making the property suitable for all generations. Whether future-proofing for long-term living or accommodating varying mobility needs, this addition significantly enhances the home´s versatility and appeal.
Outdoor Living
Externally, the property is complemented by well-maintained gardens and a paved patio area - perfect for outdoor dining, entertaining, or simply enjoying the tranquil surroundings.
Nestled in one of County Down´s most sought-after residential settings, this beautiful detached home on Whiterock Road, Killinchy offers an exceptional opportunity to enjoy luxury living just moments from the shores of Strangford Lough. Built in 2004 and thoughtfully designed for both comfort and longevity, this impressive property combines modern convenience with breathtaking natural surroundings.
A Home Designed for Living
From the moment you step inside, the sense of space and light is unmistakable. The property boasts four generously proportioned bedrooms, ideal for family living or hosting guests. The principal suite is a true retreat, complete with a private ensuite bathroom and a spacious dressing room.
The elegant drawing room enjoys stunning, uninterrupted views over Strangford Lough - a perfect setting for relaxing evenings or entertaining in style. The modern fitted kitchen with dining area forms the heart of the home, offering both practicality and contemporary design, while a separate utility room ensures everyday functionality.
Further accommodation includes:
Ground floor WC
First floor WC
Stylish principal family bathroom
Spacious integrated garage
Comfort & Accessibility
The property benefits from oil-fired central heating and double glazing throughout, ensuring warmth and efficiency all year round.
A standout feature of this exceptional home is the integrated lift, enhancing accessibility and making the property suitable for all generations. Whether future-proofing for long-term living or accommodating varying mobility needs, this addition significantly enhances the home´s versatility and appeal.
Outdoor Living
Externally, the property is complemented by well-maintained gardens and a paved patio area - perfect for outdoor dining, entertaining, or simply enjoying the tranquil surroundings.
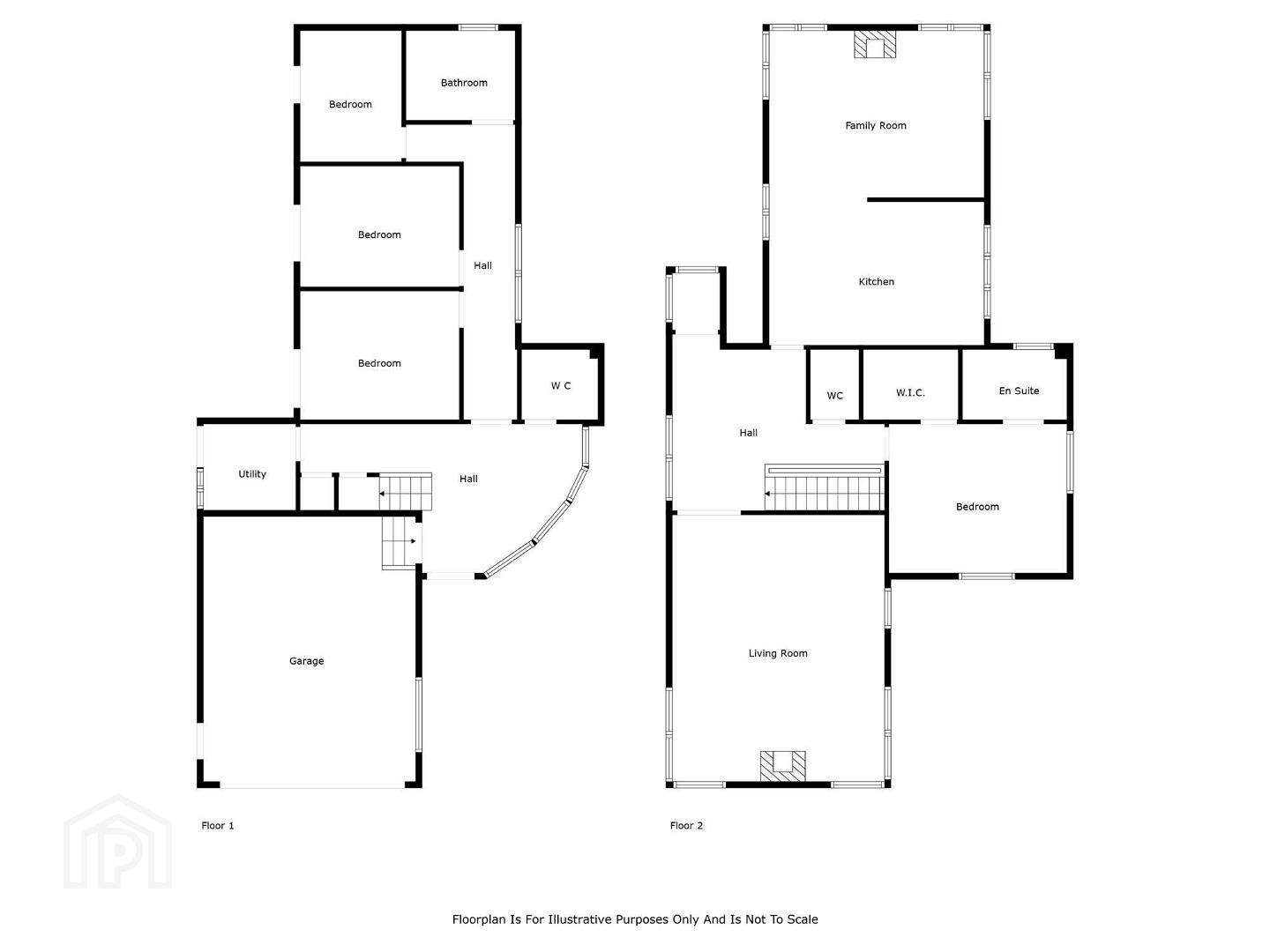
Rooms
Prime Location
Situated within easy walking distance of Strangford Yacht Club and the ever-popular Daft Eddies, the lifestyle on offer here is second to none. The property is also just a short drive to Balloo and Killinchy Primary Schools, as well as a selection of excellent grammar schools in the surrounding area.
For commuters, the location is ideal, offering convenient access to Downpatrick, Belfast, and Newtownards.
This is a rare opportunity to acquire a beautifully presented, spacious detached home in an idyllic loughside setting - combining spectacular views, modern comforts, and superb accessibility in one outstanding package.
For commuters, the location is ideal, offering convenient access to Downpatrick, Belfast, and Newtownards.
This is a rare opportunity to acquire a beautifully presented, spacious detached home in an idyllic loughside setting - combining spectacular views, modern comforts, and superb accessibility in one outstanding package.
GROUND FLOOR
Entrance Hall / Sun Room 11'6" X 11'10" (3.51m X 3.61m)
Paved porch area with overhang veranda leading to PVC front door into bright and spacious entrance hall/sun room with tiled floor. Door to integral garage.
W / C
White suite encompassing low flush W/C and wash hand basin. Tiled floor.
Laundry Room 7'10" X 6'11" (2.39m X 2.11m)
Range of high and low rise units with integrated stainless steel sink and drainer. Tiled floor. Recess for washing machine and tumble dryer. Door to rear.
Integral Garage 16'9" X 20'4" (5.11m X 6.20m)
Electrically operated roller door. Power and light. Door to side.
Bedroom One 12'6" X 10'2" (3.81m X 3.10m)
Double patio doors to side patio and gardens.
Bedroom Two 12'10" X 9'6" (3.91m X 2.90m)
Double patio doors to side patio and gardens.
Bedroom Three 8'6" X 10'2" (2.59m X 3.10m)
Double patio doors to side patio and gardens. Built in robes.
Family Bathroom 6'7" X 8'2" (2.01m X 2.49m)
White suite encompassing low flush W/C, wash hand vanity unit and bath with overhead shower. Tiled walls and floor. Towel radiator.
FIRST FLOOR
Landing 12'10" X 17'5" (3.91m X 5.31m)
Bright landing area. Access to roof space. Door to fully operational elevator. Double doors through to drawing room;
W / C
White suite encompassing low flush W/C and vanity wash hand unit.
Drawing Room 20'8" X 16'9" (6.30m X 5.11m)
Bright and spacious drawing room with corner window and stunning views over Strangford Lough. Feature granite fireplace with gas inset.
Kitchen 17'5" X 11'6" (5.31m X 3.51m)
Range of high and low rise units with polished granite worktops and Belfast style sink with mixer taps and tiled splash backs. Recess for Falcon range 5 ring hob with extractor fan. Integrated fridge/freezer and dish washer. Tiled floor. Space for dining. Open plan through to family area;
Family Area 13'5" X 17'1" (4.09m X 5.21m)
Corner windows with beautiful countryside views. Fireplace with electric fire.
Master Bedroom 13'9" X 11'10" (4.19m X 3.61m)
Ensuite
White suite encompassing low flush W/C, wash hand vanity unit and walk in shower. Towel radiator. Tiled walls.
OUTSIDE
Approached via double gates into tarmaced driveway with ample space for parking. Access to integral garage. Paved path leading to main door with overhang veranda to front. Mature and private hedged gardens with paved patio area ideal for outside entertaining and lawned area with feature flowerbeds and mature planting.
Broadband Speed Availability
Potential Speeds for 57 Whiterock Road
Max Download
1800
Mbps
Max Upload
300
MbpsThe speeds indicated represent the maximum estimated fixed-line speeds as predicted by Ofcom. Please note that these are estimates, and actual service availability and speeds may differ.
Property Location
Mortgage Calculator
Contact Agent
Contact Ulster Property Sales (UPS) Ballynahinch
Request More Information
Requesting Info about...
57 Whiterock Road, Killinchy, Newtownards, BT23 6PT
By registering your interest, you acknowledge our Privacy Policy
By registering your interest, you acknowledge our Privacy Policy