Contact Agent
Contact Ulster Property Sales (UPS) Newtownards
4 Bed Detached House
Cairnview, 120 Ballybarnes Road
Craigantlet, Newtownards, BT23 4TD
offers over
£695,000
Key Features & Description
Stunning detached family home circa 2500 sq ft, set on an elevated site of approximately 0.75 acre
Four well-proportioned double bedrooms, principal with luxury en suite and balcony
Spacious luxury kitchen with quartz worktops open plan to dining and family areas
Four reception rooms including drawing room and lounge, both with feature fireplaces
Contemporary family bathroom, separate utility room and downstairs WC
Detached double garage with additional workshop space, power and light
Generous gardens in lawns with mature trees, ample parking and countryside views
Convenient semi-rural location within easy reach of Holywood, Bangor, Newtownards and Belfast, and close to leading schools
Description
This exceptional detached home is set on an elevated site extending to approximately 0.75 acre, enjoying outstanding views over open countryside to both front and rear. Offering a superb blend of space, quality and privacy, the property has been meticulously maintained and is perfectly suited to modern family living.
Internally, the home provides bright and well-proportioned accommodation throughout, with a range of versatile reception spaces including a formal living room and separate lounge, both with feature fireplaces, alongside a spacious family room. The heart of the home is the luxury fitted kitchen, finished with quartz worktops and open plan to the dining and family areas, creating an ideal space for everyday living and entertaining, further complemented by a separate utility room and guest WC.
Upstairs, there are four generous double bedrooms, including a principal bedroom with a contemporary en suite shower room and access to a large balcony which takes full advantage of the surrounding views. A luxury family bathroom completes the first floor.
Externally, the property is approached by a sweeping driveway providing ample parking and access to a detached double garage. The gardens are laid in lawns with mature trees and planting, offering a high degree of privacy and a peaceful setting.
Conveniently located within easy reach of Holywood, Bangor, Newtownards and Belfast, and less than 10 minutes from a selection of leading primary and grammar schools, this is a superb opportunity to acquire a quality home in a highly desirable semi-rural location.
This exceptional detached home is set on an elevated site extending to approximately 0.75 acre, enjoying outstanding views over open countryside to both front and rear. Offering a superb blend of space, quality and privacy, the property has been meticulously maintained and is perfectly suited to modern family living.
Internally, the home provides bright and well-proportioned accommodation throughout, with a range of versatile reception spaces including a formal living room and separate lounge, both with feature fireplaces, alongside a spacious family room. The heart of the home is the luxury fitted kitchen, finished with quartz worktops and open plan to the dining and family areas, creating an ideal space for everyday living and entertaining, further complemented by a separate utility room and guest WC.
Upstairs, there are four generous double bedrooms, including a principal bedroom with a contemporary en suite shower room and access to a large balcony which takes full advantage of the surrounding views. A luxury family bathroom completes the first floor.
Externally, the property is approached by a sweeping driveway providing ample parking and access to a detached double garage. The gardens are laid in lawns with mature trees and planting, offering a high degree of privacy and a peaceful setting.
Conveniently located within easy reach of Holywood, Bangor, Newtownards and Belfast, and less than 10 minutes from a selection of leading primary and grammar schools, this is a superb opportunity to acquire a quality home in a highly desirable semi-rural location.
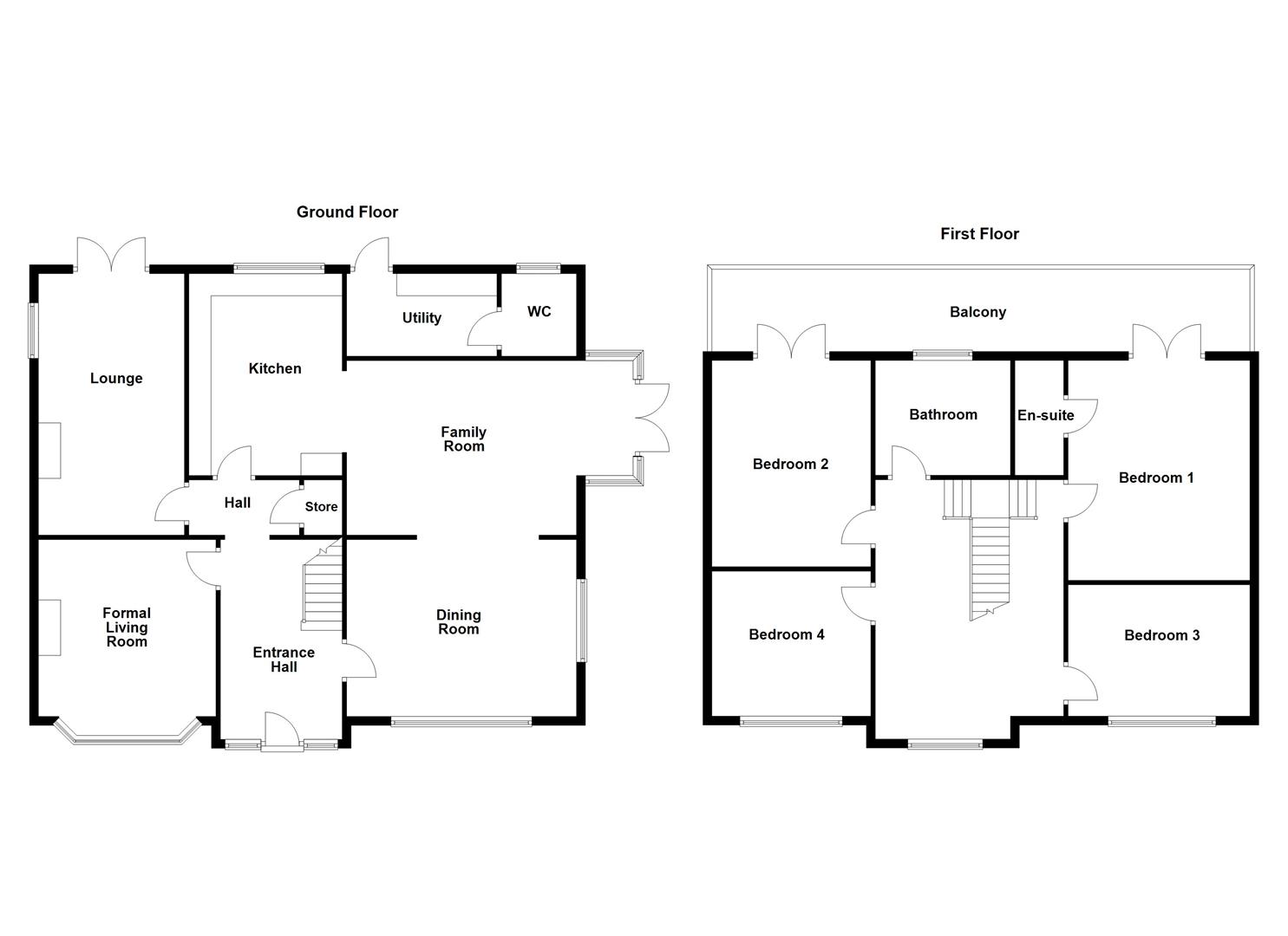
Rooms
Accommodation Comprises:
Entrance Hall
Welcoming entrance hall with wood flooring, corniced ceiling and understairs storage.
Formal Living Room 13'1" X 13'1"(intobay) (4.00m X 4.00m(intobay))
Bright front-facing reception room with bay window, wood flooring and feature open fireplace with cast iron inset, painted surround and tiled hearth
Lounge 19'4" X 10'9" (5.90m X 3.30m)
Spacious reception room with wood flooring and feature open fireplace. Double doors provide direct access to the rear garden.
Kitchen 16'4" X 13'9" (5.00m X 4.20m)
Luxury fitted kitchen with an excellent range of high and low level units, quartz worktops and upstands. Space for range cooker with feature splashback and integrated extractor, integrated dishwasher, Caple stainless steel undermounted sink, and twin integrated fridges and freezers. Tiled flooring, recessed spotlighting and access to utility room and guest WC.
Utility Room 11'1" X 6'2" (3.40m X 1.90m)
Luxury range of high and low level units and quartz worktops. Caple stainless steel sink, plumbed for washing machine, space for tumble dryer and door to rear garden.
Family Room 18'8" X 11'1" (5.70m X 3.40m)
Open plan living space with tiled flooring and recessed spotlighting, ideal for everyday use. Double doors to side garden and open to formal dining area.
Dining Room 17'0" X 10'9" (5.20m X 3.30m)
Formal dining space with wood flooring and dual aspect windows, seamlessly open to the family room.
Guest WC
Modern white suite comprising low flush WC and wall mounted wash hand basin with mixer tap. Feature tiling, tiled flooring and recessed spotlighting.
First Floor
Landing
Impressive galleried landing with wood flooring, access to roofspace and views over the reservoir.
Bedroom 1 13'5" X 12'9" (4.10m X 3.90m)
Spacious double bedroom with wood effect flooring and double doors leading to a large balcony with far-reaching semi-rural views.
Ensuite
Luxury white suite including wall hung WC, wash hand basin and walk-in shower with feature tiling and Mira Sport shower. Fully tiled floor, part tiled walls and recessed spotlighting.
Bedroom 2 12'9" X 11'9" (3.90m X 3.60m)
Double bedroom with wood effect flooring and double doors to a balcony enjoying open views.
Bedroom 3 16'4" X 9'10" (5.00m X 3.00m)
Generous double bedroom with wood effect flooring and views over the reservoir.
Bedroom 4 11'9" X 10'9" (3.60m X 3.30m)
Well-proportioned double bedroom with wood effect flooring and attractive views over the reservoir.
Bathroom
Contemporary family bathroom with panelled bath and mixer tap with hand shower attachment, separate corner shower with Mira Sport shower, low flush WC and wall mounted wash hand basin. Fully tiled floor, part tiled walls and recessed lighting.
Outside
Front gardens laid in lawn with mature planting, trees and hedging. Tarmac driveway providing ample parking and access to the side and rear. Enclosed rear gardens laid in lawn with mature shrubs and trees, enjoying a private aspect with countryside views. Oil tank, outside tap and external sockets.
Double Garage 22'6" X 19'5" (6.86m X 5.92m)
Detached double garage with power, light, built-in shelving and additional workshop space.
Video
Broadband Speed Availability
Potential Speeds for 120 Ballybarnes Road
Max Download
10000
Mbps
Max Upload
10000
MbpsThe speeds indicated represent the maximum estimated fixed-line speeds as predicted by Ofcom. Please note that these are estimates, and actual service availability and speeds may differ.
Property Location
Mortgage Calculator
Contact Agent
Contact Ulster Property Sales (UPS) Newtownards
Request More Information
Requesting Info about...
Cairnview, 120 Ballybarnes Road, Craigantlet, Newtownards, BT23 4TD
By registering your interest, you acknowledge our Privacy Policy
By registering your interest, you acknowledge our Privacy Policy