Contact Agent
Contact Ulster Property Sales (UPS) Newtownards
3 Bed Detached House
16 Whitethorn Brae
Newtownards, BT23 8EX
offers around
£270,000
Key Features & Description
Recently renovated three bedroom detached home in the popular Whitehorn development
Bright living room featuring bay window, recessed lighting and built-in electric fireplace
Spacious kitchen/dining area with modern units, integrated appliances and patio doors
Three well-proportioned double bedrooms, one benefiting from built-in wardrobes
Contemporary bathroom with freestanding bath, rainfall shower and double vanity unit
Gas fired central heating system and uPVC double glazed windows throughout
Detached double garage with roller shutter door, power and lighting
Brick paviour driveway for multiple vehicles and enclosed rear garden with patio area
Description
Situated within the highly sought-after Whitethorn development, this impressive detached home occupies a quiet position on a desirable residential street. Finished to a high standard and beautifully presented throughout, this home represents a rare opportunity to purchase within this popular development.
The entrance hall leads to an elegant living room, centred around a built in electric fireplace which provides a warm and inviting focal point. The spacious open plan kitchen and dining area is ideal for modern family living and entertaining, featuring an excellent range of high and low level units along with integrated appliances. The home is further complemented by a contemporary bathroom suite, complete with a freestanding bath, luxury walk-in shower and a matching vanity unit with storage.
On the first floor, there are three further well proportioned double bedrooms, one of which benefits from built in wardrobes.
Externally, the property enjoys a large driveway providing ample parking for multiple vehicles, a detached double garage, and a low-maintenance rear garden ideal for everyday enjoyment.
Early viewing is highly recommended to fully appreciate all that this exceptional property has to offer.
Situated within the highly sought-after Whitethorn development, this impressive detached home occupies a quiet position on a desirable residential street. Finished to a high standard and beautifully presented throughout, this home represents a rare opportunity to purchase within this popular development.
The entrance hall leads to an elegant living room, centred around a built in electric fireplace which provides a warm and inviting focal point. The spacious open plan kitchen and dining area is ideal for modern family living and entertaining, featuring an excellent range of high and low level units along with integrated appliances. The home is further complemented by a contemporary bathroom suite, complete with a freestanding bath, luxury walk-in shower and a matching vanity unit with storage.
On the first floor, there are three further well proportioned double bedrooms, one of which benefits from built in wardrobes.
Externally, the property enjoys a large driveway providing ample parking for multiple vehicles, a detached double garage, and a low-maintenance rear garden ideal for everyday enjoyment.
Early viewing is highly recommended to fully appreciate all that this exceptional property has to offer.
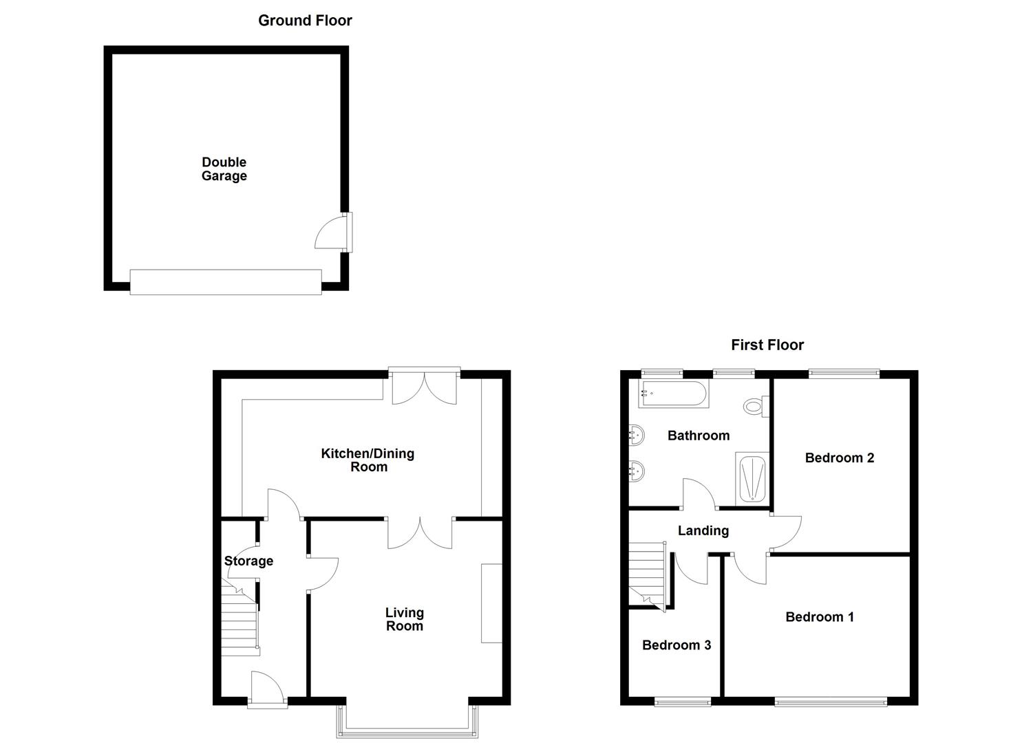
Rooms
Accommodation Comprises:
Entrance Hallway
Tiled floor, under stair storage.
Living Room 15 X 13'09 (4.57m X 4.19m)
Bay window with recessed spotlights and built in electric fireplace and TV unit,
Kitchen/Dining Room 21'11 X 10'10 (6.68m X 3.30m)
Modern range of high and low level units with laminate work surfaces and upstands, inset stainless steel sink unit with mixer taps, built in appliances to include; oven, 4 ring electric hob, fridge/freezer, microwave, angled extractor fan and hood, cupboard for gas fired boiler, recessed spotlighting, partly panelled walls, tiled flooring and patio doors to rear garden.
First Floor
Landing
Access to roof space and built in storage.
Bedroom 1 12'06 X 9'11 (3.81m X 3.02m)
Double room.
Bedroom 2 8'10 X 13'07 (2.69m X 4.14m)
Double room with built in robes.
Bedroom 3 9'04 X 10'05 (2.84m X 3.18m)
Double room.
Bathroom
Modern white suite comprising free standing bath with mixer tap and hand held shower attachment, low flush wc, walk-in shower with overhead rainfall shower and glass shower screen, vanity unit with storage and double sink both with mixer tap and tiled splashback, tiled floor, recessed spotlights and extractor fan.
Double Garage 17'11 X 17'11 (5.46m X 5.46m)
Roller shutter door with power and light.
Outside
Front; Brick paver driveway for multiple vehicles and area in lawn.
Rear; Brick paver patio area, enclosed, space for sheds, outside tap and light.
Rear; Brick paver patio area, enclosed, space for sheds, outside tap and light.
As part of our legal obligations under The Money Laundering, Terrorist Financing and Transfer of Funds (Information on the Payer) Regulations 2017, we are required to verify the identity of both the vendor and purchaser in every property transaction.
To meet these requirements, all estate agents must carry out Customer Due Diligence checks on every party involved in the sale or purchase of a property in the UK.
We outsource these checks to a trusted third-party provider. A charge of £20 + VAT per person will apply to cover this service.
You can find more information about the legislation at www.legislation.gov.uk
To meet these requirements, all estate agents must carry out Customer Due Diligence checks on every party involved in the sale or purchase of a property in the UK.
We outsource these checks to a trusted third-party provider. A charge of £20 + VAT per person will apply to cover this service.
You can find more information about the legislation at www.legislation.gov.uk
Broadband Speed Availability
Potential Speeds for 16 Whitethorn Brae
Max Download
1800
Mbps
Max Upload
220
MbpsThe speeds indicated represent the maximum estimated fixed-line speeds as predicted by Ofcom. Please note that these are estimates, and actual service availability and speeds may differ.
Property Location
Mortgage Calculator
Contact Agent
Contact Ulster Property Sales (UPS) Newtownards
Request More Information
Requesting Info about...
16 Whitethorn Brae, Newtownards, BT23 8EX
By registering your interest, you acknowledge our Privacy Policy
By registering your interest, you acknowledge our Privacy Policy