Contact Agent
Contact Ulster Property Sales (UPS) Newtownards
Commercial
1-3 Court Square
Newtownards, BT23 7NZ
per annum
£18,000
- Status For Rent
- Property Type Commercial
Key Features & Description
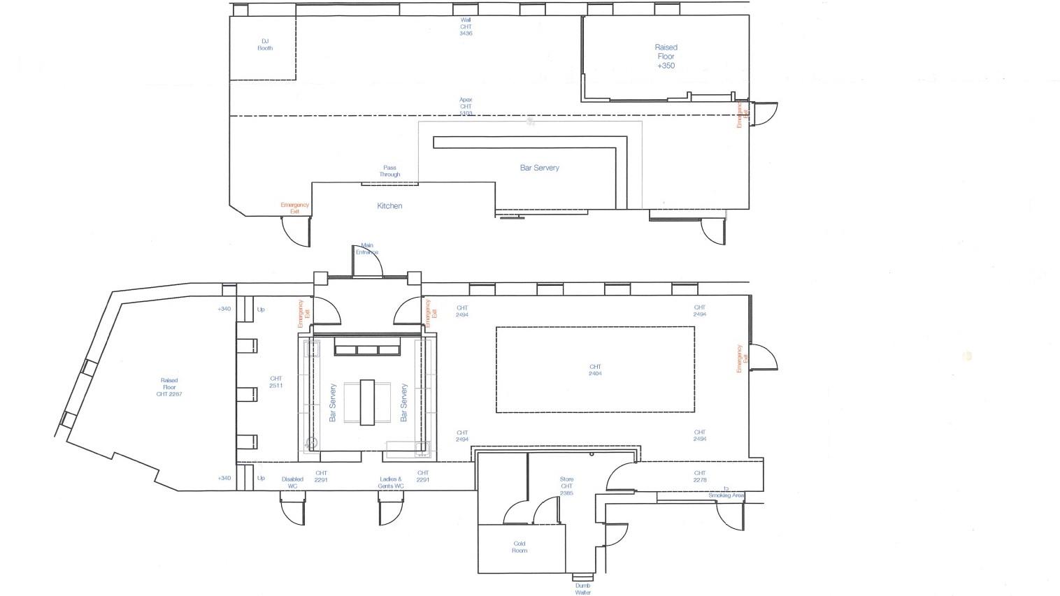
Two Storey Building With First Floor Benefitting From Separate Entrance
Currently Trading, In A Popular Town Centre Location
Range Of Fixtures And Fittings Included In Sale
Bar, Seating Areas And WC's On Both Floors
Great Location Within Newtownards Town Centre
Licensed Premises On A Prominent Corner Position Just Off High Street
Option to Purchase
Rental Incentives Available
Tenant To Pay Rates
Description
This modern property is located in the centre of Newtownards, just off High Street at the junction of Court Square and Castle Street.
It is a two storey property on a prominent corner position, in an area of the town currently undergoing regeneration and there are lovely views of the Memorial Garden which is to the front of the premises.
Internally, it is bright and modern with the opportunity for circa 100 covers on each level. There is a fully fitted kitchen on the ground floor and multiple storage rooms.
The first floor benefits from its own entrance and therefore could also be used as a nightclub.
The property is fully fitted with bars on both levels, wc's and seating areas.
Newtownards is a busy market town and is currently enjoying an influx of new homes to the area, increasing footfall around the town during the day and in the evening.
With a number of new businesses and restaurants opening, 1-3 Court square presents someone with a great opportunity for an exciting business venture and early viewing is highly recommended.
** Option to purchase available.
*** Rental Incentives Available.
**** Tenant to pay the rates.
Commercial EPC rating is 43
This modern property is located in the centre of Newtownards, just off High Street at the junction of Court Square and Castle Street.
It is a two storey property on a prominent corner position, in an area of the town currently undergoing regeneration and there are lovely views of the Memorial Garden which is to the front of the premises.
Internally, it is bright and modern with the opportunity for circa 100 covers on each level. There is a fully fitted kitchen on the ground floor and multiple storage rooms.
The first floor benefits from its own entrance and therefore could also be used as a nightclub.
The property is fully fitted with bars on both levels, wc's and seating areas.
Newtownards is a busy market town and is currently enjoying an influx of new homes to the area, increasing footfall around the town during the day and in the evening.
With a number of new businesses and restaurants opening, 1-3 Court square presents someone with a great opportunity for an exciting business venture and early viewing is highly recommended.
** Option to purchase available.
*** Rental Incentives Available.
**** Tenant to pay the rates.
Commercial EPC rating is 43
Property Location
Contact Agent
Contact Ulster Property Sales (UPS) Newtownards
Request More Information
Requesting Info about...
1-3 Court Square, Newtownards, BT23 7NZ
By registering your interest, you acknowledge our Privacy Policy
By registering your interest, you acknowledge our Privacy Policy