Contact Agent
Contact Ulster Property Sales (UPS) Newtownards
3 Bed Detached House
11 Blackwood Crescent
Newtownards, BT23 4XX
offers around
£265,000
Key Features & Description
Well Presented Three Bed Detached Home In The Popular Blackwood Area Of Newtownards
Modern Kitchen With Space For Dining And A Great Range Of Units
Separate Utility Room With Walk In Pantry
Ground Floor WC And First Floor Family Bathroom
Three Well Proportioned Bedrooms, Master With Ensuite Shower Room
Landscaped Rear Garden And Off Street Parking
Gas Fired Central Heating And uPVC Double Glazed Windows
Decorated to A High Standard Throughout
Description
Located in the popular Blackwood area of Newtownards, this beautifully presented detached house has been decorated to a high standard throughout and offers good accommodation in a fantastic location.
Only minutes from Newtownards town centre, the main arterial routes to Belfast and local schools, the property will appeal to wide range of viewers, especially downsizers or young families.
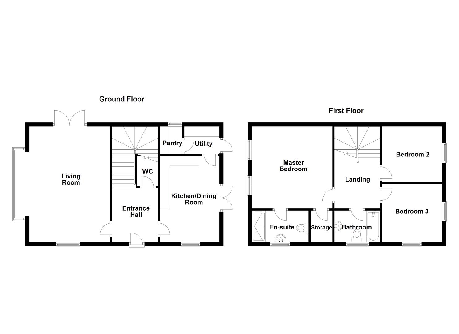
The ground floor comprises a modern kitchen with space for dining, utility room with walk in pantry, guest wc and a large living room with bay window and patio doors.
The first floor benefits from three well proportioned bedrooms, master with ensuite shower room, family bathroom with white suite and access to fully floored and shelved roofspace.
Externally, the rear garden is landscaped with mature plants and shrubs, enjoys an area in lawn, BBQ hut and also has a tarmac driveway for off street parking. We recommend viewing this fantastic property at your earliest convenience.
Located in the popular Blackwood area of Newtownards, this beautifully presented detached house has been decorated to a high standard throughout and offers good accommodation in a fantastic location.
Only minutes from Newtownards town centre, the main arterial routes to Belfast and local schools, the property will appeal to wide range of viewers, especially downsizers or young families.
The ground floor comprises a modern kitchen with space for dining, utility room with walk in pantry, guest wc and a large living room with bay window and patio doors.
The first floor benefits from three well proportioned bedrooms, master with ensuite shower room, family bathroom with white suite and access to fully floored and shelved roofspace.
Externally, the rear garden is landscaped with mature plants and shrubs, enjoys an area in lawn, BBQ hut and also has a tarmac driveway for off street parking. We recommend viewing this fantastic property at your earliest convenience.
Rooms
Accommodation Comprises:
Entrance Hall
Tiled floor.
Guest WC
White suite comprising low flush wc, wash hand basin with mixer taps and tiled splashback and tiled floor.
Lounge 19'0" X 14'8" (5.80m X 4.48m)
Feature bay window, patio doors, wood laminate flooring.
Kitchen 13'4" X 9'5" (4.07m X 2.89m)
Range of high and low level units with laminate work surfaces, single drainer stainless steel sink unit with mixer tap, integrated appliances to include; four ring gas hob, stainless steel extractor hood. under oven, fridge freezer and dishwasher, partly tiled walls, tiled floor, recessed spotlighting, space for dining table and double doors to driveway.
Utility 8'6" X 5'6" (2.60m X 1.70m)
Range of high and low level units with gas fired Worcester boiler, space for washing machine, space for tumble dryer, single drainer stainless steel sink unit with mixer tap, partly tiled walls, tiled floor and door to side entrance.
Pantry 5'6" X 5'2" (1.70m X 1.60m)
First Floor
Landing
Access to fully floored and shelved roofspace.
Bedroom 1 15'2" X 11'5" (4.63m X 3.49m)
Built in storage.
Ensuite
White suite comprising tiled shower enclosure with sliding shower door, wash hand basin with mixer taps, low flush wc and tiled floor.
Bedroom 2 10'3" X 9'8" (3.14m X 2.97m)
Used as a study.
Bedroom 3 8'9" X 9'7" (2.68m X 2.93m)
Bathroom
White suite comprising panelled bath with mixer tap, overhead shower and glazed shower screen, tiled surround, low flush wc, wall mount wash hand basin with mixer tap and tiled floor.
Outside
Fully enclosed rear garden in lawn with patio area, mature bedding areas, outside socket and Kota BBQ house. Tarmac driveway with spaces for up to three vehicles.
As part of our legal obligations under The Money Laundering, Terrorist Financing and Transfer of Funds (Information on the Payer) Regulations 2017, we are required to verify the identity of both the vendor and purchaser in every property transaction.
To meet these requirements, all estate agents must carry out Customer Due Diligence checks on every party involved in the sale or purchase of a property in the UK.
We outsource these checks to a trusted third-party provider. A charge of £20 + VAT per person will apply to cover this service.
You can find more information about the legislation at www.legislation.gov.uk
To meet these requirements, all estate agents must carry out Customer Due Diligence checks on every party involved in the sale or purchase of a property in the UK.
We outsource these checks to a trusted third-party provider. A charge of £20 + VAT per person will apply to cover this service.
You can find more information about the legislation at www.legislation.gov.uk
Broadband Speed Availability
Potential Speeds for 11 Blackwood Crescent
Max Download
1800
Mbps
Max Upload
220
MbpsThe speeds indicated represent the maximum estimated fixed-line speeds as predicted by Ofcom. Please note that these are estimates, and actual service availability and speeds may differ.
Property Location
Mortgage Calculator
Contact Agent
Contact Ulster Property Sales (UPS) Newtownards
Request More Information
Requesting Info about...
11 Blackwood Crescent, Newtownards, BT23 4XX
By registering your interest, you acknowledge our Privacy Policy
By registering your interest, you acknowledge our Privacy Policy