Site
431-441 Newtownards Road
Belfast, County Antrim, BT4 1PG
price
£350,000
- Status For Sale
- Property Type Site
-
Stamp Duty
Higher amount applies when purchasing as buy to let or as an additional property£7,500 / £25,000*
Key Features & Description
Description
LOCATION
The property occupies a prominent position at the junction of the Newtownards Road, Holywood Road and Upper Newtownards Road in East Belfast in close proximity to the City Centre.
Former Ulster Bank Building, 431-441 Newtownards Road, Belfast An exceptional development opportunity with full planning permission for a contemporary 7-apartment residential scheme in one of Belfast´s most desirable and rapidly evolving urban locations. This prominent building occupies a highly visible site on Newtownards Road, positioned within an exciting and vibrant neighbourhood that has seen significant recent investment in new bars, cafés, restaurants, and lifestyle amenities. The area´s growing popularity among professionals, investors and owner-occupiers alike makes this a strategically attractive proposition for both developers and forward-thinking buyers. Key Highlights Full Planning Permission Granted for 7 High-Quality Apartments - a mix of well-proportioned 1 & 2-bed units designed for modern urban living. Excellent Location - within a highly sought-after and up-and-coming part of Belfast with strong rental and sales demand. Strong Lifestyle Appeal - close to an expanding array of independent bars, eateries and entertainment venues, enhancing the desirability for city living. Transport & Connectivity - superb access to public transport links and main arterial routes, offering easy connections to the city centre and beyond. Investment Potential - excellent prospects for rental income or sales exit. Development Opportunity This property represents a rare chance to deliver quality residential accommodation in a neighbourhood where demand continues to outstrip supply. The approved scheme delivers a contemporary living offer, aligned with current market expectations and buyer preferences. Whether pursued as a build-to-sell or build-to-let project, the planning permission in place significantly de-risks the development process and provides a clear route to delivery.
DESCRIPTION
The subject property is a converted three storey bank building which was refurbished c.1998 with a more recent two storey addition adjacent to the original building.
Externally the property is finished with granite block walls, part pitched tile/bitumen felt roof and uPVC double glazed windows.
Internally the premises is finished to include plastered/painted walls and carpet floor covering, with suspended ceilings throughout the majority of the property with recessed fluorescent strip lighting. The accommodation is arranged in a cellular fashion with the original banking hall on the ground floor providing a large open plan reception/office.
PROPOSED DEVELOPMENT
Apartment 1 - 1Bed 409 Sqft
Apartment 2 - 1Bed 528 Sqft
Apartment 3 - 2Bed 549 Sqft
Apartment 4 - 1Bed 409 Sqft
Apartment 5 - 1Bed 377 Sqft
Apartment 6 - 1Bed 388 Sqft
Apartment 7 - 2Bed 980 Sqft
CURRENT ACCOMMODATION
The property provides the following approximate areas: Ground floor: 2162 sq ft (20 I sq m)
First floor: I I 06 sq ft ( I 03 sq m)
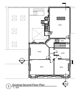
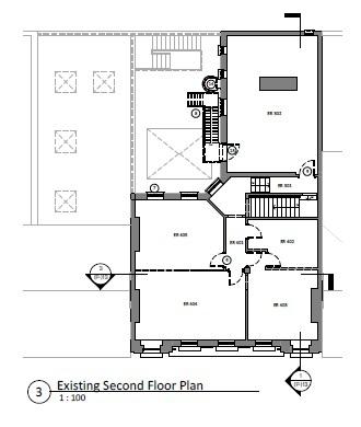
Second floor: 818 sq ft (76 sq m)
Total: 4086 sq ft (380 sq m)
Please note that the property has a site area of approximately 3,285 sq ft (305 sq m).
LOCATION
The property occupies a prominent position at the junction of the Newtownards Road, Holywood Road and Upper Newtownards Road in East Belfast in close proximity to the City Centre.
Former Ulster Bank Building, 431-441 Newtownards Road, Belfast An exceptional development opportunity with full planning permission for a contemporary 7-apartment residential scheme in one of Belfast´s most desirable and rapidly evolving urban locations. This prominent building occupies a highly visible site on Newtownards Road, positioned within an exciting and vibrant neighbourhood that has seen significant recent investment in new bars, cafés, restaurants, and lifestyle amenities. The area´s growing popularity among professionals, investors and owner-occupiers alike makes this a strategically attractive proposition for both developers and forward-thinking buyers. Key Highlights Full Planning Permission Granted for 7 High-Quality Apartments - a mix of well-proportioned 1 & 2-bed units designed for modern urban living. Excellent Location - within a highly sought-after and up-and-coming part of Belfast with strong rental and sales demand. Strong Lifestyle Appeal - close to an expanding array of independent bars, eateries and entertainment venues, enhancing the desirability for city living. Transport & Connectivity - superb access to public transport links and main arterial routes, offering easy connections to the city centre and beyond. Investment Potential - excellent prospects for rental income or sales exit. Development Opportunity This property represents a rare chance to deliver quality residential accommodation in a neighbourhood where demand continues to outstrip supply. The approved scheme delivers a contemporary living offer, aligned with current market expectations and buyer preferences. Whether pursued as a build-to-sell or build-to-let project, the planning permission in place significantly de-risks the development process and provides a clear route to delivery.
DESCRIPTION
The subject property is a converted three storey bank building which was refurbished c.1998 with a more recent two storey addition adjacent to the original building.
Externally the property is finished with granite block walls, part pitched tile/bitumen felt roof and uPVC double glazed windows.
Internally the premises is finished to include plastered/painted walls and carpet floor covering, with suspended ceilings throughout the majority of the property with recessed fluorescent strip lighting. The accommodation is arranged in a cellular fashion with the original banking hall on the ground floor providing a large open plan reception/office.
PROPOSED DEVELOPMENT
Apartment 1 - 1Bed 409 Sqft
Apartment 2 - 1Bed 528 Sqft
Apartment 3 - 2Bed 549 Sqft
Apartment 4 - 1Bed 409 Sqft
Apartment 5 - 1Bed 377 Sqft
Apartment 6 - 1Bed 388 Sqft
Apartment 7 - 2Bed 980 Sqft
CURRENT ACCOMMODATION
The property provides the following approximate areas: Ground floor: 2162 sq ft (20 I sq m)
First floor: I I 06 sq ft ( I 03 sq m)
Second floor: 818 sq ft (76 sq m)
Total: 4086 sq ft (380 sq m)
Please note that the property has a site area of approximately 3,285 sq ft (305 sq m).
Property Location
Mortgage Calculator
Contact Agent
Contact Simon Brien (East Belfast)
Request More Information
Requesting Info about...
431-441 Newtownards Road, Belfast, County Antrim, BT4 1PG
By registering your interest, you acknowledge our Privacy Policy
By registering your interest, you acknowledge our Privacy Policy