Site
173 Newtownards Road & 1-5 Templemore Avenue
Newtownards Road, Belfast, BT4 1QJ
guide price
£425,000
- Status For Sale
- Property Type Site
- Heating None
-
Stamp Duty
Higher amount applies when purchasing as buy to let or as an additional property£11,250 / £32,500*
Key Features & Description
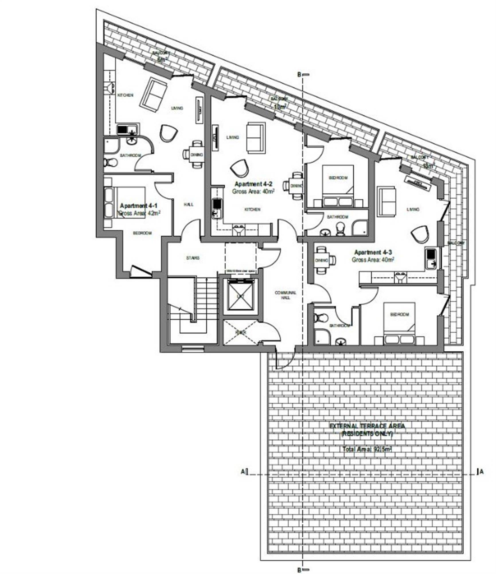
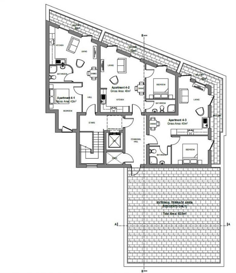
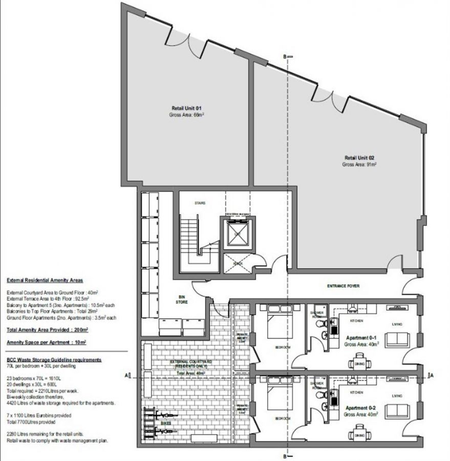
FPP for 20 apartments & 2 ground floor commercial units
Planning Reference - LA04/2020/1363/F
Local access to Belfast City Centre
Investment opportunity as BTR or private for sale
Description
LOCATION
Located on the corner of the Newtownards Road & Templemore Avenue. Only one mile from the city centre.
PLANNING
The corner plot boasts planning permission for 20 apartments (17x1 bedrooms & 3x2 bedrooms) and 2 ground floor commercial units. Planning reference - LA04/2020/1363/F.
As per the planning documentation; there are no sewage and water related conditions. In the NI Water consultation, the response states 'there are foul and storm within 20m of the site.'
It has been noted further and confirmed by NI Water that 'NI Water have a duty to connect foul and storm to the site into the extising NI Water Infastructure'
It has been further acknowledged that there will be a requirement to restrict storm run-off from the site to the equivalent of greenfield run-off in accordance with current standards.
For all queries contact Adam Steenson on 079 6730 2542 or adam.steenson@colliers.com.
A schedule of proposed pricing is available upon request.
LOCATION
Located on the corner of the Newtownards Road & Templemore Avenue. Only one mile from the city centre.
PLANNING
The corner plot boasts planning permission for 20 apartments (17x1 bedrooms & 3x2 bedrooms) and 2 ground floor commercial units. Planning reference - LA04/2020/1363/F.
As per the planning documentation; there are no sewage and water related conditions. In the NI Water consultation, the response states 'there are foul and storm within 20m of the site.'
It has been noted further and confirmed by NI Water that 'NI Water have a duty to connect foul and storm to the site into the extising NI Water Infastructure'
It has been further acknowledged that there will be a requirement to restrict storm run-off from the site to the equivalent of greenfield run-off in accordance with current standards.
For all queries contact Adam Steenson on 079 6730 2542 or adam.steenson@colliers.com.
A schedule of proposed pricing is available upon request.
Property Location
Mortgage Calculator
Directions
Corner of Templemore Avenue & Newtownards Road.
Contact Agent
Contact Colliers New Homes
Request More Information
Requesting Info about...
173 Newtownards Road & 1-5 Templemore Avenue, Newtownards Road, Belfast, BT4 1QJ
By registering your interest, you acknowledge our Privacy Policy
By registering your interest, you acknowledge our Privacy Policy