Contact Agent

Contact Colin Graham Residential

Contact Colin Graham Residential

4 Bed End Terrace

61 Armoy Gardens

Newtownabbey, BT37 9AU

offers over £134,950
  • Status For Sale
  • Property Type End Terrace
  • Bedrooms 4
  • Receptions 1
  • Bathrooms 1
  • Heating Oil
  • EPC Rating E43 / D66 -
  • Stamp Duty
    Higher amount applies when purchasing as buy to let or as an additional property
    £199 / £6,947*
  • Typical Mortgage
    Click price to use our mortgage calculator
EPC Rating

Key Features & Description

End Terrace Property
Adaptable Accommodation
4 Bed; 1 Rec / 3 Bed; 2 Rec
Fitted Kitchen
Bathroom With Three Piece Suite
Oil Fired Central Heating
PVC Double Glazing
Gardens Front and Rear
Convenient Location
Ideal First Time Buy / Buy To Let Investment
Description
Spacious, end terrace property, situated within the popular Armoy Gardens area of Rathcoole, Newtownabbey.

Offering adaptable accommodation, the property comprises entrance hall, lounge with stone clad fireplace, separate dining room/bedroom four, kitchen, three well-proportioned, first floor bedrooms, and bathroom with three piece suite.

Externally, the property enjoys gardens front and rear, finished in lawn, paved patio area, and range of plants, trees and shrubbery.

Other attributes include oil fired central heating, PVC double glazing and convenient location.

Ideal first time buy / buy to let investment alike.

Early viewing strongly recommended to avoid disappointment.

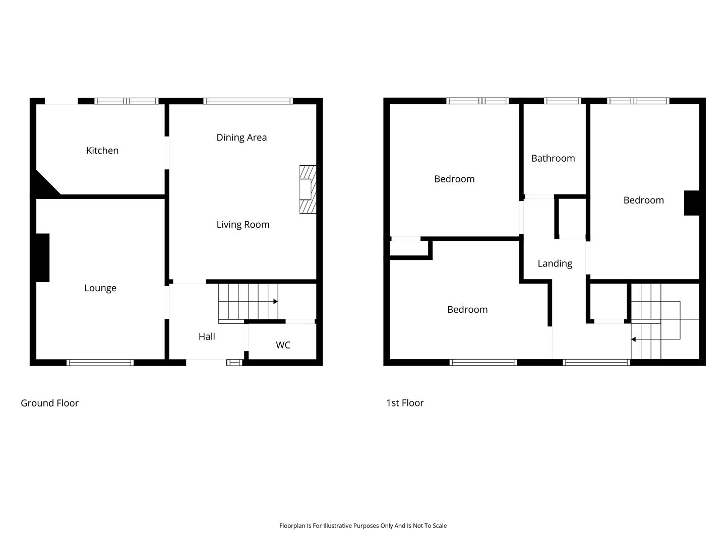
Rooms

ACCOMMODATION
ENTRANCE HALL Hardwood glass panelled front door with matching side screen. Wood laminate floor covering. Stairwell to first floor.
FURNISHED CLOAKROOM White two piece suite comprising wash hand basin and WC. Splash back tiling to sink. Tiled floor.
LOUNGE 14'3" X 12'0" (4.36m X 3.68m) Open fire in stone clad fireplace with tiled hearth.
RECEPTION / BEDROOM 4 12'9" X 10'5" (3.89m X 3.20m)
KITCHEN 10'5" X 7'6" (3.19m X 2.31m) Fitted kitchen with range of high and low level storage units with contrasting marble effect melamine work surface. Stainless steel sink unit with draining bay. Integrated ceramic hob with extractor hood over. Integrated oven. Space for fridge freezer. Plumbed and space for washing machine. Glass fronted display cabinets. Half tiling to walls. PVC double glazed door leading to rear garden.
FIRST FLOOR
LANDING Access to shelved store, hot press and roof space.
BEDROOM 1 14'3" X 8'10" (4.36m X 2.70m) Built in wardrobe.
BEDROOM 2 12'10" X 9'7" (wps) (3.93m X 2.93m (wps))
BEDROOM 3 10'9" X 10'8" (3.30m X 3.27m) Built in wardrobe.
BATHROOM Three piece suite comprising bath, wash hand basin and WC. Electric shower with drench shower head and glass shower screen over bath. Fully tiled walls. LVT flooring.
EXTERNAL Front garden finished in lawn, plants, trees and shrubbery.
External lighting.
Fully enclosed rear garden finished in lawn, paved patio area and range of shrubs.
Store.
Oil fired central heating boiler.
PVC oil storage tank.
Outside tap.
IMPORTANT NOTE TO ALL POTENTIAL PURCHASERS Every care has been taken with the preparation of these particulars, but complete accuracy cannot be guaranteed. If there is any point, which is of particular importance to you, please obtain professional confirmation. Alternatively, we will be pleased to check the information for you. All measurements quoted are approximate. The Fixtures, Fittings & Appliances have not been tested and therefore no guarantee can be given that they are in working order. Photographs are reproduced for general information and it cannot be inferred that any item shown is included in the sale.

Broadband Speed Availability

Ultrafast

Potential Speeds for 61 Armoy Gardens

Max Download
1800
Mbps
Max Upload
220
Mbps
The speeds indicated represent the maximum estimated fixed-line speeds as predicted by Ofcom. Please note that these are estimates, and actual service availability and speeds may differ.

Property Location

Show Map

Mortgage Calculator

Disclaimer: The following calculations act as a guide only, and are based on a typical repayment mortgage model. Financial decisions should not be made based on these calculations and accuracy is not guaranteed. Always seek professional advice before making any financial decisions.

Contact Agent

Contact Colin Graham Residential

Contact Colin Graham Residential

Request More Information
Requesting Info about...
61 Armoy Gardens, Newtownabbey, BT37 9AU 61 Armoy Gardens, Newtownabbey, BT37 9AU

By registering your interest, you acknowledge our Privacy Policy
Ask Holmes
Ask Holmes
Let's find your next home

Are you sure you want to reset the chat?

Checking API...