Contact Agent
Contact Colin Graham Residential
4 Bed Detached House
6 Glebe Road West
Newtownabbey, BT36 6EH
offers over
£249,950
Key Features & Description
Extended Family Detached Home
Adaptable Accommodation
4 Bed; 2 Rec / 3 Bed; 3 Rec.
Modern Fitted Kitchen
Deluxe Bathroom
Separate Ground Floor Shower Room
Gas Heating; PVC Double Glazing
Private Driveway
Front & Side Gardens
Convenient, Popular Location
Description
Well presented, extended, detached family home, conveniently situated within the popular Glebe/Carnmoney Road area of Glengormley, Newtownabbey.
The property offers adaptable accommodation, and comprises entrance porch, entrance hall, ground floor shower room, lounge, family room / bedroom four, snug, kitchen with informal dining area, three first floor bedrooms, and deluxe family bathroom, with contemporary, white, four piece suite.
Externally, the property enjoys private driveway, front and side gardens, and service area to rear.
Other attributes include gas heating and PVC double glazing.
Early viewing highly recommended.
Well presented, extended, detached family home, conveniently situated within the popular Glebe/Carnmoney Road area of Glengormley, Newtownabbey.
The property offers adaptable accommodation, and comprises entrance porch, entrance hall, ground floor shower room, lounge, family room / bedroom four, snug, kitchen with informal dining area, three first floor bedrooms, and deluxe family bathroom, with contemporary, white, four piece suite.
Externally, the property enjoys private driveway, front and side gardens, and service area to rear.
Other attributes include gas heating and PVC double glazing.
Early viewing highly recommended.
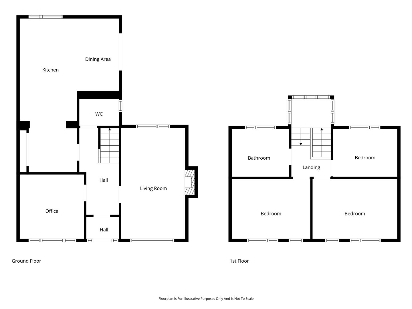
Rooms
ACCOMMODATION
ENTRANCE PORCH
Composite, double glazed front door with PVC double glazed side screens. Wood laminate floor covering. Glass panelled door leading to:
ENTRANCE HALL
Wood laminate floor covering. Stairwell to first floor.
SHOWER ROOM
Wet room style shower area, wash hand basin and WC. Thermostat controlled mains shower. Fully panelled walls. Tiled floor.
LOUNGE 17'7" X 10'3" (5.37m X 3.14m)
Dual aspect windows. Cast iron, multi fuel burning stove on granite hearth. Wood laminate floor covering.
RECEPTION / BEDROOM 10'4" X 10'3" (3.17m X 3.13m)
SNUG 7'10" X 6'11" (2.39m X 2.11m)
Tiled floor. Access to utility store with gas fired central heating boiler and plumbed for automatic washing machine. Open arch leading to:
KITCHEN THROUGH DINING ROOM 16'5" X 16'1" (wps) (5.02m X 4.91m (wps))
Modern fitted kitchen with range of high and low level storage units with contrasting granite effect melamine work surface. Colour coded sink unit with draining bay. Space for range style oven with extractor hood over. Space for American style fridge freezer. Space for tumble dryer. Splashback tiling to walls. Tiled floor. PVC double glazed French doors leading to rear garden and driveway.
FIRST FLOOR
LANDING
Access to partially floored roof space via slingsby style ladder.
BEDROOM 1 13'7" X 10'0" (4.15m X 3.05m)
Wood laminate floor covering.
BEDROOM 2 12'7" X 9'11" (3.85m X 3.04m)
BEDROOM 3 10'5" X 7'2" (3.18m X 2.20m)
DELUXE FAMILY BATHROOM
Contemporary, white, four piece suite comprising free standing bath, separate shower enclosure, vanity unit and WC. Thermostat controlled mains shower unit with drench shower head. Tile effect panelling to walls. Towel radiator. Tile effect flooring.
EXTERNAL
Front garden finished in lawn and range of plants, trees and shrubbery.
Tiled entrance porch.
External lighting.
PVC soffits, fascia and rainwater goods.
External power points.
Side garden finished in paved patio and tree bark play area.
Rear garden finished in paved patio area.
Double gates leading to private driveway finished in concrete with service area to rear.
Electric car charging point.
Tiled entrance porch.
External lighting.
PVC soffits, fascia and rainwater goods.
External power points.
Side garden finished in paved patio and tree bark play area.
Rear garden finished in paved patio area.
Double gates leading to private driveway finished in concrete with service area to rear.
Electric car charging point.
IMPORTANT NOTE TO ALL POTENTIAL PURCHASERS
Every care has been taken with the preparation of these particulars, but complete accuracy cannot be guaranteed. If there is any point, which is of particular importance to you, please obtain professional confirmation. Alternatively, we will be pleased to check the information for you. All measurements quoted are approximate. The Fixtures, Fittings & Appliances have not been tested and therefore no guarantee can be given that they are in working order. Photographs are reproduced for general information and it cannot be inferred that any item shown is included in the sale.
Broadband Speed Availability
Potential Speeds for 6 Glebe Road West
Max Download
1800
Mbps
Max Upload
220
MbpsThe speeds indicated represent the maximum estimated fixed-line speeds as predicted by Ofcom. Please note that these are estimates, and actual service availability and speeds may differ.
Property Location
Mortgage Calculator
Contact Agent
Contact Colin Graham Residential
Request More Information
Requesting Info about...
6 Glebe Road West, Newtownabbey, BT36 6EH
By registering your interest, you acknowledge our Privacy Policy
By registering your interest, you acknowledge our Privacy Policy