Contact Agent
Contact Colin Graham Residential
5 Bed Semi-Detached House
23 Kings Walk
Newtownabbey, BT37 0AS
offers over
£184,950
Key Features & Description
Extended Semi Detached Home
Five Bedroom
Two+ Reception
Kitchen With Informal Dining Area
Utility Room
Principal En Suite
Family Shower Room
Gas Heating; PVC Double Glazing
Private Driveway
Low Maintenance Garden
Description
Extended, well presented, five bedroom semi detached home, conveniently situated within Kings Walk, Fernagh, Newtownabbey.
The property comprises entrance hall, lounge, kitchen with informal dining area, conservatory with cosy style roof, utility room, ground floor en suite bedroom, four further well-proportioned first floor bedrooms, and deluxe shower room, with white three piece suite.
Externally, the property enjoys private driveway finished in tarmac, and low maintenance, fully enclosed rear garden.
Other attributes include gas heating, PVC double glazing, and walking distance to local schools and railway station.
Early viewing highly recommended to avoid disappointment.
Extended, well presented, five bedroom semi detached home, conveniently situated within Kings Walk, Fernagh, Newtownabbey.
The property comprises entrance hall, lounge, kitchen with informal dining area, conservatory with cosy style roof, utility room, ground floor en suite bedroom, four further well-proportioned first floor bedrooms, and deluxe shower room, with white three piece suite.
Externally, the property enjoys private driveway finished in tarmac, and low maintenance, fully enclosed rear garden.
Other attributes include gas heating, PVC double glazing, and walking distance to local schools and railway station.
Early viewing highly recommended to avoid disappointment.
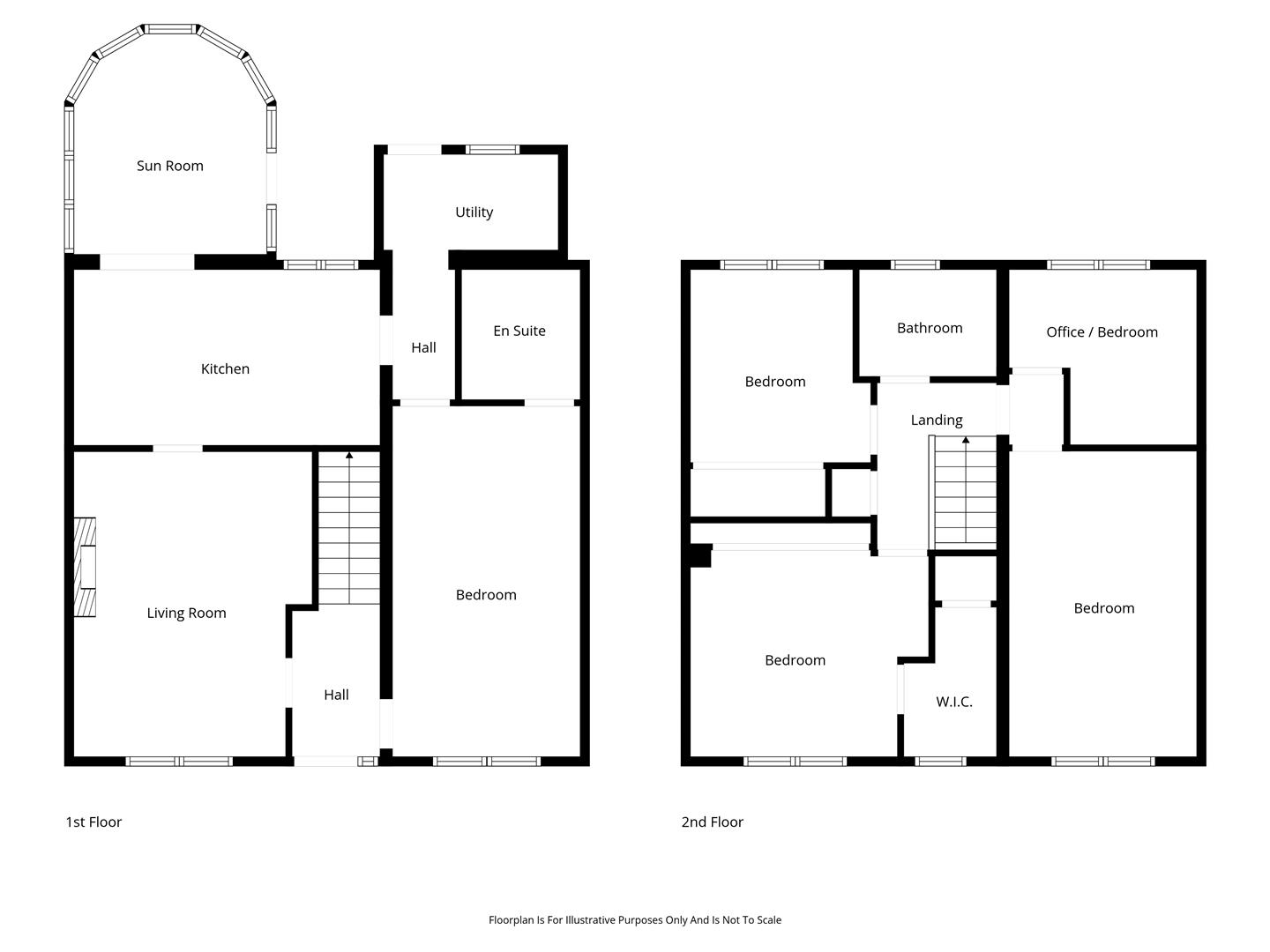
Rooms
ACCOMMODATION
ENTRANCE HALL
PVC double glazed front door with matching side screen. Tiled floor. Stairwell to first floor.
LOUNGE 16'3" X 13'1" (wps) (4.96m X 4.00m (wps))
Open fire in slate tiled fireplace with matching hearth and timber surround. Picture window to front elevation. Timber flooring.
KITCHEN WITH INFORMAL DINING AREA 16'3" X 9'7" (4.97m X 2.93m)
Modern fitted kitchen with range of high and low level storage units with contrasting quartz effect melamine work surface. Stainless steel 1.5 bowl sink unit with draining bay. Integrated gas hob with glass splashback and stainless steel extractor hood over. Integrated double oven. Space for American style fridge freezer. Splashback tiling to walls. Open arch leading to:
CONSERVATORY WITH COSY STYLE ROOF 11'7" X 10'6" (3.54m X 3.21m)
In PVC double glazed frame, with matching French doors leading to rear garden. Tiled floor.
REAR HALL
Open arch leading to:
UTILITY ROOM 9'4" X 4'9" (2.86m X 1.47m)
Range of fitted high and low level storage units with contrasting granite effect melamine work surface. Stainless steel sink unit with draining bay. Plumbed and space for washing machine. Glass fronted display cabinet. PVC double glazed French door leading to rear garden.
PRINCIPAL BEDROOM 18'8" X 9'11" (5.71m X 3.04m)
DELUXE EN SUITE SHOWER ROOM
Contemporary, white three piece suite comprising fully panelled shower enclosure, pedestal wash hand basin and WC. Thermostat controlled main shower unit. Chrome towel radiator. Tile effect panelling to walls. Tile effect flooring.
FIRST FLOOR
LANDING
Wood laminate floor covering. Access to store with gas fired central heating boiler. Access to partially floored roof space via slingsby style ladder.
BEDROOM 2 16'7" X 10'2" (5.06m X 3.12m)
Wood laminate floor covering.
BEDROOM 3 13'1" X 12'4" (wps) (4.01m X 3.78m (wps))
Wall to wall fitted wardrobes in mirror panelled sliding doors. Wood laminate floor covering. Walk in wardrobe/dressing room.
BEDROOM 4 10'2" X 10'0" (plus wardrobe space) (3.10m X 3.06m (plus wardrobe space))
Fitted wardrobes in mirror panelled sliding doors. Wood laminate floor covering.
BEDROOM 5 10'2" X 9'0" (wps) (3.11m X 2.75m (wps))
Wood laminate floor covering.
DELUXE SHOWER ROOM
Contemporary, white three piece suite comprising panelled shower enclosure, vanity unit and WC. Thermostat controlled main shower unit. Towel radiator. Tile effect panelling to walls. Tile effect flooring.
EXTERNAL
Double gates leading to generous sized private driveway area finished in tarmac.
Front garden finished in lawn and trees.
External lighting.
PVC soffits, fascia and rainwater goods.
Fully enclosed low maintenance paved rear garden.
Outside tap.
Front garden finished in lawn and trees.
External lighting.
PVC soffits, fascia and rainwater goods.
Fully enclosed low maintenance paved rear garden.
Outside tap.
IMPORTANT NOTE TO ALL POTENTIAL PURCHASERS
Every care has been taken with the preparation of these particulars, but complete accuracy cannot be guaranteed. If there is any point, which is of particular importance to you, please obtain professional confirmation. Alternatively, we will be pleased to check the information for you. All measurements quoted are approximate. The Fixtures, Fittings & Appliances have not been tested and therefore no guarantee can be given that they are in working order. Photographs are reproduced for general information and it cannot be inferred that any item shown is included in the sale.
Broadband Speed Availability
Potential Speeds for 23 Kings Walk
Max Download
1800
Mbps
Max Upload
220
MbpsThe speeds indicated represent the maximum estimated fixed-line speeds as predicted by Ofcom. Please note that these are estimates, and actual service availability and speeds may differ.
Property Location
Mortgage Calculator
Contact Agent
Contact Colin Graham Residential
Request More Information
Requesting Info about...
23 Kings Walk, Newtownabbey, BT37 0AS
By registering your interest, you acknowledge our Privacy Policy
By registering your interest, you acknowledge our Privacy Policy