Contact Agent
Contact Colin Graham Residential
3 Bed Semi-Detached House
38 Dermont Crescent
Newtownabbey, BT36 4NZ
offers over
£224,950
Key Features & Description
Spacious Semi Detached Home
Three Well Proportioned Bedrooms
Lounge; Wood Burning Stove
Kitchen Through Dining Room
Modern Fitted Kitchen
Family Bathroom; Furnished Cloakroom
Gas Heating; PVC Double Glazing
Private Driveway
Large, Fully Enclosed, Private Rear Garden
Convenient Location
Description
Well presented, spacious, three bedroom, semi detached home with large, private rear garden, situated within the popular Dermont area of Mallusk, Newtownabbey.
The property comprises entrance hall, furnished cloakroom, lounge with wood burning stove, kitchen through dining room with modern fitted kitchen, three well proportioned bedrooms, and family bathroom with white four piece suite.
Externally, the property enjoys private driveway finished in tarmac, and gardens front and rear, finished in lawn and paved patio area.
Other attributes include gas heating, PVC double glazing and convenient location.
Early viewing highly recommended to avoid disappointment.
Well presented, spacious, three bedroom, semi detached home with large, private rear garden, situated within the popular Dermont area of Mallusk, Newtownabbey.
The property comprises entrance hall, furnished cloakroom, lounge with wood burning stove, kitchen through dining room with modern fitted kitchen, three well proportioned bedrooms, and family bathroom with white four piece suite.
Externally, the property enjoys private driveway finished in tarmac, and gardens front and rear, finished in lawn and paved patio area.
Other attributes include gas heating, PVC double glazing and convenient location.
Early viewing highly recommended to avoid disappointment.
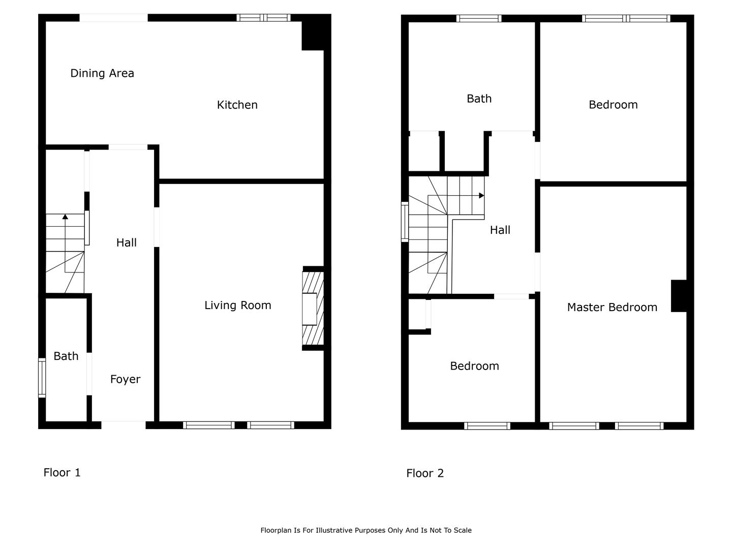
Rooms
ACCOMMODATION
ENTRANCE HALL
Hardwood, glass panelled front door. Wood laminate floor covering. Stairwell to first floor. Access to under stairs store.
FURNISHED CLOAKROOM
White, two piece suite comprising semi pedestal wash hand basin and WC. Splashback tiling to sink. Tiled floor.
LOUNGE 16'4" X 11'9" (5.00m X 3.59m)
Tiled inglenook recess with cast iron, wood burning stove on granite hearth with timber surround. Twin windows to front elevation. Wood laminate floor covering.
KITCHEN THROUGH DINING ROOM 19'8" X 11'1" (wps) (6.00m X 3.39m (wps))
Modern fitted kitchen with range of high and low level storage units with contrasting, quartz effect, melamine work surface. Stainless steel sink unit with draining bay. Integrated, ceramic hob with stainless steel extractor hood over. Integrated oven and dishwasher. Space for fridge freezer. Space and plumbed for washing machine. Gas fired central heating boiler (housed within matching unit). Splashback tiling to walls. Tiled floor. PVC double glazed, French doors leading to rear garden.
FIRST FLOOR
LANDING
Access to roof space.
BEDROOM 1 16'0" X 10'5" (4.90m X 3.19m)
Twin windows to front elevation.
BEDROOM 2 11'4" X 10'5" (3.46m X 3.18m)
Range of fitted storage units and shelving.
BEDROOM 3 8'10" X 8'8" (2.70m X 2.66m)
Fitted wardrobes, storage units and cabin bed.
FAMILY BATHROOM
White, four piece suite comprising panelled bath, separate, fully tiled shower enclosure, semi pedestal wash hand basin and WC. Thermostat controlled mains shower unit. Part tiling to walls. Tiled floor. Access to shelved hot press.
EXTERNAL
Generous sized, private driveway area, finished in tarmac.
Front garden, finished mainly in lawn.
Tiled entrance canopy.
External lighting.
PVC soffits, fascia and rainwater goods.
Generous sized, fully enclosed rear garden, finished in lawn and paved patio area.
Outside tap.
Front garden, finished mainly in lawn.
Tiled entrance canopy.
External lighting.
PVC soffits, fascia and rainwater goods.
Generous sized, fully enclosed rear garden, finished in lawn and paved patio area.
Outside tap.
IMPORTANT NOTE TO ALL POTENTIAL PURCHASERS
Please note that we have not tested the services or systems in this property. Purchasers should make/commission their own inspections if they feel it is necessary.
Broadband Speed Availability
Potential Speeds for 38 Dermont Crescent
Max Download
1800
Mbps
Max Upload
220
MbpsThe speeds indicated represent the maximum estimated fixed-line speeds as predicted by Ofcom. Please note that these are estimates, and actual service availability and speeds may differ.
Property Location
Mortgage Calculator
Contact Agent
Contact Colin Graham Residential
Request More Information
Requesting Info about...
38 Dermont Crescent, Newtownabbey, BT36 4NZ
By registering your interest, you acknowledge our Privacy Policy
By registering your interest, you acknowledge our Privacy Policy