Contact Agent
Contact Colin Graham Residential
3 Bed Detached House
25 Glebe Manor
Newtownabbey, BT36 6HF
offers over
£325,000
Key Features & Description
Immaculately Presented Family Detached
Adaptable Accommodation
4 Bed; 2+ Rec. / 3 Bed; 3+ Rec.
Sun Lounge
Kitchen With Informal Dining Area
Utility Room; Furnished Cloakroom
Principal Bedroom; Walk In Wardrobe & En Suite
Deluxe Family Bathroom
Oil Heating; PVC Double Glazing
Driveway; Integral Garage; Large, Prime Site
Description
Immaculately presented, spacious, family sized, detached home, occupying a prime site within the well sought after Glebe Manor development, Glebe Road, Newtownabbey.
The property offers adaptable accommodation, currently comprising entrance hall, furnished cloakroom, lounge, sun lounge, family room/bedroom 4, kitchen with informal dining area, utility room, three well-proportioned first floor bedrooms, to include principal bedroom with walk in wardrobe/dressing room and fully tiled en suite shower room, and separate, deluxe family bathroom, with contemporary, white, four piece suite.
Externally, the property enjoys private driveway, finished in brick pavior, integral garage, front garden, large side garden (which may be suited for extension/future development, subject to necessary checks and approval), and generous sized, fully enclosed, private rear garden, finished in lawn, brick pavior, timber decking, timber summer house, wood store, and range of plants, trees and shrubbery.
Other attributes include oil heating, PVC double glazing, and convenient location.
Early viewing highly recommended to avoid disappointment.
Immaculately presented, spacious, family sized, detached home, occupying a prime site within the well sought after Glebe Manor development, Glebe Road, Newtownabbey.
The property offers adaptable accommodation, currently comprising entrance hall, furnished cloakroom, lounge, sun lounge, family room/bedroom 4, kitchen with informal dining area, utility room, three well-proportioned first floor bedrooms, to include principal bedroom with walk in wardrobe/dressing room and fully tiled en suite shower room, and separate, deluxe family bathroom, with contemporary, white, four piece suite.
Externally, the property enjoys private driveway, finished in brick pavior, integral garage, front garden, large side garden (which may be suited for extension/future development, subject to necessary checks and approval), and generous sized, fully enclosed, private rear garden, finished in lawn, brick pavior, timber decking, timber summer house, wood store, and range of plants, trees and shrubbery.
Other attributes include oil heating, PVC double glazing, and convenient location.
Early viewing highly recommended to avoid disappointment.
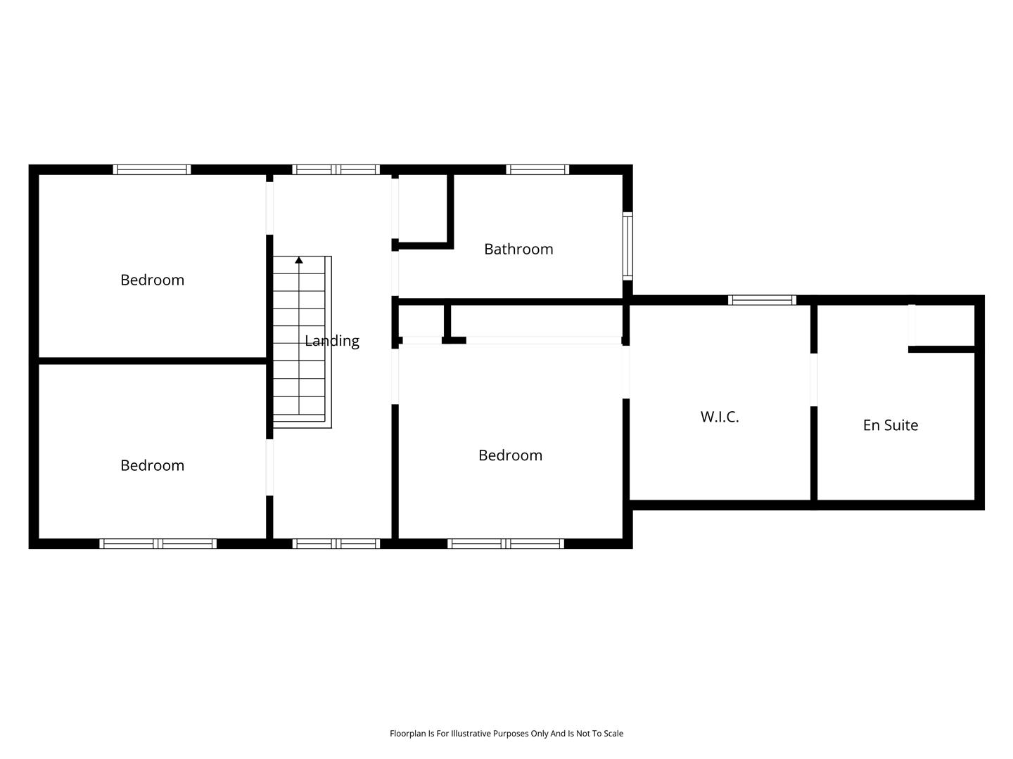
Rooms
ACCOMMODATION
ENTRANCE HALL
PVC double glazed front door with matching side screens. Wood laminate floor covering. Stairwell to first floor. Glass panelled doors leading to lounge, family room/bedroom 4, and kitchen.
FURNISHED CLOAKROOM
Contemporary, white two piece suite comprising vanity unit and WC. Fully tiled walls. Access to under stairs store. Wood laminate floor covering.
LOUNGE 18'10" X 11'5" (5.76m X 3.49m)
Inglenook recess with cast iron wood burning stove with granite and marble hearth and marble surround. Picture window to front elevation. Wood laminate floor covering. PVC double glazed French doors leading to:
SUN LOUNGE 11'4" X 9'8" (3.47m X 2.95m)
Dual aspect windows. PVC double glazed French doors leading to rear garden. Karndean flooring.
FAMILY ROOM/BEDROOM 4 11'5" X 11'5" (3.48m X 3.48m)
Picture window to front elevation. Wood laminate floor covering.
KITCHEN WITH INFORMAL DINING AREA 11'5" X 11'4" (3.49m X 3.47m)
Fitted kitchen with range of high and low level storage units with contrasting wood block effect melamine work surface. Colour coded sink unit with draining bay. Space for range style oven with stainless steel extractor hood over. Plumbed and space for dishwasher. Splashback tiling to walls. Karndean flooring. Glass panelled door leading to:
UTILITY ROOM 11'6" X 5'10" (3.52m X 1.79m)
Range of fitted storage units with contrasting wood grain effect melamine work surface. Stainless steel sink unit with draining bay. Space for American style fridge freezer. Integrated microwave oven. Plumbed and space for washing machine. Access to roof space. Karndean flooring. Access to integral garage. PVC double glazed French door leading to rear garden.
FIRST FLOOR
LANDING
Wood laminate floor covering. Access to shelved hot press. Access to partially floored roof space via slingsby style ladder.
PRINCIPAL BEDROOM 11'9" X 11'5" (3.60m X 3.48m)
Fitted wardrobes in mirror panelled sliding doors. Wood laminate floor covering. Access to:
WALK IN WARDROBE/DRESSING ROOM 10'9" X 8'7" (3.29m X 2.62m)
Wood laminate floor covering.
FULLY TILED EN SUITE SHOWER ROOM
White, three piece suite comprising shower enclosure, pedestal wash hand basin and WC. Electric shower. Fitted storage units. Access to under eaves storage.
BEDROOM 2 11'5" X 9'3" (3.48m X 2.84m)
Wood laminate floor covering.
BEDROOM 3 10'11" X 9'4" (3.34m X 2.86m)
Wood laminate floor covering.
DELUXE FAMILY BATHROOM
Contemporary, white, four piece suite comprising free standing bath, separate panelled shower enclosure, pedestal wash hand basin and WC. Thermostat control main shower unit. Towel radiator, Illuminated mirror over sink.
EXTERNAL
Generous sized private driveway finished in brick pavior.
Front and side gardens finished in lawn and decorative stone.
Tiled entrance porch.
External lighting.
PVC soffits, facia and rainwater goods.
Large fully enclosed rear garden finished in lawn, brick pavior, timber decking and range of plants, trees and shrubbery.
Timber garden room.
Wood store.
Outside tap.
External power points.
PVC oil storage tank.
Front and side gardens finished in lawn and decorative stone.
Tiled entrance porch.
External lighting.
PVC soffits, facia and rainwater goods.
Large fully enclosed rear garden finished in lawn, brick pavior, timber decking and range of plants, trees and shrubbery.
Timber garden room.
Wood store.
Outside tap.
External power points.
PVC oil storage tank.
LARGE INTEGRAL GARAGE 17'0" X 16'11" (plus recess to rear) (5.19m X 5.18m (plus recess to rear))
Power operated roller shutter door. Separate service doors to side and utility room. Power, light and oil fired central heating boiler.
IMPORTANT NOTE TO ALL POTENTIAL PURCHASERS
Every care has been taken with the preparation of these particulars, but complete accuracy cannot be guaranteed. If there is any point, which is of particular importance to you, please obtain professional confirmation. Alternatively, we will be pleased to check the information for you. All measurements quoted are approximate. The Fixtures, Fittings & Appliances have not been tested and therefore no guarantee can be given that they are in working order. Photographs are reproduced for general information and it cannot be inferred that any item shown is included in the sale.
Broadband Speed Availability
Potential Speeds for 25 Glebe Manor
Max Download
1800
Mbps
Max Upload
220
MbpsThe speeds indicated represent the maximum estimated fixed-line speeds as predicted by Ofcom. Please note that these are estimates, and actual service availability and speeds may differ.
Property Location
Mortgage Calculator
Contact Agent
Contact Colin Graham Residential
Request More Information
Requesting Info about...
25 Glebe Manor, Newtownabbey, BT36 6HF
By registering your interest, you acknowledge our Privacy Policy
By registering your interest, you acknowledge our Privacy Policy