Contact Agent

Contact Colin Graham Residential

Contact Colin Graham Residential

2 Bed Semi-Detached House

193 Monkstown Road

Newtownabbey, BT37 0LQ

offers over £149,950
  • Status Sale Agreed
  • Property Type Semi-Detached
  • Bedrooms 2
  • Receptions 2
  • Bathrooms 1
  • Heating Oil
  • EPC Rating F26 / C74 -
  • Stamp Duty
    Higher amount applies when purchasing as buy to let or as an additional property
    £499 / £7,997*
  • Typical Mortgage
    Click price to use our mortgage calculator
EPC Rating

Key Features & Description

Extended Semi Detached Home
Two Bedroom; Two Reception
Kitchen With Informal Dining Area
Bathroom
Floored Roof Space
Oil Heating; Double Glazing
Generous Sized Private Driveway
Large Garage/Workshop
Low Maintenance Gardens
Convenient Location
Description
Well presented, extended, two bedroom/two reception, semi detached home, with large matching garage/workshop, and generous sized private driveway area, conveniently situated off Monkstown Road, Newtownabbey.

The property comprises entrance porch, entrance hall, lounge, separate family room, kitchen with informal dining area, two well proportioned bedrooms, bathroom and floored roof space.

Externally, the property enjoys driveway, garage/workshop, with shower room, and low maintenance gardens.

Other attributes include oil heating and double glazing.

Early viewing highly recommended to avoid disappointment.

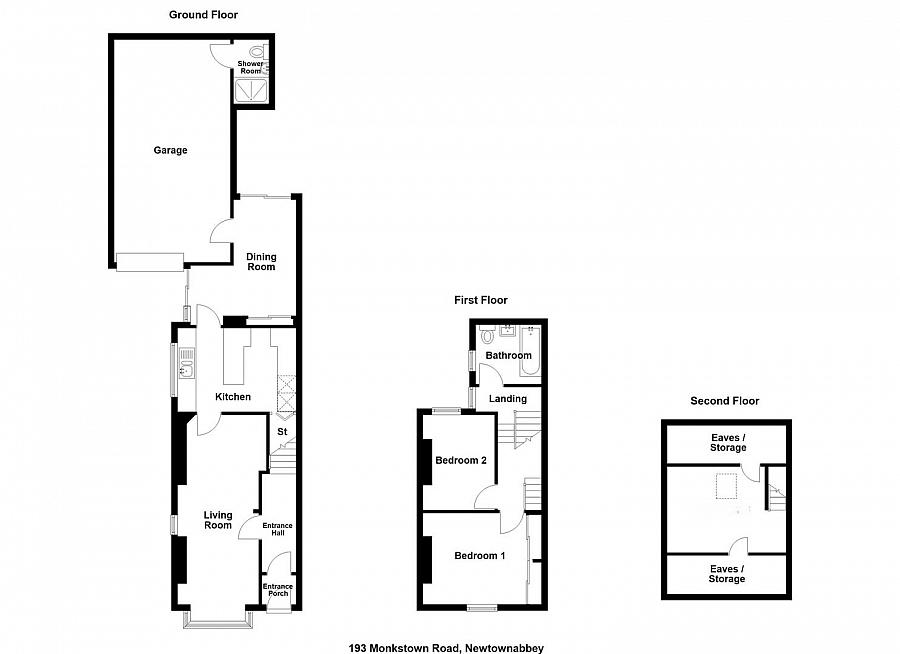
Rooms

ACCOMMODATION
ENTRANCE PORCH Glass panelled front door. Feature height ceiling, continuing throughout ground floor level. Wood laminate floor covering. Glass panelled door leading to:
ENTRANCE HALL Wood laminate floor covering. Stairwell to first floor.
LOUNGE 22'8" X 9'6" (wps) (6.92m X 2.90m (wps)) Dual aspect windows. Box bay window to front elevation. Focal point fireplace with tiled hearth. Glass panelled door leading to:
KITCHEN WITH INFORMAL DINING AREA 13'2" X 9'0" (4.02m X 2.75m) Fitted kitchen with range of high and low level storage units with contrasting, wood grain effect, melamine work surface. Matching breakfast bar area. Colour coded 1.5 bowl sink unit with draining bay. Cooker point. Plumbed and space for washing machine. Plumbed and space for dishwasher. Space for under counter fridge. Integrated microwave oven. Splashback tiling to walls. Tiled floor. Glass panelled door leading to:
FAMILY ROOM 13'5" X 12'2" (wps) (4.10m X 3.72m (wps)) Aluminium framed, double glazed, sliding patio doors to side and rear. Timber flooring. Built in storage unit/bar. Glass panelled door leading to integral garage.
FIRST FLOOR
LANDING Fixed stairwell to roof space.
BEDROOM 1 13'1" X 9'10" (4.00m X 3.01m) Wall to wall fitted wardrobes with mirror panelled sliding doors. Wood laminate floor covering.
BEDROOM 2 9'10" X 8'2" (3.02m X 2.50m) Wood laminate floor covering.
FULLY TILED BATHROOM Three piece suite comprising panelled bath, pedestal wash hand basin and WC.
FLOORED ROOF SPACE 12'6" X 9'3" (3.82m X 2.82m) Light, double radiator, Velux window and access to under eaves storage.
EXTERNAL Double gates leading to generous sized private driveway area finished in concrete and paving.
Fully enclosed, low maintenance, paved rear yard.
PVC oil storage tank.
External lighting.
LARGE ATTACHED GARAGE/WORKSHOP 23'9" X 11'8" (7.26m X 3.56m) Power operated, roller, shutter door. Separate service door to family room. Power and light. Shower room to rear with three piece suite, comprising shower, pedestal wash hand basin and WC.
IMPORTANT NOTE TO ALL POTENTIAL PURCHASERS Please note that we have not tested the services or systems in this property. Purchasers should make/commission their own inspections if they feel it is necessary.

Broadband Speed Availability

Ultrafast

Potential Speeds for 193 Monkstown Road

Max Download
1800
Mbps
Max Upload
220
Mbps
The speeds indicated represent the maximum estimated fixed-line speeds as predicted by Ofcom. Please note that these are estimates, and actual service availability and speeds may differ.

Property Location

Show Map

Mortgage Calculator

Disclaimer: The following calculations act as a guide only, and are based on a typical repayment mortgage model. Financial decisions should not be made based on these calculations and accuracy is not guaranteed. Always seek professional advice before making any financial decisions.

Contact Agent

Contact Colin Graham Residential

Contact Colin Graham Residential

Request More Information
Requesting Info about...
193 Monkstown Road, Newtownabbey, BT37 0LQ 193 Monkstown Road, Newtownabbey, BT37 0LQ

By registering your interest, you acknowledge our Privacy Policy