Contact Agent
Contact Colin Graham Residential
2 Bed Terrace House
329 Carnmoney Road
Newtownabbey, BT36 6JT
offers over
£119,950
Key Features & Description
Extended Mid Terrace Property
Fully Modernised
Immaculately Presented Throughout
Lounge
Kitchen With Informal Dining Area
Luxury Fitted Kitchen
Two Double Bedrooms
Deluxe Fully Tiled Shower Room
Utility Store
Fully Landscaped Rear Garden
Description
Immaculately presented, extended, two bedroom, mid terrace property, conveniently situated off Carnmoney Road, Carnmoney village, Newtownabbey.
The property comprises lounge, kitchen with informal dining area, luxury fitted kitchen, two well-proportioned double bedrooms, deluxe, fully tiled shower room, with contemporary, white, three piece suite.
Externally, the property enjoys fully landscaped, low maintenance rear garden and utility store.
Other attributes include gas heating and PVC double glazing.
Ideal first time buy / buy to let investment alike.
Early viewing highly recommended to avoid disappointment.
Immaculately presented, extended, two bedroom, mid terrace property, conveniently situated off Carnmoney Road, Carnmoney village, Newtownabbey.
The property comprises lounge, kitchen with informal dining area, luxury fitted kitchen, two well-proportioned double bedrooms, deluxe, fully tiled shower room, with contemporary, white, three piece suite.
Externally, the property enjoys fully landscaped, low maintenance rear garden and utility store.
Other attributes include gas heating and PVC double glazing.
Ideal first time buy / buy to let investment alike.
Early viewing highly recommended to avoid disappointment.
Rooms
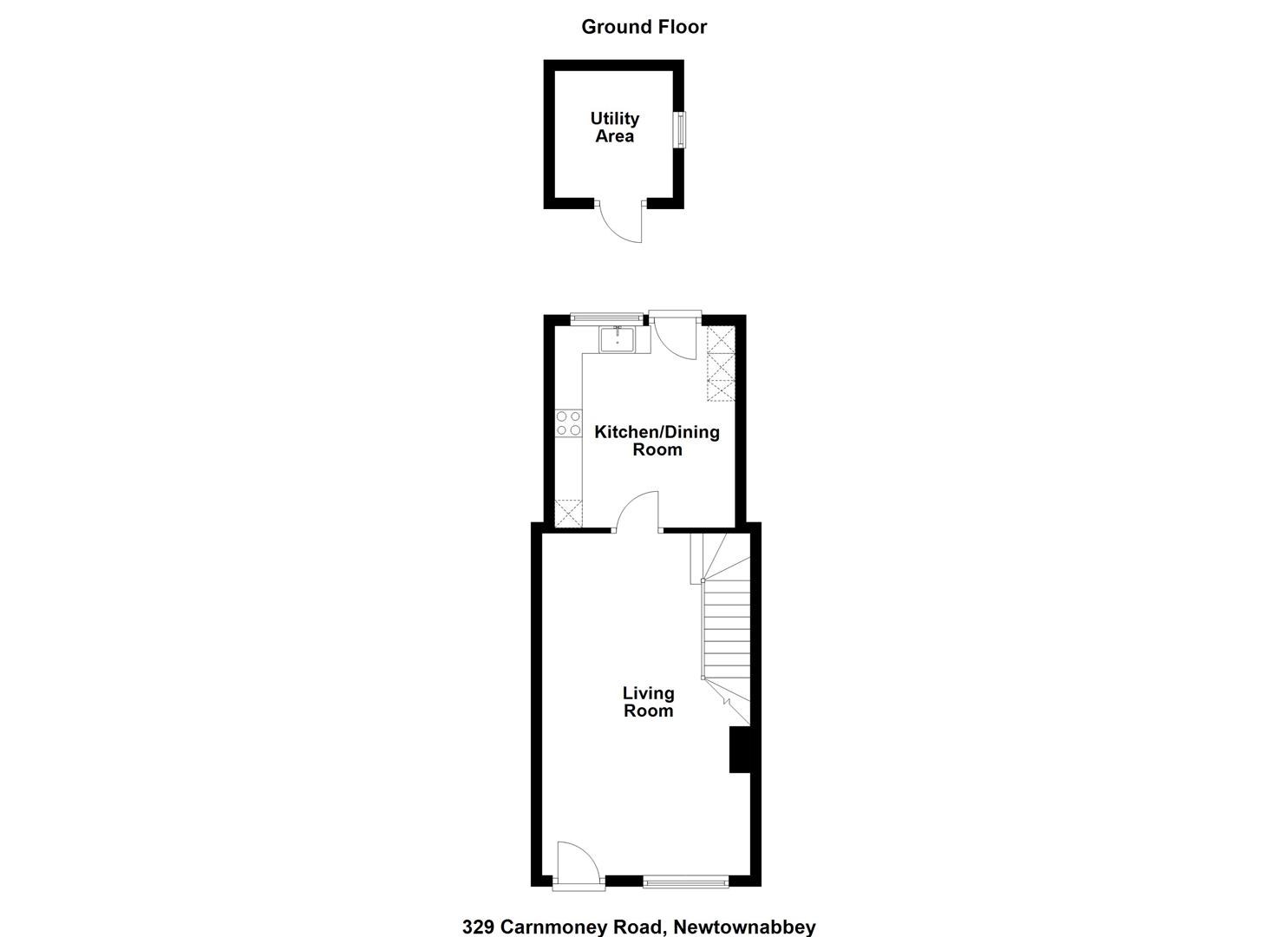
ACCOMMODATION
LOUNGE 20'4" X 12'5" (6.21m X 3.80m)
PVC double glazed front door. Wood laminate floor covering. Stairwell to first floor. Glass panelled door leading to:
KITCHEN WITH INFORMAL DINING AREA 12'0" X 10'9" (3.66m X 3.28m)
Luxury fitted kitchen with range of high and low level storage units with contrasting, solid quartz worktop. Ceramic Belfast sink. Cooker point with solid quartz splashback and extractor hood over. Space for fridge freezer. Integrated dishwasher. Gas fired central heating boiler (housed within matching unit). Solid quartz upstands to walls. Wood laminate floor covering. PVC double glazed door to rear garden.
FIRST FLOOR
LANDING
Access to roof space via slingsby style ladder.
BEDROOM 1 11'11" X 10'8" (3.64m X 3.27m)
Built in wardrobe/store. Wood laminate floor covering.
BEDROOM 2 12'5" X 8'9" (3.81m X 2.68m)
Built in wardrobe with mirror panelled, sliding doors. Wood laminate floor covering.
DELUXE FULLY TILED SHOWER ROOM
Contemporary, white, three piece suite comprising oversized shower enclosure, floating vanity unit and WC. Thermostat controlled mains shower unit with drench shower head. Chrome towel radiator.
EXTERNAL
Low maintenance front garden finished in decorative stone.
External lighting.
PVC fascia and rainwater goods.
Fully enclosed rear garden finished in patio areas, decorative stone and mature tree.
Outside tap.
External lighting.
PVC fascia and rainwater goods.
Fully enclosed rear garden finished in patio areas, decorative stone and mature tree.
Outside tap.
UTILITY STORE 7'8" X 7'0" (2.34m X 2.15m)
Power. Plumbed for automatic washing machine. Tiled floor.
IMPORTANT NOTE TO ALL POTENTIAL PURCHASERS
Please note that we have not tested the services or systems in this property. Purchasers should make/commission their own inspections if they feel it is necessary.
Broadband Speed Availability
Potential Speeds for 329 Carnmoney Road
Max Download
1800
Mbps
Max Upload
220
MbpsThe speeds indicated represent the maximum estimated fixed-line speeds as predicted by Ofcom. Please note that these are estimates, and actual service availability and speeds may differ.
Property Location
Mortgage Calculator
Contact Agent
Contact Colin Graham Residential
Request More Information
Requesting Info about...
329 Carnmoney Road, Newtownabbey, BT36 6JT
By registering your interest, you acknowledge our Privacy Policy
By registering your interest, you acknowledge our Privacy Policy