Contact Agent

Contact Shooter Property Services (Newry)

Contact Shooter Property Services (Newry)

Building Site

Building Site Lissaraw Road

Camlough, Newry, BT35 7HL

offers in excess of £145,000
  • Status Sale Agreed
  • Property Type Building Site
  • EPC Rating Certificate -
  • Stamp Duty
    Higher amount applies when purchasing as buy to let or as an additional property
    £400 / £7,650*
  • Typical Mortgage
    Click price to use our mortgage calculator

Key Features & Description

Approximately 0.4 acre Site
Full Planning Approved under Reference LA07/2023/3621/RM
Excellent Rural Vistas across Camlough Mountain
Mains Water on Site
Mains Electricity on Road Side, Fibre Broadband Available
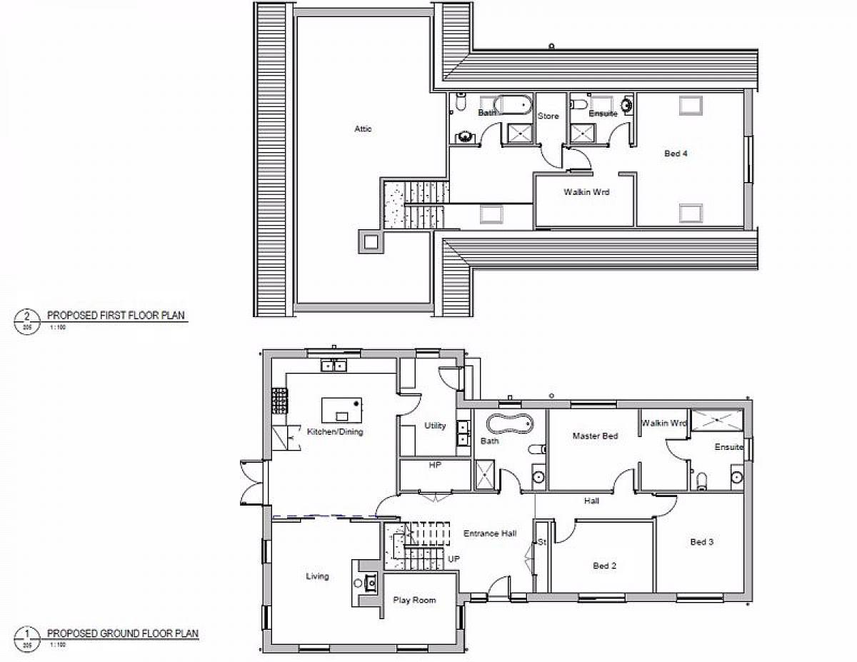
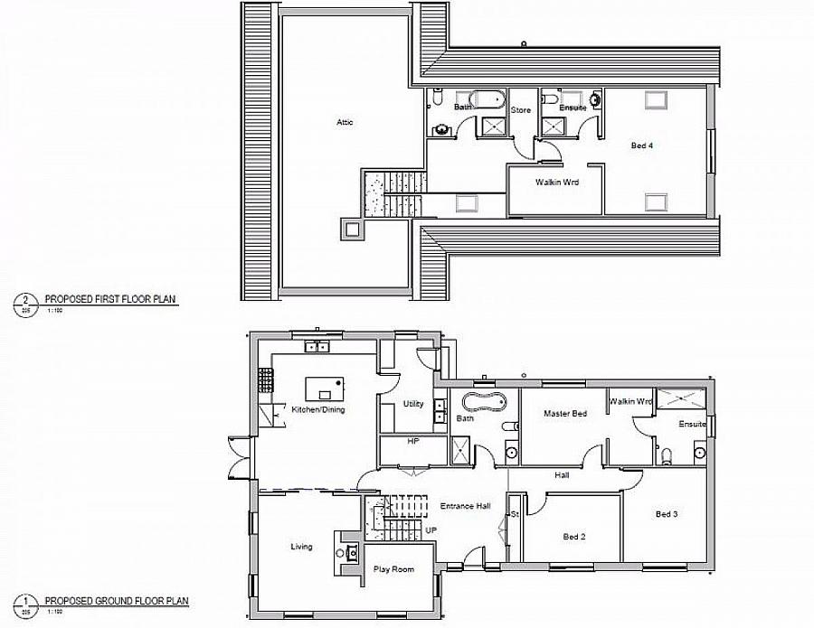
Impressive Modern Design Comprising Four Bedrooms, Two Reception Rooms, Four Bathrooms
Sought After and Convenient Location Just 1 mile outside Camlough Newry 8 minutes' drive, A1 dual carriageway 7 minutes' drive
Note - Subject site is Plot 2 as referred to on site map
See Planning Approval under EPC Link
Viewings - by Inpsection from Road Side at Any Time
Description
An excellent opportunity to purchase a fully approved building site just outside Camlough village. The site enjoys superb rural vistas and yet is only minutes from Camlough, local village amenities and the A1 dual carriageway. Plans are approved for a well designed four bedroom, two reception chalet bungalow plus detached garage under reference LA07/2023/3621/RM. We recommend inspection in order to fully appreciate this superb site.

Property Location

Show Map

Mortgage Calculator

Disclaimer: The following calculations act as a guide only, and are based on a typical repayment mortgage model. Financial decisions should not be made based on these calculations and accuracy is not guaranteed. Always seek professional advice before making any financial decisions.

Contact Agent

Contact Shooter Property Services (Newry)

Contact Shooter Property Services (Newry)

Request More Information
Requesting Info about...
Building Site Lissaraw Road, Camlough, Newry, BT35 7HL Building Site Lissaraw Road, Camlough, Newry, BT35 7HL

By registering your interest, you acknowledge our Privacy Policy