Contact Agent

Contact Shooter Property Services (Newry)

Contact Shooter Property Services (Newry)

3 Bed Terrace House

16 Derrybeg Drive

Newry, BT35 6ES

offers in excess of £129,950
  • Status Under Offer
  • Property Type Terrace
  • Bedrooms 3
  • Receptions 1
  • Bathrooms 1
  • Furnished Unfurnished
  • EPC Rating Certificate -
  • Stamp Duty
    Higher amount applies when purchasing as buy to let or as an additional property
    £99 / £6,597*
  • Typical Mortgage
    Click price to use our mortgage calculator

Key Features & Description

3 Bed Mid Terrace
Gas Central Heating
Hardwood Double Glazed Windows
Carpets, Curtains & Blinds Included
Popular Residential Location
Within Walking Distance To Newry Leisure Centre, Hospital & City Centre
Short Drive To Newry Train Station & A1 Motorway
Perfect For Commuting
Ideal Starter Home Or Investment Property
Plus Numerous Other Unique Features
Description
This well-presented three-bedroom mid-terrace property is located in a popular residential area just off the Camlough Road, offering convenient access to Newry City, the A1 bypass, Newry Leisure Centre, the train station, and Daisy Hill Hospital. The property would make an ideal starter home and also presents an attractive opportunity for investors. Early internal inspection is highly recommended.

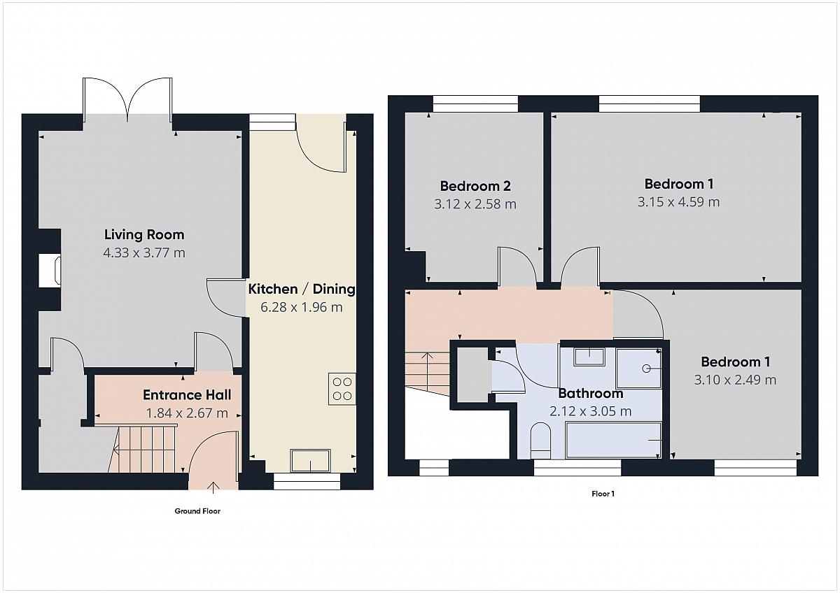
Rooms

Entrance Hall 6'0'' X 8'9'' (1.84m X 2.67m) Hardwood door, telephone point and vinyl floor.
Living Room 14'2'' X 12'4'' (4.33m X 3.77m) Open fireplace with tile hearth, wooden surround and mantle. Television aerial and storage cupboard off. Vinyl floor. Double French doors to rear.
Kitchen / Dining 20'7'' X 6'5'' (6.28m X 1.96m) Range of high and low level units incorporating 1 1/2 sink unit, oven, hob with space for fridge freezer, dishwasher and washing machine. Ceramic tiled floor and part tiled walls. Hardwood door to rear.
Landing Access to attic. Carpet.
Bedroom 1 10'4'' X 15'1'' (3.15m X 4.59m) Built-in closet and wardrobes. Coved ceiling and recessed ceiling lights. Laminate floor.
Bedroom 2 10'3'' X 8'6'' (3.12m X 2.58m) Built-in shelves. Vinyl floor.
Bedroom 3 10'2'' X 8'2'' (3.10m X 2.49m) Vinyl floor.
Bathroom 6'11'' X 10'0'' (2.12m X 3.05m) Toilet, pedestal wash hand basin with vanity unit, bath and shower. Triton electric shower unit. Ceramic tiled walls and vinyl floor. Coved ceiling and recessed ceiling lights. Storage cupboard off with gas boiler.
External Front lawn with shared side entrance. Enclosed rear garden with gate, grass lawn, paved patio and rock beds. Concrete shed. Watertap and outside light.

Virtual Tour

Broadband Speed Availability

Ultrafast

Potential Speeds for 16 Derrybeg Drive

Max Download
1800
Mbps
Max Upload
220
Mbps
The speeds indicated represent the maximum estimated fixed-line speeds as predicted by Ofcom. Please note that these are estimates, and actual service availability and speeds may differ.

Property Location

Show Map

Mortgage Calculator

Disclaimer: The following calculations act as a guide only, and are based on a typical repayment mortgage model. Financial decisions should not be made based on these calculations and accuracy is not guaranteed. Always seek professional advice before making any financial decisions.

Contact Agent

Contact Shooter Property Services (Newry)

Contact Shooter Property Services (Newry)

Request More Information
Requesting Info about...
16 Derrybeg Drive, Newry, BT35 6ES 16 Derrybeg Drive, Newry, BT35 6ES

By registering your interest, you acknowledge our Privacy Policy
Ask Holmes
Ask Holmes
Let's find your next home

Are you sure you want to reset the chat?

Checking API...