Contact Agent
Contact Shooter Property Services (Newry)
Site
Development Site East Of Kenard Villas
Newry, BT34 1LQ
offers in excess of
£250,000
- Status Sale Agreed
- Property Type Site
-
Stamp Duty
Higher amount applies when purchasing as buy to let or as an additional property£2,500 / £15,000*
Key Features & Description
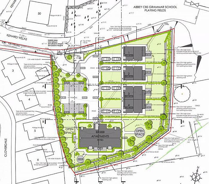
Fully Approved Residential Development Site in a Sought After Location
Planning Reference LA07/2019/1276/F
Planning for 2 x detached, 2 x semi-detached, 4 x apartments with generous amenity space
Services available nearby via existing Kenard Villas development
Convenient to local schools, sports clubs and amenities
Approximately 0.9 acres
Architects - O'Hagan & Associates, Newry
Description
Fully approved development site of circa 0.9 acres. The site is accessed via the existing residential development of Kenard Villas off the Ashgrove Road, Newry. Planning is approved for 2 no. detached, 2 no. semi-detached and 4 no. apartment units under planning reference LA07/2019/1276/F. The site benefits from convenience to all utility connections off the existing Kenard Villas development. A 'ready to go' serviced site in a excellent residential location, close to the A1 motorway, local schools, train station and Newry city centre.
Fully approved development site of circa 0.9 acres. The site is accessed via the existing residential development of Kenard Villas off the Ashgrove Road, Newry. Planning is approved for 2 no. detached, 2 no. semi-detached and 4 no. apartment units under planning reference LA07/2019/1276/F. The site benefits from convenience to all utility connections off the existing Kenard Villas development. A 'ready to go' serviced site in a excellent residential location, close to the A1 motorway, local schools, train station and Newry city centre.
Property Location
Mortgage Calculator
Contact Agent
Contact Shooter Property Services (Newry)
Request More Information
Requesting Info about...
Development Site East Of Kenard Villas, Newry, BT34 1LQ
By registering your interest, you acknowledge our Privacy Policy
By registering your interest, you acknowledge our Privacy Policy