5 Bed Detached House
113 Ballagh Road
Newcastle, BT33 0LA
offers over
£950,000
Key Features & Description
Magnificent Detached Family Home Constructed 2006
Elevated Site with Breathtaking Views over Irish Sea to Front and Mourne Mountains to Rear
Beautifully Presented Accommodation extending to approximately 3800 sq ft
Four Generous Bedrooms plus Study
Dining Hall and Family Room
Superb Open Plan Kitchen/Living/Dining
Spacious Landing with Games Room Area
Adjoining 1 Bed Annex with Separate Entrance
Family Bathroom and Two Ensuites
Utility Room
Oil Fired Central Heating
Double Glazing
Large Integral Garage
Pleasant Well Tended Gardens to Front and Rear in Lawns and Rear Patio
Adjoining Paddock
3 miles from bustling Town of Newcastle with its array of local amenities, pubs, restaurants and Worlds Number 1 Ranked Golf Course at Royal County Down
Ideal as Permanent Home/Second Home or B and B [ Currently Registered with NI Tourist Board ]
Viewing by Private Appointment
Description
Occupying a magnificent elevated site with breathtaking views to the front over the Irish Sea with a dramatic backdrop of the Mourne Mountains to the rear this stunning detached family is sure to appeal to a broad spectrum of the market
Constructed in 2006 and extending to approximately 3800 sq ft the property itself is beautifully presented by the present vendors with a superb deceptively spacious layout providing four generous bedrooms, together with dining hall, family room, open plan kitchen/living/dining with two ensuites and one bathroom. in addition there is an adjoining self contained one bedroom annex with its own separate entrance
Externally there are well presented gardens to front and rear in lawns, large patio area and adjoining paddock
The busy town of Newcastle famed as where the Mountains sweep down to the sea is popular with hill walkers, water sports enthusiasts and golfers alike with the worlds number 1 ranked golf course at Royal County Down. The towns many local amenities, pubs and restaurants are also a short drive away
Whether as a permanent home, holiday retreat or as a B and B [ currently registered with NI Tourist Board ] viewing of this exceptional home is by private appointment through our Belfast Office on 02890 668888
Occupying a magnificent elevated site with breathtaking views to the front over the Irish Sea with a dramatic backdrop of the Mourne Mountains to the rear this stunning detached family is sure to appeal to a broad spectrum of the market
Constructed in 2006 and extending to approximately 3800 sq ft the property itself is beautifully presented by the present vendors with a superb deceptively spacious layout providing four generous bedrooms, together with dining hall, family room, open plan kitchen/living/dining with two ensuites and one bathroom. in addition there is an adjoining self contained one bedroom annex with its own separate entrance
Externally there are well presented gardens to front and rear in lawns, large patio area and adjoining paddock
The busy town of Newcastle famed as where the Mountains sweep down to the sea is popular with hill walkers, water sports enthusiasts and golfers alike with the worlds number 1 ranked golf course at Royal County Down. The towns many local amenities, pubs and restaurants are also a short drive away
Whether as a permanent home, holiday retreat or as a B and B [ currently registered with NI Tourist Board ] viewing of this exceptional home is by private appointment through our Belfast Office on 02890 668888
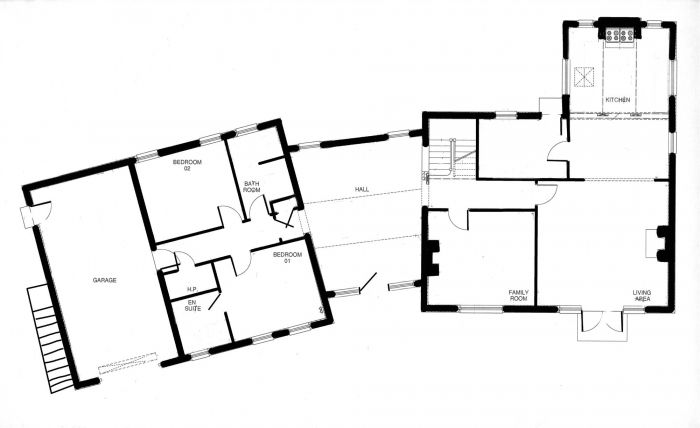
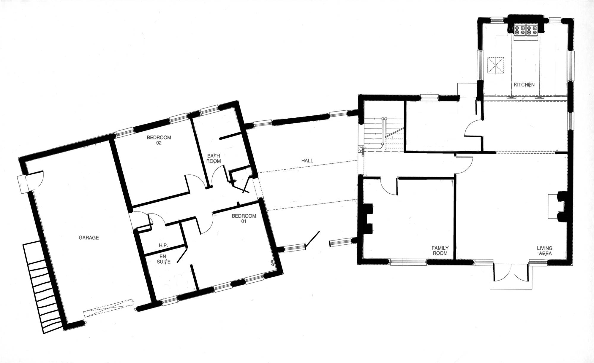
Rooms
DINING HALL: 20' 5" X 15' 10" (6.22m X 4.83m)
Harwood front door to dining hall with tiled floor.
FAMILY ROOM: 14' 6" X 13' 0" (4.42m X 3.96m)
Gas fire, sea views.
KITCHEN / LIVING / DINING: 39' 2" X 17' 7" (11.94m X 5.36m)
LIVING ROOM:
Wood burning stove, oak flooring, double doors to front.
UTILITY ROOM: 12' 2" X 8' 1" (3.71m X 2.46m)
Low level units, inset sink, plumbed washing machine.
BEDROOM: 13' 0" X 11' 3" (3.96m X 3.43m)
ENSUITE BATHROOM:
Fully Tiled Shower Enclosure, low flush WC, wash hand basin.
BEDROOM: 12' 8" X 11' 3" (3.86m X 3.43m)
INTEGRAL GARAGE: 27' 4" X 13' 9" (8.33m X 4.19m)
Automated Roller Door, Oil Fired Boiler, light and power.
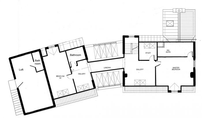
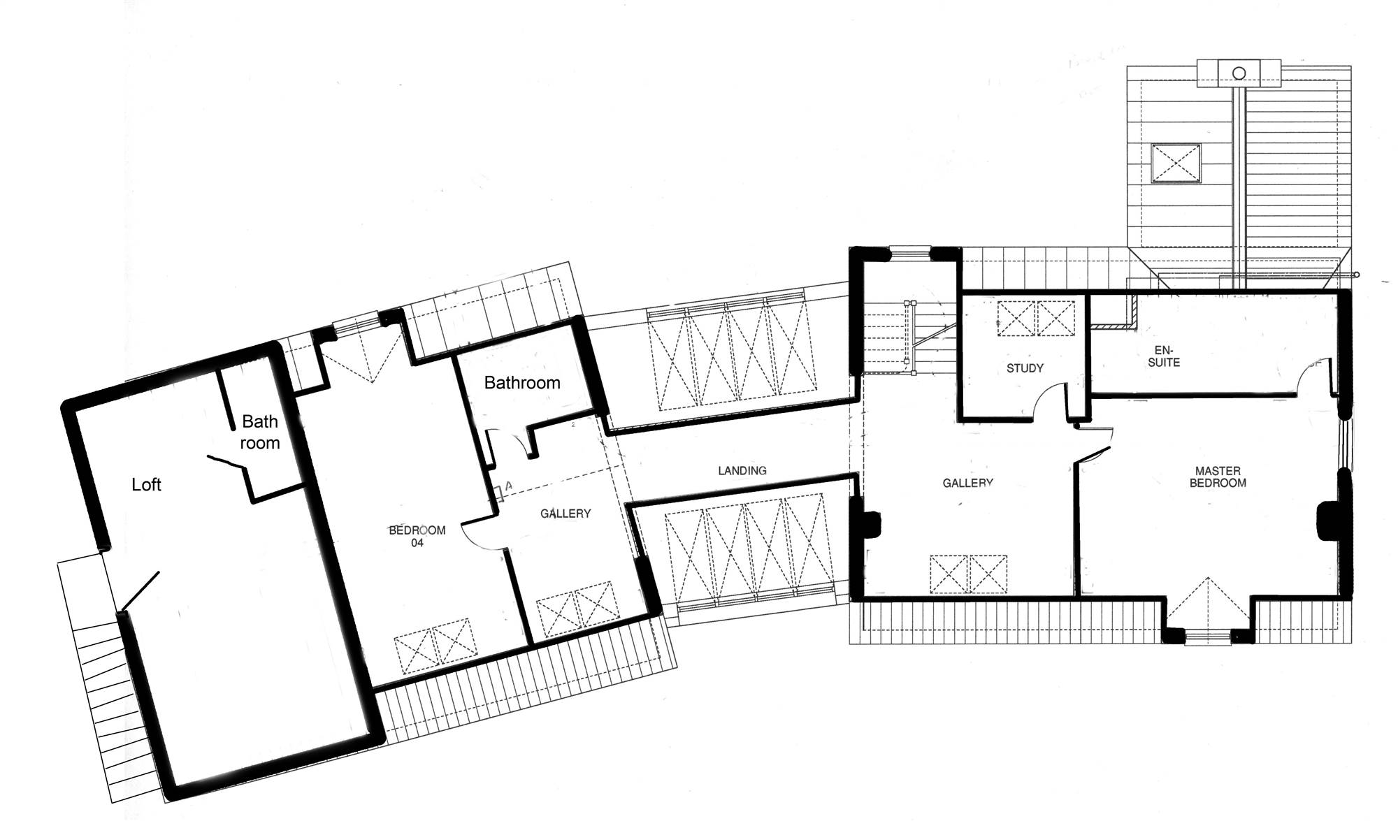
GAMES AREA/LANDING: 13' 2" X 12' 3" (4.01m X 3.73m)
BEDROOM: 17' 5" X 16' 2" (5.31m X 4.93m)
ENSUITE BATHROOM:
White suite, panelled bath, mixer taps, walk in shower enclosure, low flush WC, twin wash hand basin, bedet
BEDROOM: 24' 0" X 11' 6" (7.32m X 3.51m)
STUDY: 8' 9" X 8' 4" (2.67m X 2.54m)
BATHROOM:
White suite, panelled bath, mixer taps, telephone hand shower, low flush WC, wash hand basin
Magnificent site with generous gardens to the front and rear and additional paddock
LOFT APARTMENT: 24' 0" X 14' 1" (7.32m X 4.29m)
KITCHEN:
ENSUITE BATHROOM:
Fully Tiled Shower Enclosure, low flush WC, wash hand basin
Property Location
Mortgage Calculator
Directions
.
Contact Agent
Contact Simon Brien (South Belfast)
Request More Information
Requesting Info about...
113 Ballagh Road, Newcastle, BT33 0LA
By registering your interest, you acknowledge our Privacy Policy
By registering your interest, you acknowledge our Privacy Policy