Contact Agent
Contact Best Property Services (Dungannon)
Site
Benburb Road
Moy, Dungannon, BT71 7SQ
offers over
£495,000
- Status Sale Agreed
- Property Type Site
-
Stamp Duty
Higher amount applies when purchasing as buy to let or as an additional property£14,750 / £39,500*
Key Features & Description
Description
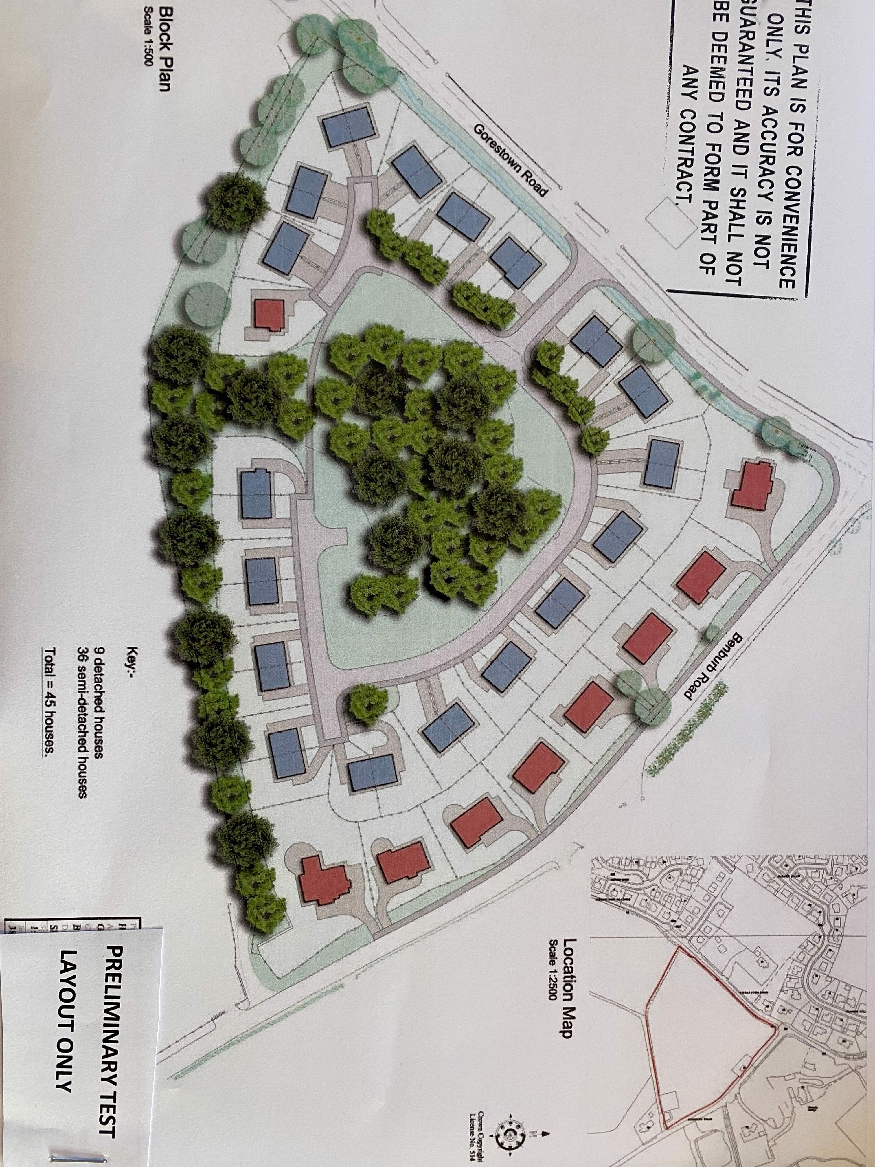
- This prominent land holding is located on the edge of Moy Village, with frontage to Benburb Road and Gorestown Road.
- Part of the property was historically used as a council recycling centre and village refuge landfill site.
- The lands which extend to approx. 8.5 acres, are situated within the Moy settlement zoning, hence may be suitable for housing development or other uses, subject to planning consent.
- A preliminary ground investigation report is available to interested parties, which has records of boreholes drilled across the site, to assist in assessing ground conditions and contamination.
- The draft housing layout provided does not have planning consent, and should be regarded as a preliminary design layout only. Prospective purchasers area advised to seek their own independent advice with regard to any proposed development of the property.
For further details, please contact Conor Mallon -Dungannon Office - 02887722663
- This prominent land holding is located on the edge of Moy Village, with frontage to Benburb Road and Gorestown Road.
- Part of the property was historically used as a council recycling centre and village refuge landfill site.
- The lands which extend to approx. 8.5 acres, are situated within the Moy settlement zoning, hence may be suitable for housing development or other uses, subject to planning consent.
- A preliminary ground investigation report is available to interested parties, which has records of boreholes drilled across the site, to assist in assessing ground conditions and contamination.
- The draft housing layout provided does not have planning consent, and should be regarded as a preliminary design layout only. Prospective purchasers area advised to seek their own independent advice with regard to any proposed development of the property.
For further details, please contact Conor Mallon -Dungannon Office - 02887722663
Property Location
Mortgage Calculator
Contact Agent
Contact Best Property Services (Dungannon)
Request More Information
Requesting Info about...
Benburb Road, Moy, Dungannon, BT71 7SQ
By registering your interest, you acknowledge our Privacy Policy
By registering your interest, you acknowledge our Privacy Policy