Site
Site 40M North Of 116 Kilgad Road
Moorfields
offers around
£70,000
- Status For Sale
- Property Type Site
-
Stamp Duty
Higher amount applies when purchasing as buy to let or as an additional property£0 / £3,500*
Key Features & Description
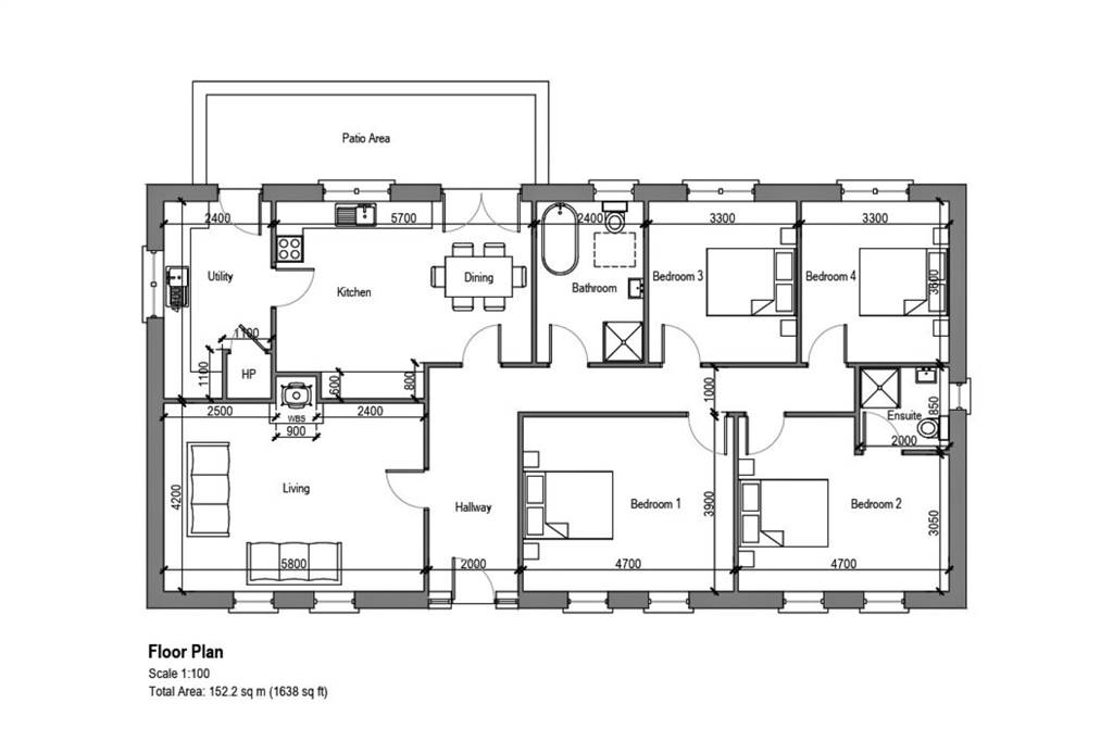
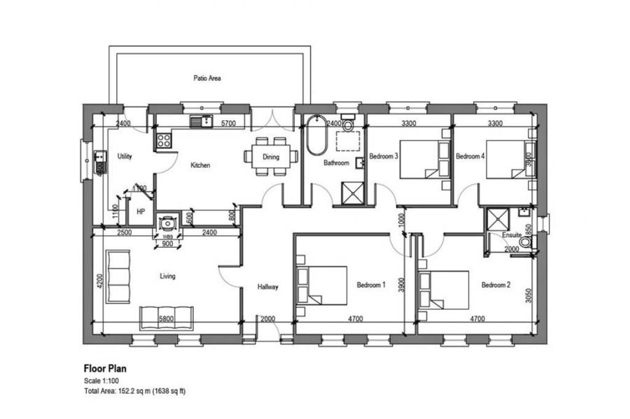
Site with full planning permission
Passed for detached four bedroom bungalow and detached garage
Approximately 0.3 acres
Water and electric convenient to site
Private access
Excellent location
Convenient to Moorfields Primary School
A short 5-minute drive to Kells Village
Planning application no: LA02/2025/0444/RM
Description
Homes Independent are pleased to offer for sale a building site extending to approximately 0.3 acres, located approximately 40 metres north of 116 Kilgad Road, Moorfields, set within a quiet and attractive semi-rural location; the site benefits from full planning permission for a dwelling and garage and offers excellent potential for those seeking to build their own home; access is provided via a private driveway from the Kilgad Road, with water and electricity services extremely accessible; with very little comparable opportunity currently available in the area, Homes Independent encourage all interested parties to register their interest earlyâcontact us today for further information.
Homes Independent are pleased to offer for sale a building site extending to approximately 0.3 acres, located approximately 40 metres north of 116 Kilgad Road, Moorfields, set within a quiet and attractive semi-rural location; the site benefits from full planning permission for a dwelling and garage and offers excellent potential for those seeking to build their own home; access is provided via a private driveway from the Kilgad Road, with water and electricity services extremely accessible; with very little comparable opportunity currently available in the area, Homes Independent encourage all interested parties to register their interest earlyâcontact us today for further information.
Property Location
Mortgage Calculator
Directions
40 metres north of 116 Kilgad Road, Moorfields, Kells.
Contact Agent
Contact Homes Independent
Request More Information
Requesting Info about...
Site 40M North Of 116 Kilgad Road, Moorfields
By registering your interest, you acknowledge our Privacy Policy
By registering your interest, you acknowledge our Privacy Policy