Contact Agent
Contact Tim Martin & Co (Comber)
3 Bed Terrace House
12 Rockland Drive
Moneyreagh, BT23 6BD
offers around
£165,000
Key Features & Description
Well Presented Semi Detached Home
Modern Kitchen with Dining Area
Lounge with Feature Bay Window Opening through to Kitchen / Dining
Three Well Proportioned Bedrooms
Modern Shower Room
Oil Fired Central Heating and Double Glazing
Enclosed Rear Garden with Lawns, Decking Areas and Stoned Area
Off Street Parking for Two Cars to Front
Within Walking Distance to Moneyreagh's Amenities
Description
This spacious, well presented end terrace home is ideally located in this popular development within walking distance of Moneyreagh Village.
The accommodation is generous, and leaves nothing for the lucky buyer to do only unpack! The ground floor hosts a lounge opening through to a spacious kitchen and separate dining area. The first floor enjoys three bright, well-proportioned bedrooms, one with built in wardrobe and modern shower room.
Outside is equally as impressive, the enclosed rear gardens lead from the kitchen and feature easily maintained patio areas to catch the afternoon sun, and lawns creating the perfect haven away from everyday life and an ideal location for summer bar-be-ques. The front garden provides off street parking for two cars.
This home is within walking distance of Moneyreagh Village, hosting a convenience store, church, children's play park and The Auld House pub. Moneyreagh Primary School is a short walk away. An excellent public transport service and road network allows for a convenient commute to Carryduff, Lisburn and Belfast City Centre; as well as schools in the surrounding towns and Belfast.
This spacious, well presented end terrace home is ideally located in this popular development within walking distance of Moneyreagh Village.
The accommodation is generous, and leaves nothing for the lucky buyer to do only unpack! The ground floor hosts a lounge opening through to a spacious kitchen and separate dining area. The first floor enjoys three bright, well-proportioned bedrooms, one with built in wardrobe and modern shower room.
Outside is equally as impressive, the enclosed rear gardens lead from the kitchen and feature easily maintained patio areas to catch the afternoon sun, and lawns creating the perfect haven away from everyday life and an ideal location for summer bar-be-ques. The front garden provides off street parking for two cars.
This home is within walking distance of Moneyreagh Village, hosting a convenience store, church, children's play park and The Auld House pub. Moneyreagh Primary School is a short walk away. An excellent public transport service and road network allows for a convenient commute to Carryduff, Lisburn and Belfast City Centre; as well as schools in the surrounding towns and Belfast.
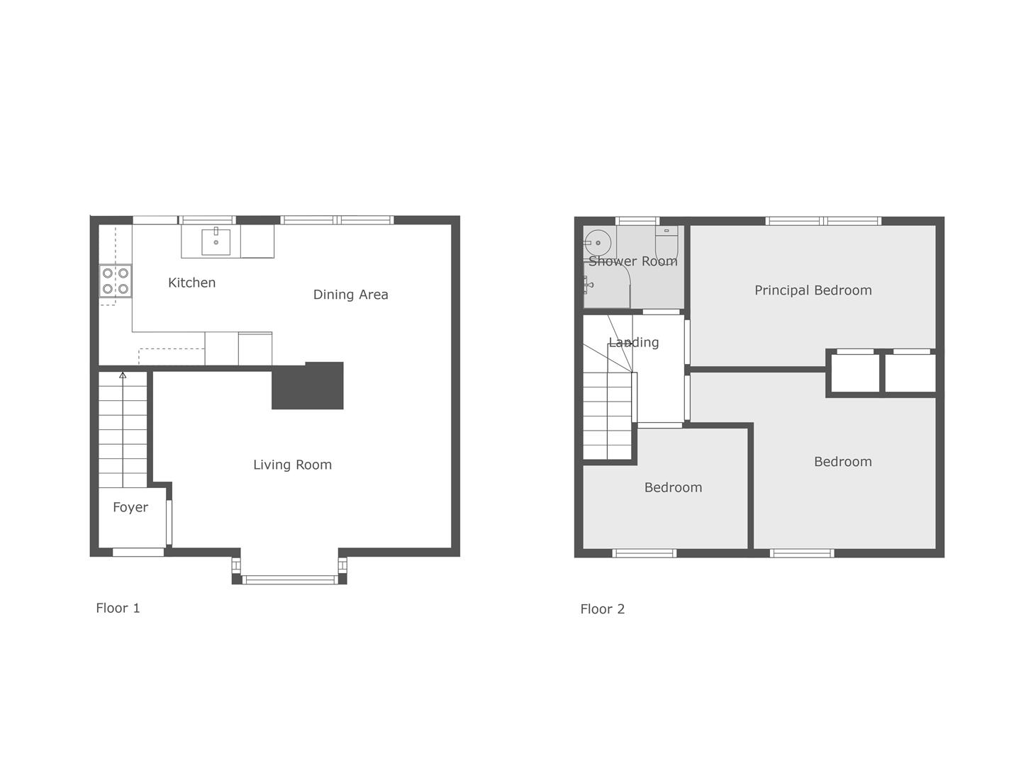
Rooms
Entrance Hall
Lounge 15'11 X 10'4 (4.85m X 3.15m)
(Not Including Bay Window)
Bay window; TV aerial and telephone connection points; open through to:-
Bay window; TV aerial and telephone connection points; open through to:-
Kitchen / Dining Area 19'1 X 8'7 (5.82m X 2.62m)
Excellent range of high and floor level cupboard and drawers incorporating single drainer stainless steel sink unit with swan neck mixer taps; formica worktop; space for fridge / freezer; space and plumbing for washing machine; Hoover electric oven; Hoover 4 ring ceramic hob with Candy stainless steel extractor unit and light over; part tiled walls; ceramic tiled floor; door to rear gardens.
Stairs to First floor / Landing
Roofspace accessed via slingsby style ladder - floored.
Bedroom 1 9'6 X 7'4 (2.90m X 2.24m)
Maximum Measurements
Bedroom 2 11'8 X 8'8 (3.56m X 2.64m)
Minimum measurements
Bedroom 3 15'3 X 8'5 (4.65m X 2.57m)
Built in wardrobes with clothes rails and shelves; hotpress with lagged copper cylinder and shelving.
Shower Room 5'11 X 5'4 (1.80m X 1.63m)
White suite comprising quadrant tiled shower cubicle with Redring Expressions Revive electric shower and telephone shower attachment; glass sliding shower doors and side panels; pedestal wash hand basin with chrome mono mixer taps; close coupled WC; chrome heated towel radiator; part tiled walls; ceramic tiled floor; LED spotlights.
Gardens
Decorative concrete area to front providing off street parking for two cars.
Enclosed west facing rear gardens laid out in lawns with two decking areas to catch the afternoon sun; flowerbeds hosting a selection of ornamental and flowering shrubs and trees; stoned area with garden shed and oil storage tank; concrete patio area; water tap and light.
Enclosed west facing rear gardens laid out in lawns with two decking areas to catch the afternoon sun; flowerbeds hosting a selection of ornamental and flowering shrubs and trees; stoned area with garden shed and oil storage tank; concrete patio area; water tap and light.
Boiler House
Warmflow oil fired boiler; light and power points.
Tenure
Leasehold
Ground Rent
TBC
Capital / Rateable Value
£80,000. Rates Payable = £696.00 Per Annum (Approx)
Broadband Speed Availability
Potential Speeds for 12 Rockland Drive
Max Download
1800
Mbps
Max Upload
1000
MbpsThe speeds indicated represent the maximum estimated fixed-line speeds as predicted by Ofcom. Please note that these are estimates, and actual service availability and speeds may differ.
Property Location
Mortgage Calculator
Contact Agent
Contact Tim Martin & Co (Comber)
Request More Information
Requesting Info about...
12 Rockland Drive, Moneyreagh, BT23 6BD
By registering your interest, you acknowledge our Privacy Policy
By registering your interest, you acknowledge our Privacy Policy