Contact Agent

Contact Stewart Estate Agents

Contact Stewart Estate Agents

Building Site (with FPP)

Building site with FPP, Ne Of 107B Old Kilmore Road

Moira, BT67 0NA

offers around £89,950
  • Status For Sale
  • Property Type Building Site (with FPP)
  • Stamp Duty
    Higher amount applies when purchasing as buy to let or as an additional property
    £0 / £4,498*
  • Typical Mortgage
    Click price to use our mortgage calculator

Description

This beautiful building site has the benefit of full planning permission providing a ready to go opportunity for any self builder with a passion to build their own exclusive home or for any property developer seeking a project to start immediately. The property is wonderfully located on a private laneway just off the exclusive and very desirable Old Kilmore Road at Hamiltons Hill, Moira. 

The property has an exclusive design by BDB Architectural Design, created in a unique country house style to blend harmoniously with its exclusive surroundings yet providing an more modern, practical interior for 21st century living.  

 

Features:-

Very attractive building site with full planning permission an elevated position and open aspect, extending to approximately 0.65 acres

 

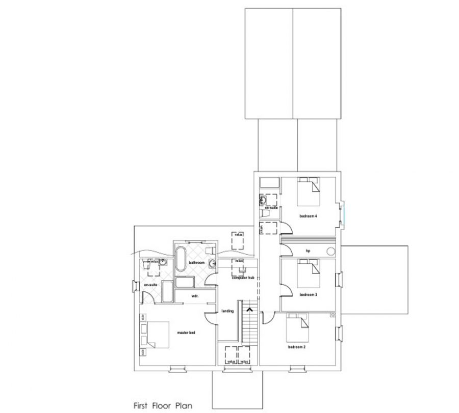
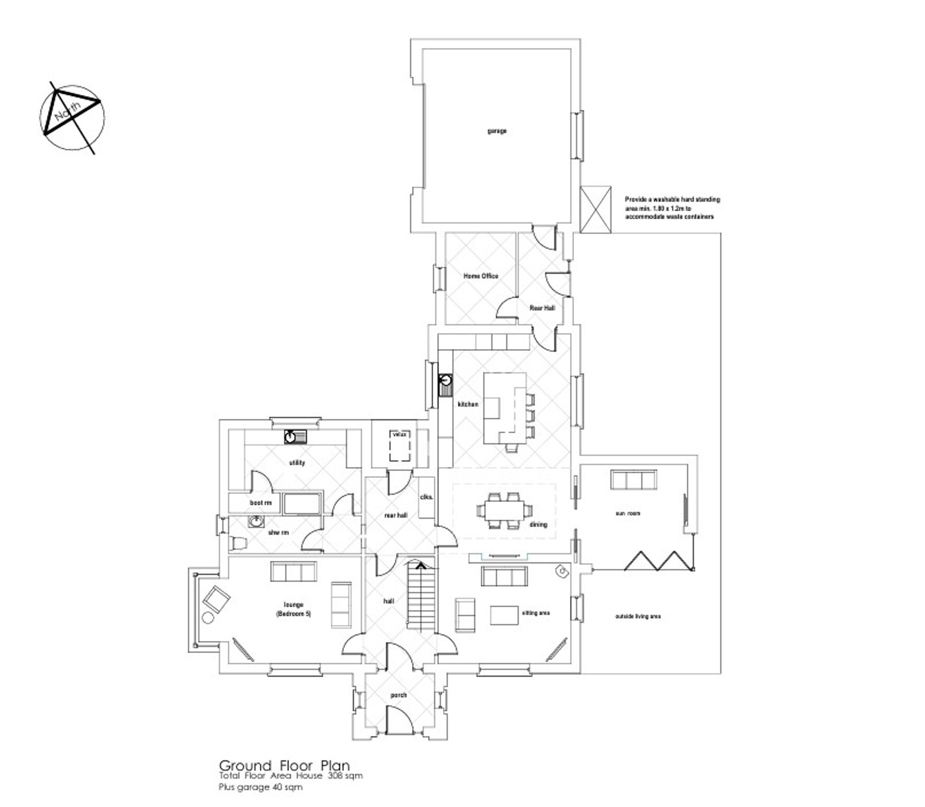
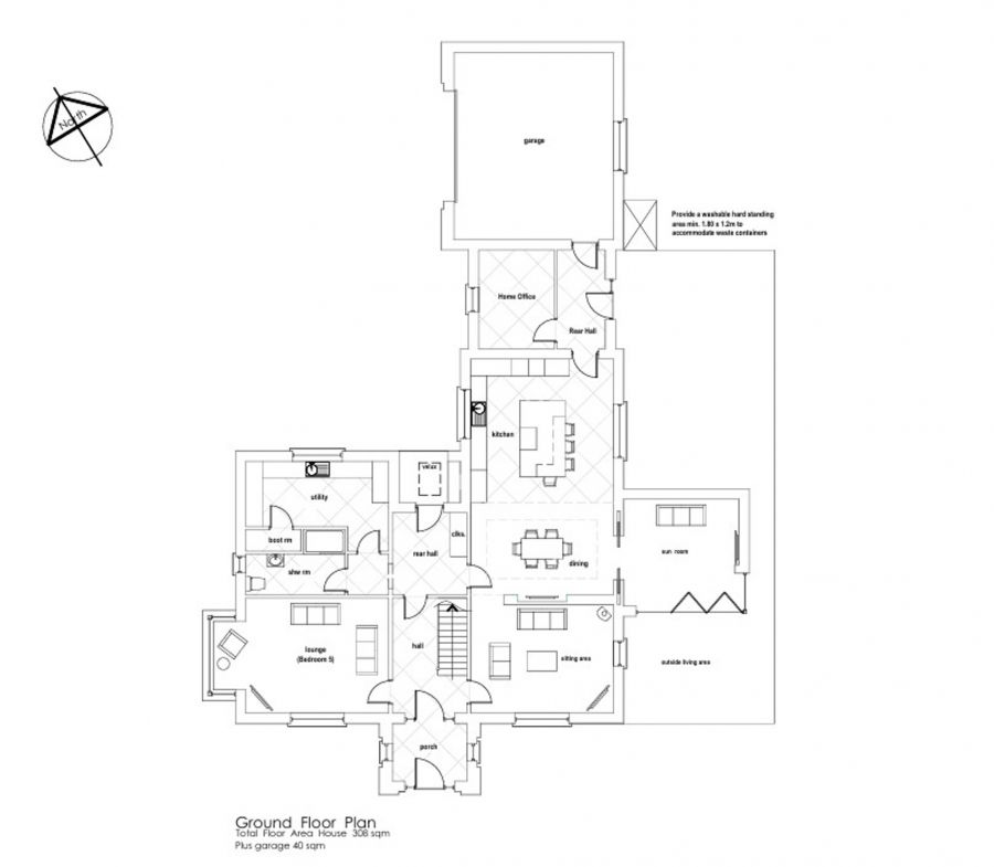
Full planning permission for a 3,315 sq.ft. detached country style home

 

The Old Kilmore Road has become synonymous with its array of quality homes for exclusive living 

 

located approximately 2 miles from Moira Village with all its amenities as well as good road networks including the M1 interchange, Moira primary school and Rowandale integrated primary school

 

Planning application number LA08/2025/0204/RM

 

Viewing available or by appointment

 

 

 

Broadband Speed Availability

Ultrafast

Potential Speeds for NE of 107b Old Kilmore Road

Max Download
1000
Mbps
Max Upload
300
Mbps
The speeds indicated represent the maximum estimated fixed-line speeds as predicted by Ofcom. Please note that these are estimates, and actual service availability and speeds may differ.

Property Location

Show Map

Mortgage Calculator

Disclaimer: The following calculations act as a guide only, and are based on a typical repayment mortgage model. Financial decisions should not be made based on these calculations and accuracy is not guaranteed. Always seek professional advice before making any financial decisions.

Directions

From Moira Village, take Old Kilmore Road for approximately 2 miles and the site are located along a concrete land on the right hand side - see FOR SALE board

Contact Agent

Contact Stewart Estate Agents

Contact Stewart Estate Agents

Request More Information
Requesting Info about...
Building site with FPP, Ne Of 107B Old Kilmore Road, Moira, BT67 0NA Building site with FPP, Ne Of 107B Old Kilmore Road, Moira, BT67 0NA

By registering your interest, you acknowledge our Privacy Policy
Ask Holmes
Ask Holmes
Let's find your next home

Are you sure you want to reset the chat?

Checking API...