5 Bed Detached House
Dundarave, 53 Malone Park
Malone, Belfast, BT9 6NN
offers over
£1,650,000
Key Features & Description
A Superbly Appointed Listed Detached Residence in one of South Belfast's Most Sought After Residential Addresses
Magnificent Private Corner Site with Mature Landscaped South Facing Gardens
Retaining a Host of Original Period Features
Gracious Reception Hall with open fireplace
Three Reception Rooms plus Home Office
Superb Kitchen with Aga Range, Island Unit and Granite Worktops
Separate Utility Room and Cloakroom
Five Spacious Bedrooms [Principal Bedroom with Ensuite Bathroom and Large Dressing Area ]
Two Family Bathrooms
Oil Fired Central Heating/ fully double glazed windows
Security Alarm System Installed
Adjoining Garage and Storage Facilities
Twin Entrance Gates with Electric Gates and Video Entry System
Surrounded By A Wealth Of Local Amenities, Facilities And Local Transport Links To The City Centre And Beyond And Minutes From The Bustling Lisburn Road, Shops, Boutiques, Restaurants And Coffee Shops
Easy Access to Belfast"s Leading Primary And Secondary Schools, Convenient To Royal And City Hospitals, Queens University And Belfast City Centre
Viewing by Private Appointment
Description
Malone Park is undoubtedly one of Belfast's most desirable residential addresses. This tree lined avenue has an impressive pillared entrance from the Malone Road and pedestrian access to both the Lisburn Road and Balmoral Avenue. While this mature setting enjoys considerable privacy and seclusion, the location could not be more convenient for access to the City Centre, Lisburn Road, main arterial transport routes, leading schools and academic institutions, shops, parks, and golf clubs.
Dundarave at No. 53 Malone Park was originally designed in the Arts and Crafts manner in 1901 by Vincent Craig. This most attractive listed detached residence occupies a magnificent private site with landscaped gardens laid in lawns, shrubs and mature trees. The rear garden and patio area benefit from a southerly orientation.
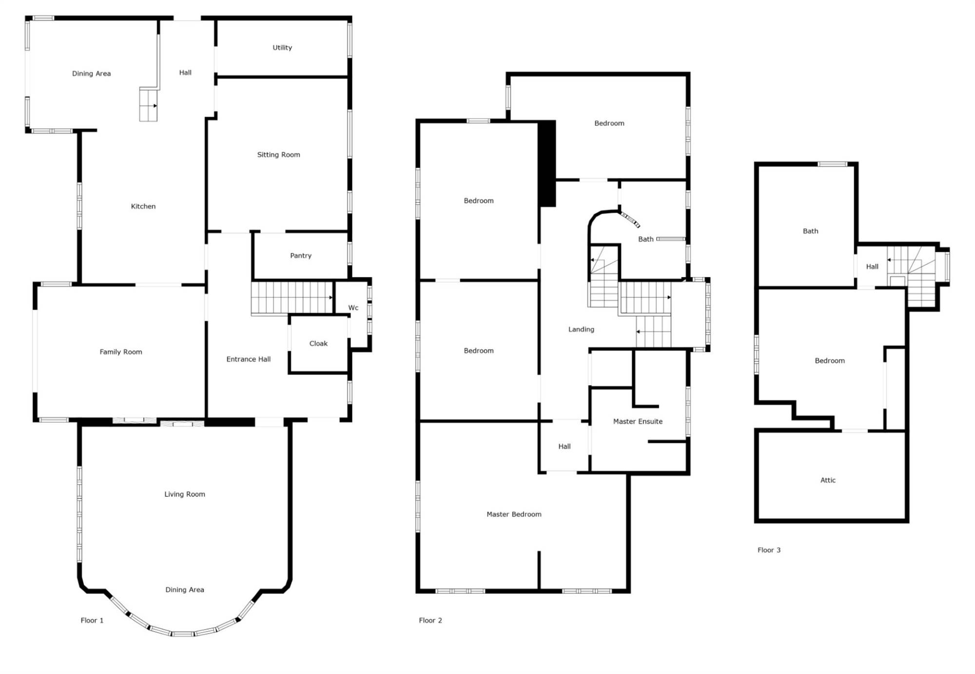
The property offers well proportioned, spacious accommodation complemented by many fine architectural features synonymous with a house built in this era. The accommodation comprises, on the ground floor, a gracious entrance hall with cloakroom, high quality kitchen with separate dining area, drawing room (with formal dining area), family room, study/home office, pantry and utility room. To the first and second floors there are five spacious bedrooms (the principal bedroom with ensuite and dressing area) and two family bathrooms
All in all, Dundarave is a handsome period residence, redesigned for modern living, occupying one of the most attractive sites in Malone Park.
Viewing is by private appointment only and is highly recommended.
.
Malone Park is undoubtedly one of Belfast's most desirable residential addresses. This tree lined avenue has an impressive pillared entrance from the Malone Road and pedestrian access to both the Lisburn Road and Balmoral Avenue. While this mature setting enjoys considerable privacy and seclusion, the location could not be more convenient for access to the City Centre, Lisburn Road, main arterial transport routes, leading schools and academic institutions, shops, parks, and golf clubs.
Dundarave at No. 53 Malone Park was originally designed in the Arts and Crafts manner in 1901 by Vincent Craig. This most attractive listed detached residence occupies a magnificent private site with landscaped gardens laid in lawns, shrubs and mature trees. The rear garden and patio area benefit from a southerly orientation.
The property offers well proportioned, spacious accommodation complemented by many fine architectural features synonymous with a house built in this era. The accommodation comprises, on the ground floor, a gracious entrance hall with cloakroom, high quality kitchen with separate dining area, drawing room (with formal dining area), family room, study/home office, pantry and utility room. To the first and second floors there are five spacious bedrooms (the principal bedroom with ensuite and dressing area) and two family bathrooms
All in all, Dundarave is a handsome period residence, redesigned for modern living, occupying one of the most attractive sites in Malone Park.
Viewing is by private appointment only and is highly recommended.
.
Rooms
ENTRANCE HALL:
Hardwood door with glazed fanlight to entrance hall with attractive Feature Fireplace with open fire, tiled floor, cornice ceiling
CLOAKROOM:
Low flush WC and wash hand basin
DRAWING ROOM: 23' 3" X 23' 0" (7.09m X 7.01m)
Attractive Feature Sandstone Fireplace, open fire, views over rear patio and side garden
FAMILY ROOM: 18' 4" X 13' 8" (5.59m X 4.17m)
Original Fireplace with open fire, tiled hearth, oak flooring, sliding doors to rear patio
KITCHEN: 16' 8" X 13' 3" (5.08m X 4.04m)
Range of High and Low Level units, Belfast Sink, Oil Fired Aga Range, integrated dishwasher, granite worktops, island unit, tiled floor, steps to/open to -
DINING ROOM: 20' 2" X 12' 0" (6.15m X 3.66m)
Tiled floor, double doors to rear
HOME OFFICE: 16' 6" X 13' 8" (5.03m X 4.17m)
Oak flooring and built in bookcase
PANTRY:
Belfast Sink, range of units
UTILITY ROOM: 15' 2" X 6' 4" (4.62m X 1.93m)
High and Low Level units, Belfast sink, plumbed washing machine, tumble dryer, cooker and recess for fridge freezer
BEDROOM (1): 22' 9" X 18' 6" (6.93m X 5.64m)
Oak flooring, range of fitted units and large dressing area
ENSUITE:
White suite, panelled bath, mixer taps, telephone hand shower, walk in shower enclosure, low flush WC, wash hand basin with vanity unit
BEDROOM (2): 19' 4" X 11' 3" (5.89m X 3.35m)
Pedestal wash hand basin
BEDROOM (3): 16' 8" X 13' 9" (5.08m X 4.19m)
Oak flooring, pedestal wash hand basin
BEDROOM (4): 13' 8" X 13' 4" (4.17m X 3.96m)
Pedestal wash hand basin
BATHROOM:
Free standing bath, mixer taps, telephone hand shower, shower enclosure, low flush WC, pedestal wash hand basin
LANDING:
Airing cupboard
BEDROOM (5): 15' 8" X 13' 3" (4.78m X 4.04m)
Fitted Units, access to roofspace
BATHROOM:
White suite, panelled bath, mixer taps, low flush WC, pedestal wash hand basin
Rear Yard, range of storage units. Magnificent site with large gardens to side and patio to rear
ATTACHED GARAGE 19' 8" X 15' 1" (5.99m X 4.60m)
Broadband Speed Availability
Potential Speeds for 53 Malone Park
Max Download
1000
Mbps
Max Upload
220
MbpsThe speeds indicated represent the maximum estimated fixed-line speeds as predicted by Ofcom. Please note that these are estimates, and actual service availability and speeds may differ.
Property Location
Mortgage Calculator
Directions
Off Malone Road
Contact Agent
Contact Simon Brien (South Belfast)
Request More Information
Requesting Info about...
Dundarave, 53 Malone Park, Malone, Belfast, BT9 6NN
By registering your interest, you acknowledge our Privacy Policy
By registering your interest, you acknowledge our Privacy Policy