Contact Agent

Contact Simon Brien (South Belfast)

Contact Simon Brien (South Belfast)

3 Bed Detached Bungalow

7 Malone Heights

Malone, Belfast, BT9 5PG

offers over £325,000
  • Status For Sale
  • Property Type Detached Bungalow
  • Bedrooms 3
  • Receptions 2
  • Heating OFCH
  • EPC Rating F31 / D65
  • Stamp Duty
    Higher amount applies when purchasing as buy to let or as an additional property
    £6,250 / £22,500*
  • Typical Mortgage
    Click price to use our mortgage calculator
EPC Rating

Key Features & Description

Attractive Detached Bungalow
Requires Significant Modernisation Throughout
Three Bedrooms
Two Reception Rooms
Fitted Kitchen
Bathroom In Coloured Suite
Oil Fired Central Heating
PVC Double Glazing
Large Attached Garage
Driveway Parking
Enclosed Gardens to the Rear
Popular & Convenient Location Off Upper Malone Road
Description
Malone Heights is exceptionally well located off the Upper Malone Road within walking distance of local amenities, and transport routes connecting Belfast City Centre and further afield.

This particular detached bungalow requires significant modernisation and provides a layout of, three bedrooms, two reception rooms, kitchen and bathroom. In addition, the property benefits from a pleasant enclosed rear garden, large attached garage and generous driveway parking

Likely to be of interest to those downsizing within the area, or to the young professional or family viewing is by appointment through our South Belfast office on 028 9066 8888.

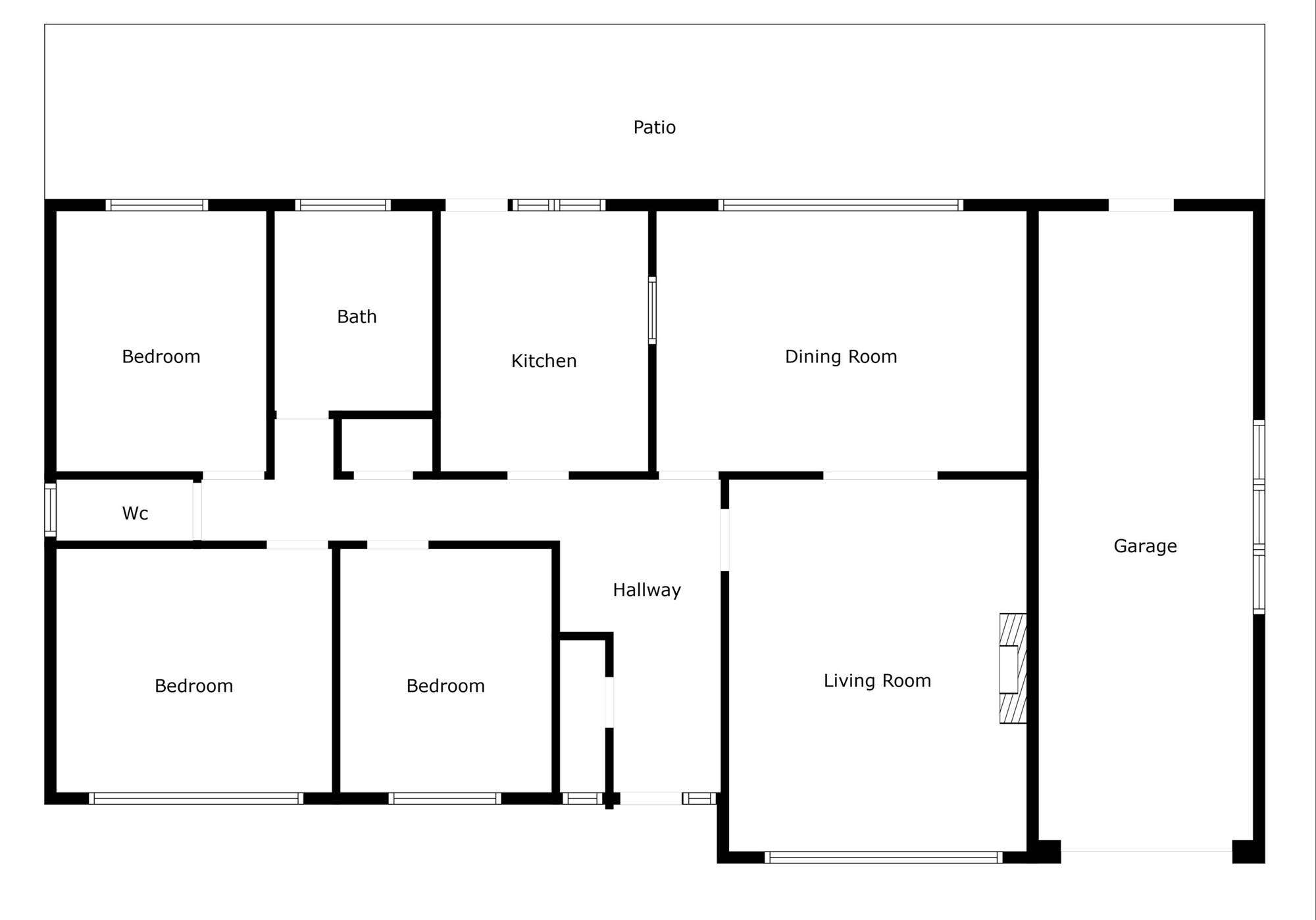
Rooms

ENTRANCE HALL: PVC to Entrance Hall, Cloaks Cupboard
LIVING ROOM: 15' 9" X 12' 8" (4.80m X 3.86m)
DINING ROOM: 15' 9" X 11' 3" (4.80m X 3.43m)
KITCHEN: 11' 4" X 8' 9" (3.45m X 2.44m) High and Low Level Units, inset sink, door to rear garden
BEDROOM (1): 11' 9" X 10' 9" (3.58m X 3.28m)
BEDROOM (2): 11' 2" X 8' 8" (3.40m X 2.64m)
BEDROOM (3): 10' 9" X 8' 9" (3.28m X 2.67m)
BATHROOM: Coloured suite with panelled bath, mixer taps, low flush WC, pedestal wash hand basin
ADDITIONAL WC: Low flush WC. Hotpress. Access to Roofspace via pull down ladder
Gardens to rear, driveway parking
DETACHED GARAGE: 28' 9" X 9' 4" (8.76m X 2.84m) Utility area

Broadband Speed Availability

Ultrafast

Potential Speeds for 7 Malone Heights

Max Download
1000
Mbps
Max Upload
220
Mbps
The speeds indicated represent the maximum estimated fixed-line speeds as predicted by Ofcom. Please note that these are estimates, and actual service availability and speeds may differ.

Property Location

Show Map

Mortgage Calculator

Disclaimer: The following calculations act as a guide only, and are based on a typical repayment mortgage model. Financial decisions should not be made based on these calculations and accuracy is not guaranteed. Always seek professional advice before making any financial decisions.

Directions

Off Upper Malone Road

Contact Agent

Contact Simon Brien (South Belfast)

Contact Simon Brien (South Belfast)

Request More Information
Requesting Info about...
7 Malone Heights, Malone, Belfast, BT9 5PG 7 Malone Heights, Malone, Belfast, BT9 5PG

By registering your interest, you acknowledge our Privacy Policy