Contact Agent

Contact McGeowns

Contact McGeowns

4 Bed Semi-Detached House

94 Marlborough Park Central

Malone Road, Belfast, BT9 6HP

asking price £650,000
  • Status Sale Agreed
  • Property Type Semi-Detached
  • Bedrooms 4
  • Receptions 3
  • EPC Rating C70 / C75
  • Stamp Duty
    Higher amount applies when purchasing as buy to let or as an additional property
    £22,500 / £55,000*
  • Typical Mortgage
    Click price to use our mortgage calculator
EPC Rating

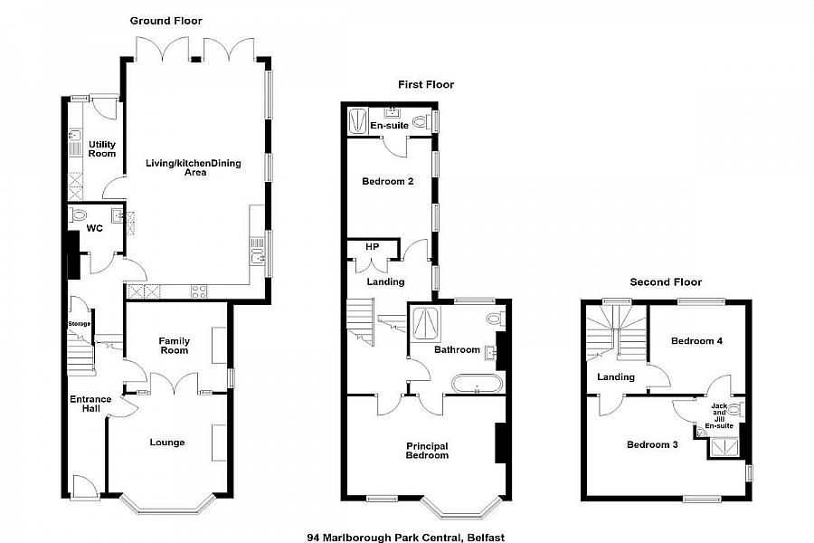
Key Features & Description

Exceptional Victorian Designed Period Semi Detached Home
Sympathetically Modernised and Refurbished by Current Owners Blending Modern Living Whilst Retaining All of its Period and Charm
Refurbishment to Include, Rewiring, Replumbing, Insulation, Damp Proof Course and Extension to Rear
Entrance Hall With Cornicing and Victorian Black and White Chequer Tiled Floor
Cloakroom With Wall Panelling and W.C, Understairs Cloaks Storage
Lounge With Bay Window, Herringbone Oak Floor and Attractive Stone Fireplace With Slate Insert and Granite Hearth
Double Doors from Lounge to Family Room with Matching Herringbone Oak Flooring, Wood Burning Stove With Brick Inset
Extended Open Plan Kitchen, Living and Dining Area with Bi-folding Doors Leading to South facing Enclosed Rear Garden
Modern Luxury Fitted Kitchen With Full Range of Light Grey Gloss Units, `Corrian' Worktop and Range of Built in Bosch Appliances, Separate Fully Fitted Utility Room
First Floor Return with Double Linen Cupboard, Bedroom 2 with Ensuite Shower Room
Master Bedroom on First Floor with Bay Window and Private Access to Luxury Main Family Bathroom
Luxury Bathroom With Access from Landing and Direct Secondary Access to Master Bedroom, 'Burlington' Suite with Traditional Style Accessories and Including Slipper Bath and Separate Fully Tiled Shower Cubicle With Drencher Shower Head, Feature Floor Tiling
Two Further Bedrooms on Second floor with `Jack and Jill' Shower Room
PVC Double Glazed Windows, Sliding Sash to Front Elevation, Gas Fired Central Heating, Underfloor to Extension
Security Alarm System and CCTV
Tarmac Driveway Parking to Front of Property With Boundary Fencing and Front Railing, Black and White Mosaic Period Tiles to Pathway
Delightful Enclosed and Private South Facing Landscaped Rear Garden With Stone Patio and Sitting Area
Description

Occupying a prime location within Marlborough Park Central, this exceptional period semi-detached property is an excellent family home blending modern day living and also exuding character and charm.

The current owners have completely modernised and refurbished yet sympathetically retained various period detailing throughout.

The property has been extended and offers generous accommodation of approx. 2,500 Sqft providing ample space to suit modern day living; to include two separate reception rooms and extended open plan/kitchen/dining with living area, utility room, and cloakroom on the ground floor. Upstairs there are four Double Bedrooms over two floors, all with direct access to Ensuite Facilities, and Master with connecting access to the Luxury Family Bathroom. The property benefits from double glazed widows with sliding sash windows to the front elevation and gas fired central heating (underfloor to the ground floor extension).

Externally the property offers driveway parking to the front and delightful landscaped and private south facing garden to the rear, perfect for entertaining with direct access from the open plan Kitchen, Living and Dining Area via bi-folding doors.

Marlborough Park Central is located between the Malone and Lisburn Roads and is highly regarded for its prime location, with a vast array of boutiques and restaurants on its doorstep. The property is only a short walk to Cranmore Park and also within walking distance to leading primary and grammar schools, making it highly desirable for growing families.

All in all a home of exceptional quality in a highly regarded and most convenient residential area. Viewing is by private appointment and is highly recommended.

Rooms

Hardwood Front Door
Entrance Hall

Cornice ceiling, Victorian Black and White Chequer Tiled Floor. Cloaks storage under stairs.

Cloakroom

Low flush W.C, vanity unit, half panel walls, cornice ceiling, Victorian Black and White Chequer Tiled Floor.

Lounge

Stone fireplace with slate inset and granite hearth. Built in bookcase, herringbone Oak floor, cornice ceiling. Double doors to...

Family Room

Wood burning stove with brick inset and granite hearth. Herringbone Oak floor, cornice ceiling.

Extended Open Plan Kitchen/Living/Dining

Full range of high and low level grey gloss units, 'Corrian' speckled worktop, 'Blanco' 1½ stainless steel sink unit, integrated 'Bosch' dishwasher, 'Bosch' 4 ring ceramic hob, stainless steel extractor hood, grey glass splashback, 'Bosch' stainless steel oven and combi, integrated fridge/freezer, tiled floor, vaulted roof lantern. Bi-folding doors to South facing rear garden.

Utility Room

Range of high and low level units, 'Franke' single drainer stainless steel sink unit, integrated full length freezer, plumbed for washing machine and tumble dryer, tiled floor. Glazed door to rear.

First Floor Return
Landing

Cornice ceiling. Access to fully floored roofspace. Double linen cupboard, shelved and gas fired boiler.

Bedroom One

Cornice ceiling.

Fully Tiled Ensuite

Fully tiled shower cubicle with drencher shower head and secondary shower attachment, vanity unit, low flush W.C, chrome heated towel rail.

First Floor
Luxury Family Bathroom

'Slipper' bath with telephone hand shower, fully tiled shower cubicle with drencher shower head and secondary shower attachment, 'Burlington' wash hand basin, low flush W.C, half panelled walls, feature floor tiling. Connecting door to...

Principal Bedroom

Cornice ceiling.

Second Floor
Bedroom Three

Gloss wood strip floor. Door to 'jack and jill' ensuite.

Ensuite Shower Room

Fully tiled shower cubicle with drencher shower head and secondary shower attachment, low flush W.C, wash hand basin, chrome heated towel rail, part tiled walls, tiled floor.

Bedroom Four

Door to 'jack and jill' ensuite.

Outside

Private and enclosed South facing landscaped rear garden, stone patio area, artificial lawn, flower beds, trees and shrubs, boundary fencing, outside lighting.

Front garden including tarmac driveway parking with 'Rhino' telescopic security bollard, front boundary wall with railings above, artificial lawn, and black and white tiled path leading to front door.

Broadband Speed Availability

Ultrafast

Potential Speeds for 94 Marlborough Park Central

Max Download
10000
Mbps
Max Upload
10000
Mbps
The speeds indicated represent the maximum estimated fixed-line speeds as predicted by Ofcom. Please note that these are estimates, and actual service availability and speeds may differ.

Property Location

Show Map

Mortgage Calculator

Disclaimer: The following calculations act as a guide only, and are based on a typical repayment mortgage model. Financial decisions should not be made based on these calculations and accuracy is not guaranteed. Always seek professional advice before making any financial decisions.

Contact Agent

Contact McGeowns

Contact McGeowns

Request More Information
Requesting Info about...
94 Marlborough Park Central, Malone Road, Belfast, BT9 6HP 94 Marlborough Park Central, Malone Road, Belfast, BT9 6HP

By registering your interest, you acknowledge our Privacy Policy
Ask Holmes
Ask Holmes
Let's find your next home

Are you sure you want to reset the chat?

Checking API...