Contact Agent

Contact McGeowns

Contact McGeowns

6 Bed Semi-Detached House

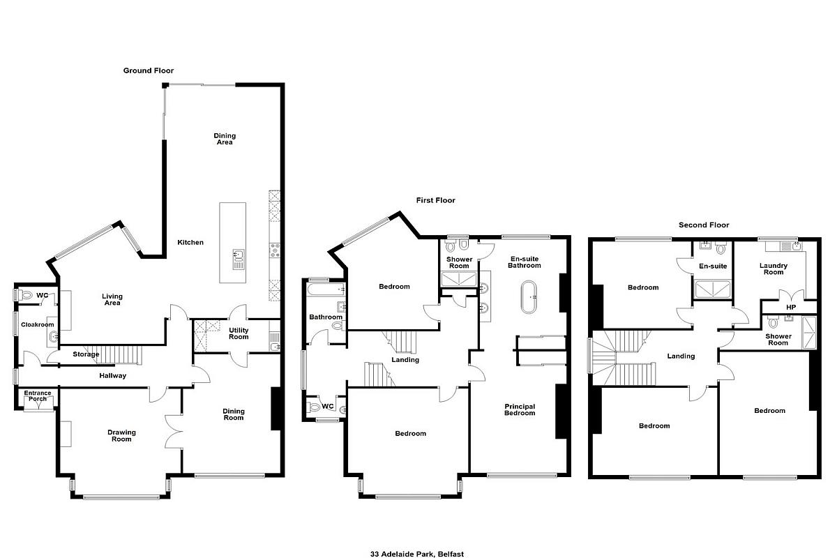
33 Adelaide Park

Malone, Belfast, BT9 6FY

offers around £1,395,000
  • Status For Sale
  • Property Type Semi-Detached
  • Bedrooms 6
  • Receptions 3
  • EPC Rating D64 / C78
  • Stamp Duty
    Higher amount applies when purchasing as buy to let or as an additional property
    £83,250 / £153,000*
  • Typical Mortgage
    Click price to use our mortgage calculator
EPC Rating

Key Features & Description

Distinctive Period Semi-Detached Residence
Located on the Prestigious Tree-Lined Adelaide Park, Off Malone Road
Sympathetically Renovated and Extended to a High Specification
Retention of Many Original Architectural Features
Entrance Vestibule and Porch, Leading to Spacious Reception Hallway
Formal Drawing Room and Dining Room With Period Features
Bespoke Contemporary Kitchen With Access to South-Facing Garden and Patio
Six Bedrooms Over First and Second Floors
Principal Bedroom With Dressing Room/Ensuite Bathroom, and Shower Room
Family Bathroom & W.C, Shower Room, and Additional Ensuite Shower Room
Downstairs Cloakroom and Utility room
Private Enclosed South-Facing Rear Garden
Contemporary Bespoke Garden Room With W.C
Walking Distance to Leading Schools, Shops and Recreational Amenities
Description

Nestled along the leafy, tree-lined avenue of Adelaide Park just off the prestigious Malone Road in South Belfast, this beautifully presented large semi-detached residence offers a rare opportunity to acquire this exceptional home. Occupying a prime location in a conservation area the property is within walking distance to schools, retail and recreational facilities. This superb period house has been dramatically redesigned and imaginatively extended to offer a modern, contemporary plan that enhances the original architectural charm. Upon entering the original reception hallway, the tone of elegance is immediately established throughout the house.

To the front the formal drawing room and dining room provide a unique combined large space for family gatherings and entertaining. The blend of minimalist design and original features elevates the character of these rooms. To the rear of the property, a contemporary kitchen featured in the best of Kitchens & Bathrooms dominates the ground floor, creating an unbelievably bright and social living space. Sliding glass doors provide access to a floodlit, private landscaped oasis. The upper floors provide outstanding accommodation with six bedrooms arranged between the first and second floors and enjoy a flooding of natural light. The principle bedroom incorporates a luxurious ensuite with a separate shower facility. These areas provide both modern and minimalistic detail, culminating in a large stone Agape bath as the central feature.

Upper floor comprises a practical utility room, a beautifully appointed family bathroom, three additional bedrooms one of which has an ensuite with shower room.

Modern upgrades and high quality finishes ensure the property exceeds contemporary living expectations.

This exceptional home offers elegant, spacious, innovative, and exciting accommodation allowing for a turnkey opportunity.

Rooms

Entrance

Original hardwood storm split door.

Entrance Vestibule

Original ceramic tiled floor. Original inner door with leaded glazed panels.

Entrance Porch

Feature stained glass window. Ceramic tiled floor. Vertical radiator.

Spacious Entrance Hall

Oak strip floor. Herringbone panelling to stairs, under stairs storage.

Cloakroom

Contemporary freestanding wash hand basin with marble countertop, circular countertop sink and chrome wall mounted mixer tap. Walnut strip floor. Walk in understairs storage. Vertical radiator.

Separate W.C

Feature panelled wall. Low flush W.C.

Drawing Room

Stunning late 19th/early 20th century Italian Carrara marble fireplace with carved bracket corbels, egg and dart moulding and central keystone, granite inset and hearth. Cornice ceiling. Recessed ceiling spotlights. Floor uplighter spotlights. Walnut strip floor. Vertical radiators x3.

Glazed French doors leading to...

Formal Dining Room

Cornice ceiling. Vertical radiators x2. Walnut strip floor.

Door leading to Utility Room/Pantry, access through to Kitchen.

Morning Room

Contemporary integrated 'Bio-Ethanol' feature fireplace. Built in display with glass shelving. Cornice cornicing, picture rail. Porcelain tiled floor.

Extended Open Plan Kitchen and Dining Area

Bespoke designer kitchen by 'Interior 360' featuring an extensive range of high and low level high white gloss units, contrasting 'Corian' worktops in 'Basalt Black', and glass splashback. Extending to a large focal island with feature waterfall edge worktops, and breakfast sitting area. Stainless steel undermount 1½ sink with 'Quooker' hot water tap and additional mixer tap. Full range of integrated appliances including; 'Siemens' fridge/freezer, 'Siemens' dishwasher, 'Siemens' induction hob with concealed extractor fan, eye level 'Neff' oven and combi oven with plate warmer, and wine fridge. Built in display with glass shelving. Recessed spotlights. Porcelain tiled floor. Feature rooflight.

Panoramic three panel windows with sliding doors to rear garden.

Pantry/Utility Room

Low level units with worktop surfaces, stainless steel sink unit with mixer taps, additional built in cupboards with space for 'American' style fridge/freezer. Recessed spotlights.

First Floor Return

Original feature stained glass window. Recessed spotlights. Porcelain tiled floor.

Fully Tiled Family Bathroom

Panelled bath with shower over. Floating Marble sink with mounted mixer taps. Wall hung W.C, and bidet, with black granite back panel and shelf. Recessed spotlights. Porcelain tiled floor. Vertical radiator.

Separate W.C

Low flush W.C, wash hand basin with mixer taps. Porcelain tiled floor.

First Floor Landing

Picture rail. Recessed ceiling spotlights. Low level spotlights up stairs. Built in cupboard. Vertical radiator.

Bedroom One

Cornice ceiling, picture rail. Recessed spotlights. Oak hardwood floor.

Principal Bedroom

Cornice ceiling, picture rail. Recessed spotlights. Oak hardwood floor.

Luxury Ensuite Bathroom/Dressing Area

Focal freestanding stone 'Agape' egg shape bath with floor mounted freestanding mixer tap. His and hers countertop circular sinks with 'Dekton' composite countertop and feature splashback wall, illuminated back lit mirrors x2. Built in sliding robes. Floating storage cabinets.

Leading to...

Ensuite Shower Room

Walk in shower enclosure with 'Dekton' composite wall tiles, drencher shower head and hand shower. Wall hung W.C and bidet with black granite back panel and shelf. Panelled ceiling with integrated spotlights.

Bedroom Three

Cornice ceiling, picture rail. Recessed spotlights. Oak hardwood floor.

Second Floor Return

Original feature stained glass window.

Second Floor

Picture rail. Recessed ceiling spotlights. Low level spotlights up stairs. Vertical radiator.

Bedroom Four

Oak hardwood floor.

Bedroom Five

Oak hardwood floor.

Contemporary Shower Room

Walk in shower enclosure with drencher shower and hand shower, vanity wash hand basin with storage below, wall hung W.C. Marble effect tiled walls and tiled floor. Recessed spotlights. Extractor fan.

Utility Room

Range of low level units with worktop surfaces, stainless steel sink unit with mixer taps, plumbed for washing machine and tumble dryer. Built in press with radiator. Vertical radiator. Recessed spotlights.

Bedroom Six

Built in wardrobes. Oak hardwood floor. Vertical radiator. Recessed spotlights.

Contemporary Ensuite Shower Room

Walk in shower enclosure with drencher shower and hand shower, vanity wash hand basin with storage below, wall hung W.C, heated towel rail. Fully panelled walls and ceiling. Recessed spotlights. Extractor fan. Velux window.

Roofspace

Accessed via slingsby ladder. Partially floored. Insulated. Light.

Front Garden and Driveway

Front garden in lawns with a range of mature trees and shrubs, all fully enclosed with boundary hedging, cast iron railings and electric gates to front entrance. Ample tarmac driveway parking with space for multiple cars. Pillars with timber fencing and gate leading to...

South Facing Garden

Extensive South facing gardens to the rear including vast patio and sitting areas in Portuguese marble paving, feature built-in seating area with integrated planters, substantial lawn area, all bordered in a mix of mature trees and shrubs, surrounding timber fencing. Garden illuminated with outside lights.

Paved path to leading to...

Contemporary Bespoke Garden Room

Feature panel wall, porcelain tiled floor, gas heating (underfloor) and electric, recessed spotlights. Panoramic sliding doors to garden.

Additional storage room.

Garden Room W.C

Vanity unit wash hand basin with storage below, illuminated back lit mirror, low flush W.C, recessed spotlights, extractor fan, porcelain tiled floor.

Outhouse

'Worchester' gas boiler x2. Master hot water cylinder.

Broadband Speed Availability

Ultrafast

Potential Speeds for 33 Adelaide Park

Max Download
1800
Mbps
Max Upload
220
Mbps
The speeds indicated represent the maximum estimated fixed-line speeds as predicted by Ofcom. Please note that these are estimates, and actual service availability and speeds may differ.

Property Location

Show Map

Mortgage Calculator

Disclaimer: The following calculations act as a guide only, and are based on a typical repayment mortgage model. Financial decisions should not be made based on these calculations and accuracy is not guaranteed. Always seek professional advice before making any financial decisions.

Contact Agent

Contact McGeowns

Contact McGeowns

Request More Information
Requesting Info about...
33 Adelaide Park, Malone, Belfast, BT9 6FY 33 Adelaide Park, Malone, Belfast, BT9 6FY

By registering your interest, you acknowledge our Privacy Policy
Ask Holmes
Ask Holmes
Let's find your next home

Are you sure you want to reset the chat?

Checking API...