30 Marlborough Park South
Malone, Belfast, BT9 6HR

Key Features & Description
Occupying a prime location within Marlborough Park South, this delightful period semi-detached residence is an excellent family home exuding character and charm.
The current owners have sympathetically retained all the original period detailing throughout. The house dates from 1884 and the original Victorian marble fireplaces, cornicing and ceiling roses have been retained in all rooms.
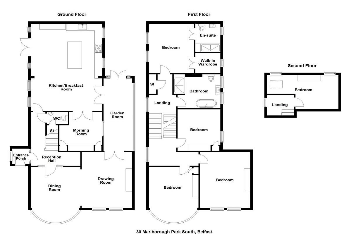
The internal accommodation comprises on the ground floor a tiled entrance porch and entrance hall, large south-facing drawing room/dining room, leading to a garden room and a delightful courtyard. Located off the kitchen, there is also a good-sized breakfast room/study. In addition, over the first and second floors there are 5 generous double bedrooms, one with an ensuite shower room and walk-in wardrobe, as well as a family bathroom.
The property is complimented by mature and private gardens to both the front and side, with mature planting, patio and seating areas. There are entrance gates and a stoned driveway to the front, with parking area for several cars.
Marlborough Park South is located between the Malone and Lisburn Roads and is highly regarded for its prime location, with a vast array of boutiques and restaurants on its doorstep. The property is also within walking distance of leading primary and grammar schools, making it highly desirable for growing families.
Rooms
Hardwood front door
Tiled Entrance Porch, Inner glazed door leading to..
Tiled floor, corniced ceiling, ceiling rose and understairs storage
Wash hand basin, low flush W.C, tiled floor.
Etched Glazed Door and side panels leading to...
Bay window and window seating, corniced ceiling and ceiling rose, open detailed arch leading to...
Marble fireplace with gas coal effect fire, slate inset and hearth, corniced ceiling and ceiling rose. Double doors to...
Glazed Vaulted atrium, tiled floor, double doors to rear patio and sitting area. Double doors leading to...
Full range of fitted bespoke hand painted units, granite worktop, old Belfast sink, `Britannia' range oven with 4 ring gas hob with range hood surround and storage, integrated washing machine and dishwasher, open shelving, tiled floor, Island unit with breakfast bar, integrated `Bosch' microwave, speckled granite worktop, integrated freezer. Tiled Floor.
Marble fireplace with gas stove and slate hearth, double doors to side garden and patio area.
Tiled floor, built in storage cupboards
Hotpress with radiator.
Free standing rolltop bath with telephone hand shower, vanity unit with tiled splashback, high flush W.C, feature fireplace, walk in fully tiled double shower area, traditional bell shaped drencher shower head, corniced ceiling, mirrored wall, tiled floor.
Access to roofspace with folding ladder
Double doors to Dressing Area with fitted hanging space
Double doors to Ensuite Shower Room: Walk in double shower area, traditional bell shaped drencher showerhead, decorative low flush wc, pedestal wash hand basin, tiled floor
Corniced ceiling
Oak strip flooring, attractive fireplace, built in shelving
Bay window with window seating and storage
Corniced ceiling, marble fireplace and built in cupboard
Oak strip floor. Marble fireplace with tiled inset and hearth
Attractive cast iron fireplace. Velux window.
Built in study area with desk and shelving
Well-tended secluded gardens with mature planting to front and rear. Paved Sun Terrace to side with lawns and rear and front sitting areas. Garden shed and enclosed bin storage.
Double entrance gates leading to Stoned Driveway Parking for several cars to front.
Broadband Speed Availability
Potential Speeds for 30 Marlborough Park South
Property Location

Mortgage Calculator
Contact Agent

Contact McGeowns

By registering your interest, you acknowledge our Privacy Policy