Contact Agent

Contact McGeowns

Contact McGeowns

4 Bed Semi-Detached House

48 Harberton Park

Malone, Belfast, BT9 6TT

offers around £635,000
  • Status For Sale
  • Property Type Semi-Detached
  • Bedrooms 4
  • Receptions 2
  • EPC Rating D66 / D68
  • Stamp Duty
    Higher amount applies when purchasing as buy to let or as an additional property
    £21,750 / £53,500*
  • Typical Mortgage
    Click price to use our mortgage calculator
EPC Rating

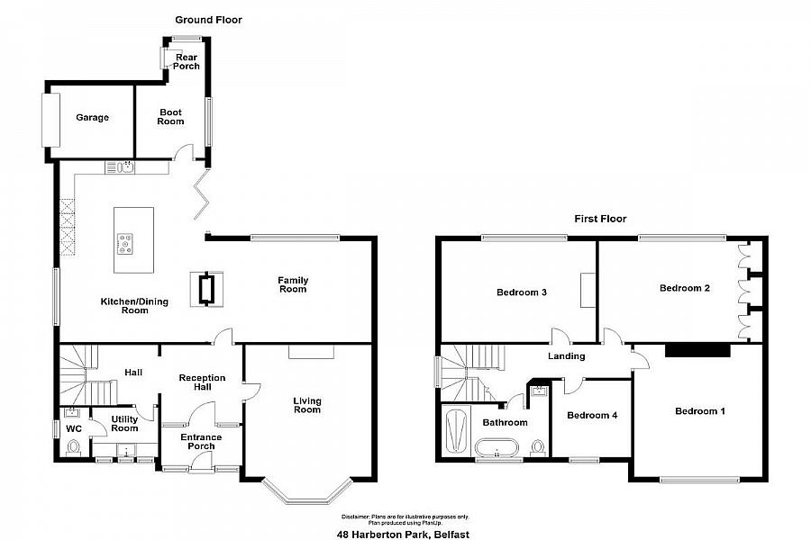
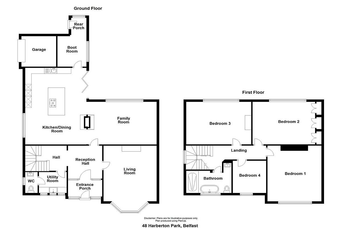
Key Features & Description

Stunning Modernised Semi Detached Home on Generous Corner Site in Convenient Malone Location
Entrance Porch Leading to Spacious Entrance Hall With Hardwood Flooring and Panelled Walls, Utility Room and Cloakroom Off
Good Sized Living Room With Attractive Carved Wooden Fireplace and Tiled Inset and Hearth, Bay Window
Family Room With Herringbone Floor and Open Double Aspect Fireplace With Multi Fuel Stove Leading to Open Plan Kitchen and Dining Area
Bespoke Fully Fitted Kitchen With Full Range of Appliances, stone worktop, extensive island unit, glazed roof lantern providing extra natural light and concertina doors leading to private patio and sitting area with matching slate floor
Fully Fitted Boot Room With Slate Floor and Fitted Bespoke Bench, Cupboards and Mesh Hanging Space
Rear Hall and Rear Door Providing Access From and to Parking Area
Four First Floor Bedrooms to Include Master Bedroom With Wall to Wall Fitted Robes
Luxury Family Bathroom With Free Standing Bath and Brushed Brass Floor Mounted Taps, Vanity Unit with Illuminated Wall Mirror Above and Double Walk in Shower Area With Feature Tiling and Brushed Brass Fittings
Gas Fired Central Heating, Double Glazed Windows
Large Floored Roofspace Currently Used as Storage With Excellent Potential for Further Accommodation
Attached Garden/Garage Store With Up and Over Door
Generous and Private Corner Site in Lawns and Shrubs With Boundary Wall and Fencing and Entrance Gate Leading to Ample Driveway Parking From Side. Rear Private Slate Patio Area.
Description

Recently modernised and designed with both space and light in mind this attractive semi detached property occupies an excellent private corner site in this much sought after residential area. The generous mature gardens to front, side and rear further enhance this family home.

Careful attention has been paid to the interior presentation providing modern family living yet retaining many delightful original period features of the property.

The accommodation provides, enclosed entrance porch leading to entrance hall with hardwood floor and panelled walls, Living Room to front of property with Bay window and period fireplace, Family Room with open double fireplace with multi stove leading to Stunning Modern Bespoke fitted kitchen and Dining Area with concertina doors opening to slate patio and sitting area. In addition on the ground floor there is a spacious fully fitted Boot Room with access to rear parking area and Utility room and Cloakroom with wc. On the first floor there are 4 good sized bedrooms, Master with fitted wall to wall wardrobes and a Luxury Family Bathroom with a double walk in shower area with feature tiling.

Externally the home occupying a spacious corner site enjoys full privacy provided by external boundary wall and fencing and side gated entrance leading to parking area for several cars and garden store. The mature gardens are in lawns with stoned pathway and delightful slate patio and sitting area to rear easily accessed directly from the kitchen and dining area.

Rooms

Glazed Entrance Porch

Tiled floor. Inner glazed door.

Ground Floor
Entrance Hall

Hardwood strip floor. Panelled walls.

Inner Hall

Hardwood floor. Storage cupboard under stairs.

Utility Room

Granite worktop surfaces, old Belfast sink, storage, plumbed for washing machine. Tiled floor.

Cloakroom

Low flush W.C, heated towel rail, vanity unit and tiled floor.

Lounge

Carved wooden fireplace with decorative tiled inset and hearth. Cornice ceiling.

Living Room

Oak herringbone style floor. Cornice ceiling. Open aspect fireplace with multi stove through to...

Open Plan Kitchen and Dining

Bespoke full range of high and low level units, black 'Franke' single drainer 1½ bowl sink unit, 'Franke' boiling water tap, double pantry cupboard, integrated fridge/freezer, integrated 'Siemens' dishwasher, stone worktop.

Extensive island unit with stone worktop, black Neff ceramic hob and ceiling extractor fan, wine fridge, breakfast bar area.

Glazed roof lantern, Cornice ceiling, Concertina doors to rear patio with matching slate floor.

Bootroom

Bespoke fitted bench and seating area, cupboards and mesh hanging space. Slate floor.

Side entrance door and hall from outside parking area. Marble floor.

First Floor

Feature leaded window on stairs.

Bedroom One

Original cast iron fireplace with tiled hearth.

Bedroom Two

Access to floored roofspace (x3 Velux windows in roofspace).

Bedroom Three

Built in cupboard.

Master Bedroom

Wall to wall range of built in robes.

Luxury Family Bathroom

Freestanding bath with floor mounted brushed brass tap and telephone hand shower, vanity unit with illuminated wall mirror above, low flush W.C, double walk in shower area with feature tiling and brushed brass fittings to include drencher shower head and secondary shower attachment. Heated towel rail. Tiled floor.

Outside

Private and spacious mature corner site enclosed with boundary wall and fencing.

Lawns to front and side with stoned pathway and mature flower beds, outside tap and external traditional Belfast sink.

Electric entrance gate to side leading to stoned driveway parking.

Private rear slate patio and sitting area, boundary fencing and shrubbery.

Garage Store

Roller shutter door. Gas fired boiler.

Broadband Speed Availability

Ultrafast

Potential Speeds for 48 Harberton Park

Max Download
1000
Mbps
Max Upload
220
Mbps
The speeds indicated represent the maximum estimated fixed-line speeds as predicted by Ofcom. Please note that these are estimates, and actual service availability and speeds may differ.

Property Location

Show Map

Mortgage Calculator

Disclaimer: The following calculations act as a guide only, and are based on a typical repayment mortgage model. Financial decisions should not be made based on these calculations and accuracy is not guaranteed. Always seek professional advice before making any financial decisions.

Contact Agent

Contact McGeowns

Contact McGeowns

Request More Information
Requesting Info about...
48 Harberton Park, Malone, Belfast, BT9 6TT 48 Harberton Park, Malone, Belfast, BT9 6TT

By registering your interest, you acknowledge our Privacy Policy