Contact Agent
Contact Templeton Robinson (Lisburn Road)
4 Bed Semi-Detached House
8 Balmoral Avenue
Malone, Belfast, BT9 6NW
offers over
£575,000
Key Features & Description
Superb, Spacious Modern Semi-detached home
Reception Hall with cloakroom and Ground Floor WC
Living room with raised Contemporary Gas Fire
Contemporary Modern kitchen with Breakfast Island opening into family dining area
Dining/ family area with double glazed access door to rear garden
Utility room with excellent storage
Four double bedrooms to the first and second floor bedrooms, Principal with luxurious ensuite, dressing room. Bedroom 2 with luxurious ensuite
Bathroom with White Suite and Separate shower Cubicle
Gas fired central heating, underloor heating on ground floor/ UPVC double glazed
High standard of finish with adaptable accommodation ideal for modern living
Driveway parking for multiple vehicles leading to Detached Garage, enclosed private rear garden Ideal for Outdoor Entertaining
Close to top local schools, recreational facilities and excellent access to major road networks/ Balmoral Train Station
Within Walking distance to Lisburn Road shops, cafes, and restaurants
Description
This superb, deceptively spacious modern three-storey semi-detached home is situated in a highly sought-after and extremely convenient residential location, with an excellent range of amenities close by, including those on the Lisburn Road.
The property offers generous and adaptable accommodation, finished to a high standard throughout and further enhanced by a wealth of attractive features. Of particular note is the open-plan kitchen with breakfast island, flowing into the family/dining area, complemented by an additional separate living room to the ground floor.
The upper floors provide four double bedrooms, including a principal bedroom with en-suite shower room and walk-in dressing room, bedroom 2 also with ensuite. Overall, the layout is ideally suited to meet the demands of modern living.
This desirable address also benefits from proximity to some of the area's leading schools, excellent recreational facilities and access to major road networks further enhance convenience and lifestyle.
Recent sales in this sought-after location have been exceptionally strong, and with so much to offer, this impressive property is expected to attract significant interest. Early viewing is highly recommended to avoid disappointment.
This superb, deceptively spacious modern three-storey semi-detached home is situated in a highly sought-after and extremely convenient residential location, with an excellent range of amenities close by, including those on the Lisburn Road.
The property offers generous and adaptable accommodation, finished to a high standard throughout and further enhanced by a wealth of attractive features. Of particular note is the open-plan kitchen with breakfast island, flowing into the family/dining area, complemented by an additional separate living room to the ground floor.
The upper floors provide four double bedrooms, including a principal bedroom with en-suite shower room and walk-in dressing room, bedroom 2 also with ensuite. Overall, the layout is ideally suited to meet the demands of modern living.
This desirable address also benefits from proximity to some of the area's leading schools, excellent recreational facilities and access to major road networks further enhance convenience and lifestyle.
Recent sales in this sought-after location have been exceptionally strong, and with so much to offer, this impressive property is expected to attract significant interest. Early viewing is highly recommended to avoid disappointment.
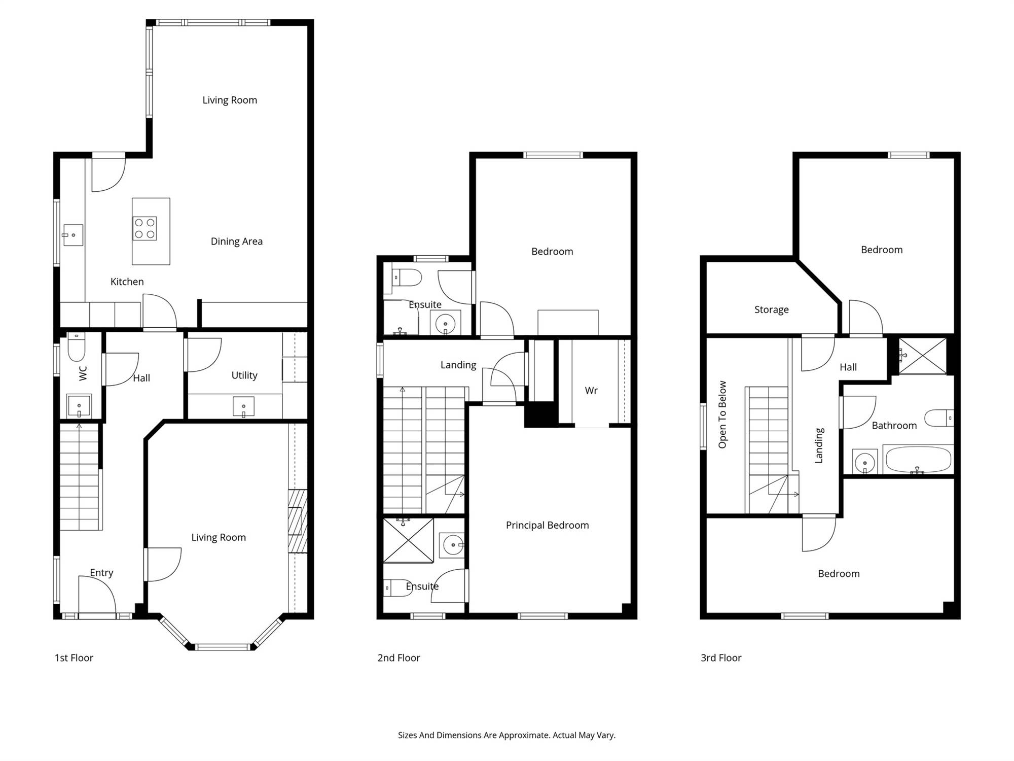
Rooms
Composite front door, glazed top sidelight and toplight to...
RECEPTION HALL:
Oak herringbone style floor, storage understairs, part panelled walls.
DOWNSTAIRS W.C.:
Comprising low flush W, chrome heated towel rail, vanity unit with chrome mixer tap, built in cabinet below, tiled splash back, oak herringbone style floor.
LIVING ROOM: 17' 8" X 12' 8" (5.38m X 3.86m)
Into bay window, part wood panelled walls, oak herringbone style floor, raised wall mounted gas fire, built in open shelving.
UTILITY ROOM: 7' 7" X 7' 10" (2.31m X 2.39m)
Range of high and low level units, stainless steel single drainer sink unit, laminate worktops, raised washing machine and vented for tumble dryer, herringbone style floor.
KITCHEN / LIVING / DINING: 23' 3" X 19' 7" (7.09m X 5.97m)
(at widest points). Modern contemporary fully fitted kitchen with excellent range of high and low level units, Granite worktops, single drainer stainless steel 1.5 sink unit with quooker tap, built in Siemens oven with additional grill, pull out larder cupboard, integrated dishwasher, integrated fridge/freezer, breakfast island with Granite worktops, 5 ring Siemens induction hob with extractor fan above, built in breakfast bar, open to ample dining and living with oak herringbone style floor, opening into
SUN ROOM: Feature wood panelled display TV wall, outlook to rear garden, low voltage spotlighting, dual aspect windows, upvc access door to rear garden.
LANDING:
Hotpress with built in shelving.
BEDROOM (1): 15' 9" X 12' 7" (4.80m X 3.84m)
Oak herringbone style floor, walk in dressing room with excellent storage and built in cupboards.
ENSUITE:
White suite comprising close coupled WC, vanity unit with chrome mixer tap, built in cabinet below, walk in shower with soak away, chrome overhead shower unit, extractor fan, ceramic tiled floor, fully tiled walls.
BEDROOM (2): 13' 11" X 12' 6" (4.24m X 3.81m)
Oak herringbone style floor, part panelled walls.
ENSUITE:
White suite comprising close coupled WC, vanity unit with chrome mixer tap and cabinet below, built in shower cubicle with chrome over head shower unit, fully tiled walls, ceramic tiled floor, low voltage spotlighting, extractor fan, heated towel rail.
LANDING:
Walk in storage cupboard - storage into eaves.
BEDROOM (3): 13' 11" X 12' 6" (4.24m X 3.81m)
Velux window with excellent views across Antrim hills.
BATHROOM:
White suite comprising low flush WC, panelled bath with chrome mixer tap, vanity unit with chrome mixer tap and built in cabinet bellow, mirror recess, built in shower with chrome shower unit, pvc panelled splashback, fully tiled walls, porcelain tiled floor, heated towel rail, access to roofspace, low voltage spotlighting, velux window.
BEDROOM (4): 19' 8" X 10' 1" (5.99m X 3.07m)
Outlook to front.
REAR:
Enclosed rear garden laid in Granite paved patio area ideal for BBQing and outdoor entertaining, flowerbeds with shrubs and mature trees.
GARAGE: 20' 1" X 11' 9" (6.12m X 3.58m)
Shutter, light and power.
FRONT:
Driveway with off-street parking for 3 cars, watertap to side, pvc fascia and soffit boards.
Broadband Speed Availability
Potential Speeds for 8 Balmoral Avenue
Max Download
1800
Mbps
Max Upload
220
MbpsThe speeds indicated represent the maximum estimated fixed-line speeds as predicted by Ofcom. Please note that these are estimates, and actual service availability and speeds may differ.
Property Location
Mortgage Calculator
Directions
From Lisburn Road number 8 is approximately 200 yards on the left.
Contact Agent
Contact Templeton Robinson (Lisburn Road)
Request More Information
Requesting Info about...
8 Balmoral Avenue, Malone, Belfast, BT9 6NW
By registering your interest, you acknowledge our Privacy Policy
By registering your interest, you acknowledge our Privacy Policy