Contact Agent

Contact Templeton Robinson (Lisburn Road)

Contact Templeton Robinson (Lisburn Road)

3 Bed Semi-Detached House

2 Malone Chase

Malone Road, Belfast, BT9 6XF

offers over £335,000
  • Status For Sale
  • Property Type Semi-Detached
  • Bedrooms 3
  • Receptions 2
  • Heating Gas
  • EPC Rating C69 / C72
  • Stamp Duty
    Higher amount applies when purchasing as buy to let or as an additional property
    £6,750 / £23,500*
  • Typical Mortgage
    Click price to use our mortgage calculator
EPC Rating

Key Features & Description

Excellent Semi Detached Villa in Prime Residential Location in South Belfast
Living Room Opening to Kitchen & Dining Area
3 Well Proportioned Bedrooms
Deluxe Main Bathroom with Three Piece Suite & Deluxe Shower Cubicle
Garden Areas to Front, Side & Rear
Driveway Parking
uPVC Framed Double Glazed Windows
Gas Fired Central Heating
Conveniently Positioned for Those Seeking Good Access to Queen's University, Belfast City Hospital & Belfast City Centre
Walking Distance to a Range of Popular Schools
Description
An excellent semi detached villa in a prime residential location and small development off the Malone Road in south Belfast.
The accommodation comprises, on the ground floor, a well proportioned living room, modern fitted kitchen and dining area. Upstairs are three bedrooms and a deluxe modern bathroom. In addition the property benefits from uPVC framed double glazed window, gas fired central heating, garden areas to front, side and rear and driveway parking.
Excellent access to the city centre, Queen's University, Belfast City Hospital and walking distance to a range of schools, will have wide ranging appeal.

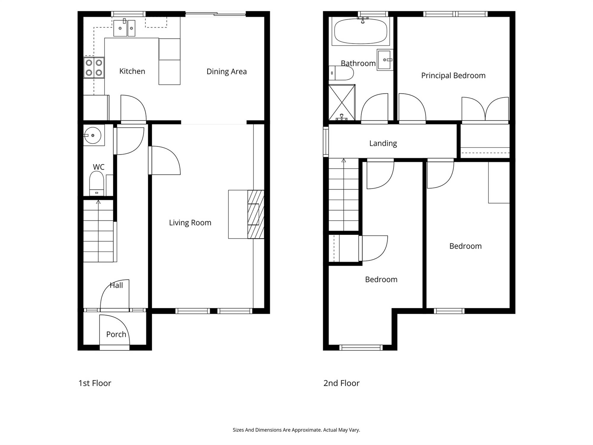
Rooms

Front door to . . .
RECEPTION HALL: Storage cupboard understairs.
CLOAKROOM / WC: Low flush wc, wash hand basin, part tiled walls, tiled floor, extractor fan.
LIVING ROOM: 16' 9" X 10' 8" (5.11m X 3.25m) Feature brick fireplace, tiled hearth. Archway to . . .
MODERN FITTED KITCHEN & DINING AREA: 12' 8" X 8' 2" (3.86m X 2.49m) Excellent range of modern high and low level units, single drainer stainless steel sink unit, space for fridge freezer, space for cooker, stainless steel canopy and fan, plumbed for washing machine, space for tumble dryer, sliding patio door to rear garden.
LANDING: Access to floored roofspace, gas boiler.
BEDROOM (1): 10' 8" X 9' 10" (3.25m X 3.00m) Walk-in double robe.
BEDROOM (2): 13' 11" X 7' 9" (4.24m X 2.36m)
BEDROOM (3): 13' 9" X 8' 10" (4.19m X 2.69m) Walk-in robe.
DELUXE MODERN BATHROOM: Free standing bath with mixer tap and telephone hand shower, double shower cubicle, wash hand basin, low flush wc, shower cubicle, heated towel rail style radiator, ceramic tiled floor.
Garden areas to front, side and rear in lawns. Driveway parking.

Broadband Speed Availability

Ultrafast

Potential Speeds for 2 Malone Chase

Max Download
10000
Mbps
Max Upload
10000
Mbps
The speeds indicated represent the maximum estimated fixed-line speeds as predicted by Ofcom. Please note that these are estimates, and actual service availability and speeds may differ.

Property Location

Show Map

Mortgage Calculator

Disclaimer: The following calculations act as a guide only, and are based on a typical repayment mortgage model. Financial decisions should not be made based on these calculations and accuracy is not guaranteed. Always seek professional advice before making any financial decisions.

Directions

Heading out of town on the Malone Road take right hand turn after Sans Souci Park on the left hand side.

Contact Agent

Contact Templeton Robinson (Lisburn Road)

Contact Templeton Robinson (Lisburn Road)

Request More Information
Requesting Info about...
2 Malone Chase, Malone Road, Belfast, BT9 6XF 2 Malone Chase, Malone Road, Belfast, BT9 6XF

By registering your interest, you acknowledge our Privacy Policy