Contact Agent
Contact Templeton Robinson (Lisburn Road)
4 Bed Detached House
26 Mount Eden Park
Malone, Belfast, BT9 6RB
offers over
£549,950
Key Features & Description
Attractive Detached Family Home in Prime South Belfast Location with South Facing Garden
Entrance Porch with Large Under Stairs Storage
Entrance Hall with Wood Strip Floor and Part Panelled Walls
Lounge and Separate Living Room, Both With Fireplaces
Dining Room
Fitted Kitchen
Downstairs wc
Four Good Sized Bedrooms
Main Bathroom
Oil Fired Central Heating / UPVC Double Glazed Windows
Private Site & Beautifully Landscaped South-Facing Rear Gardens in Lawns with Bushes & Trees, Large Paved Patio Area
Pillars to Paved Parking for Four Cars and Double Length Detached Garage
Convenient to Many Amenities Including Public Transport & Many Leading Schools in the Area
Super Family Home now in need of Modernisation and Updating
Description
This excellent, detached home offers an excellent, south facing rear garden with huge potential for renovation and extension (subject to planning), it is now ready for modernisation and updating.
The property is extremely convenient to a host of amenities in the surrounding area including; shops, public transport and leading schools.
The property offers well proportioned accommodation comprising; entrance porch with excellent under stairs storage and spacious entrance hall. There are three reception rooms, fitted kitchen and downstairs wc. On the first floor there are four good sized bedrooms and main bathroom.
Externally there are delightful gardens to the front in lawns and landscaped beds, south facing rear gardens in lawns and beds, large paved patio area. There are pillars to paved parking for four cars and double length garage.
We anticipate interest should be high thus an early viewing is encouraged.
This excellent, detached home offers an excellent, south facing rear garden with huge potential for renovation and extension (subject to planning), it is now ready for modernisation and updating.
The property is extremely convenient to a host of amenities in the surrounding area including; shops, public transport and leading schools.
The property offers well proportioned accommodation comprising; entrance porch with excellent under stairs storage and spacious entrance hall. There are three reception rooms, fitted kitchen and downstairs wc. On the first floor there are four good sized bedrooms and main bathroom.
Externally there are delightful gardens to the front in lawns and landscaped beds, south facing rear gardens in lawns and beds, large paved patio area. There are pillars to paved parking for four cars and double length garage.
We anticipate interest should be high thus an early viewing is encouraged.
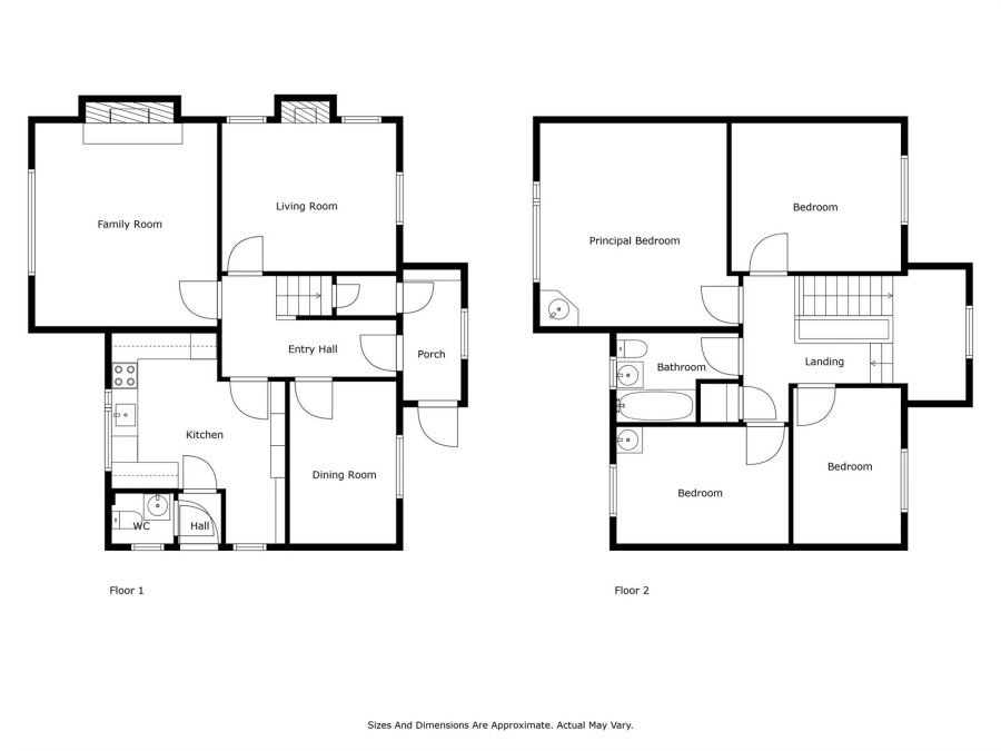
Rooms
Hardwood front door and glazing to . . .
ENTRANCE PORCH:
Ceramic tiled floor, part panelled walls, cloaks cupboard. Hardwood door and glazing to . . .
ENTRANCE HALL:
Wood strip floor, part panelled walls, cornice ceiling.
LIVING ROOM: 12' 8" X 10' 11" (3.86m X 3.33m)
(at widest points). Fireplace with electric inset, cornice ceiling, glazed shelving.
LOUNGE: 14' 11" X 13' 10" (4.55m X 4.22m)
(at widest points). Fireplace with tiled hearth, cornice ceiling, ceiling rose.
DINING ROOM: 11' 11" X 7' 3" (3.63m X 2.21m)
FITTED KITCHEN: 11' 11" X 11' 10" (3.63m X 3.61m)
(at widest points). Range of high and low level units, work surfaces, single drainer stainless steel sink unit, space for cooker and fridge, oil fired boiler, door to rear porch.
REAR HALL:
Ceramic tiled floor, part panelled walls.
CLOAKROOM / WC:
Low flush wc, wash hand basin, ceramic tiled floor, painted part tiled walls.
LANDING:
Part panelled walls, access to roofspace, hotpress.
BEDROOM (1): 15' 2" X 14' 11" (4.62m X 4.55m)
Wash hand basin and built-in storage.
BEDROOM (2): 12' 3" X 11' 6" (3.73m X 3.51m)
Built-in wardrobes and drawers.
BEDROOM (3): 12' 7" X 7' 11" (3.84m X 2.41m)
BEDROOM (4): 13' 4" X 8' 10" (4.06m X 2.69m)
MODERN BATHROOM:
White suite comprising low flush wc, pedestal wash hand basin, panelled bath with electric shower over, fully tiled walls, ceramic tiled floor.
Pillars to paved and concrete parking for 4-5 cars. Front garden in lawns with beds in bushes and shrubs. Enclosed, south facing rear garden laid in lawns with beds in bushes, shrubs and apple tree, paved patio area.
DOUBLE LENGTH GARAGE: 31' 1" X 12' 9" (9.47m X 3.89m)
Up and over door, plumbed for washing machine, space for tumble dryer.
Broadband Speed Availability
Potential Speeds for 26 Mount Eden Park
Max Download
1800
Mbps
Max Upload
220
MbpsThe speeds indicated represent the maximum estimated fixed-line speeds as predicted by Ofcom. Please note that these are estimates, and actual service availability and speeds may differ.
Property Location
Mortgage Calculator
Directions
Heading out of Belfast on the Malone Road, Mount Eden Park is on the right hand side before the House of Sport roundabout.
Contact Agent
Contact Templeton Robinson (Lisburn Road)
Request More Information
Requesting Info about...
26 Mount Eden Park, Malone, Belfast, BT9 6RB
By registering your interest, you acknowledge our Privacy Policy
By registering your interest, you acknowledge our Privacy Policy