Contact Agent
Contact Templeton Robinson (Lisburn Road)
5 Bed Detached House
The Stables, 9 Deramore Park South
Malone Road, Belfast, BT9 5JY
offers over
£1,595,000
Key Features & Description
Former 19th Century Stables which have been Smypathetically Extended and Renovated to this Stunning Modern Property with Homely Ambiance
Inviting Entrance Hall
Dining Hall with Original Slate Floor and Feature Oak Beams
Drawing Room with Feature Fireplace
Entertainment Sized Modern Fitted Kitchen with Range of Integrated Appliances and Impressive Feature Island and Breakfast Bar
Open Plan to Casual Dining Room with Access to Secluded Courtyard and Living Room with Sliding Door to Paved Balcony
Home Office with Bespoke Built in Units & Fireplace
Fully Fitted Home Bar with Access to Delightful Courtyard
Utility and Boot Room
Five Bedrooms, Principal Bedroom with Ensuite and Walk in Robe, Three Other Bedrooms Two with Excellent Mezzaine Storage
Modern Bathroom
Ground Floor Guest Bedroom (5) with Ensuite Shower Room
Superb Basement Living/Entertainment Room with access to Gym & Garden
Gas Heating / Double Glazed Windows
Private Laneway Accessed Via Electric Gates to Driveway Parking for a Number of Cars
Mature Surrounding Gardens with an Array of Specimen Trees, Artificial Grass and Beds in Shrubs and Bushes, Timber Hot Tub Area and Landscaped Courtyard, Extensive Outdoor Lighting
Ideal Location Close to Many Local Amenities in the Malone Area, Access into the City Centre and Many Popular Schools
Description
'A little bit of the country in the city', this fabulous home is accessed by a private laneway. In a most secluded setting just off the Malone Road this is a truly outstanding, sympathtically extended detached home. The property was originally part of the old Adams Estate and a former 19th Century stables which have been converted, renovated and extended to offer stunning accommodation ideal for family requirements.
There are an array of many original fine features alongside the benefits of all the additional modern conveniences; such as a superb contemporary German kitchen with large breakfast island opening to living and dining space. It also benefits from a home bar and extends to the first floor balcony with stunning views and enclosed courtyard sun terrace.
The property is presented to an exceptional standard and offers generous accommodation with a layout adaptable to differing family requirements.
Outside there are well tended gardens laid in artificial lawns with beds in shrubs and bushes, secluded courtyard, garden storage, hot tub and good sized driveway parking.
In close proximity to a host of popular primary and secondary schools, the situation and space is ideal for a new family to move in and enjoy.
'A little bit of the country in the city', this fabulous home is accessed by a private laneway. In a most secluded setting just off the Malone Road this is a truly outstanding, sympathtically extended detached home. The property was originally part of the old Adams Estate and a former 19th Century stables which have been converted, renovated and extended to offer stunning accommodation ideal for family requirements.
There are an array of many original fine features alongside the benefits of all the additional modern conveniences; such as a superb contemporary German kitchen with large breakfast island opening to living and dining space. It also benefits from a home bar and extends to the first floor balcony with stunning views and enclosed courtyard sun terrace.
The property is presented to an exceptional standard and offers generous accommodation with a layout adaptable to differing family requirements.
Outside there are well tended gardens laid in artificial lawns with beds in shrubs and bushes, secluded courtyard, garden storage, hot tub and good sized driveway parking.
In close proximity to a host of popular primary and secondary schools, the situation and space is ideal for a new family to move in and enjoy.
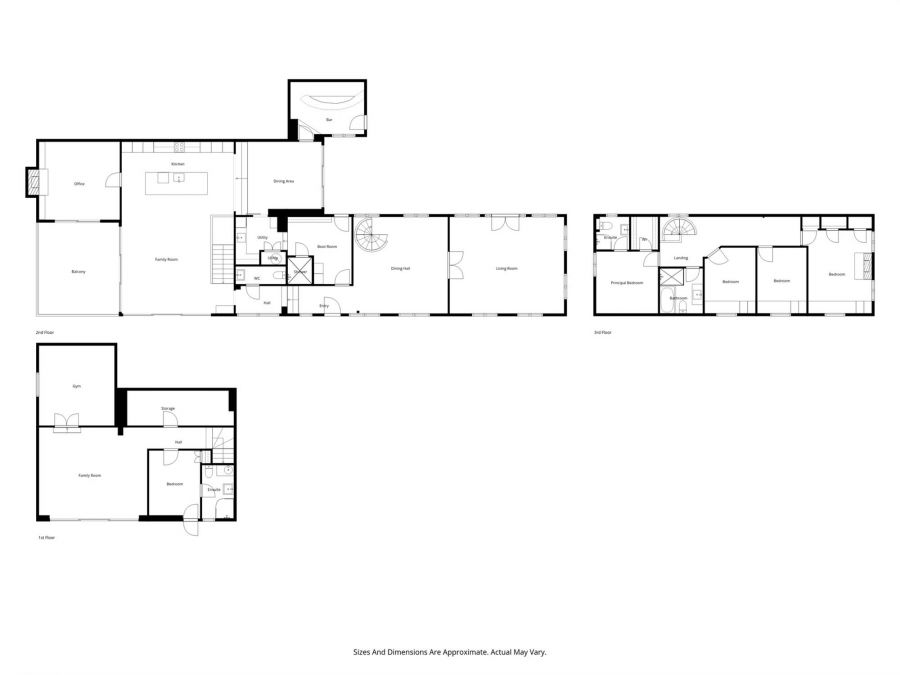
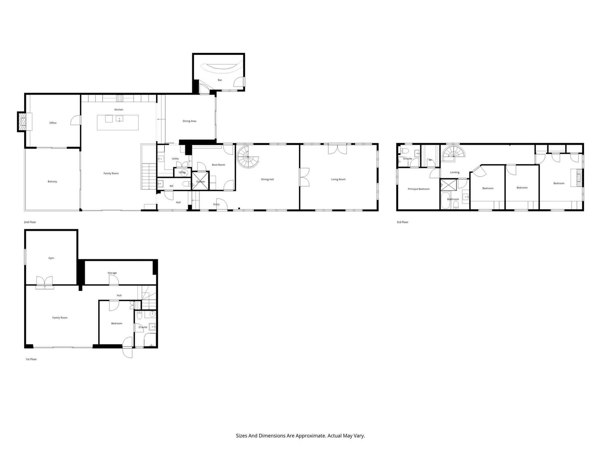
Rooms
Hardwood front door to . . .
ENTRANCE HALL:
Stone tiled floor.
CLOAKROOM / WC:
Low flush wc, wash hand basin, part panelled walls, low voltage spotlights, extractor fan, tiled floor.
DINING HALL: 17' 4" X 17' 0" (5.28m X 5.18m)
Exposed beams, stone floor, spiral staircase to first floor. Double doors and glazing to . . . .
DRAWING ROOM: 19' 3" X 17' 9" (5.87m X 5.41m)
Feature fireplace with slate hearth, glazed doors to enclosed courtyard.
BOOT ROOM & UTILITY ROOM: 21' 2" X 11' 9" (6.45m X 3.58m)
Range of units, built-in seating and hanging space, ceramic tiled floor, glazed door to courtyard, plumbed for washing machine, space for tumble dryer, part tiled floor, comms unit, sliding door to kitchen.
WET ROOM:
Fully tiled shower cubicle, ceramic tiled floor, low voltage spotlights, extractor fan.
MODERN FITTED KITCHEN OPEN PLAN TO DINING ROOM & LIVING ROOM: 39' 0" X 36' 2" (11.89m X 11.02m)
Range of handless high and low level units, corian work surfaces, Siemens double ovens, Siemens coffee machine and warming drawer, integrated induction hob, integrated fridge freezer, large island unit and breakfast bar with integrated Siemens dishwasher, Blanco sink with Quooker tap, tiled floor, Velux windows, sliding door to paved first floor balcony.
HOME OFFICE: 14' 7" X 13' 6" (4.44m X 4.11m)
Attractive painted fireplace with inset and feature tiling, slate hearth, bespoke built-in shelving, sliding door to balcony/terrace.
HOME BAR: 13' 7" X 9' 7" (4.14m X 2.92m)
Fully fitted bar with seating, built-in shelving, stainless steel sink, ceramic tiled floor, Velux window, stable door to courtyard.
LANDING:
Exposed beams, low voltage spotlights, storage into eaves.
BEDROOM (1): 11' 4" X 11' 3" (3.45m X 3.43m)
Walk-in wardrobe with rails and shelving, low voltage spotlights, exposed beams.
ENSUITE SHOWER ROOM:
White suite comprising low flush wc, wash hand basin, fully tiled shower cubicle, part tiled walls, ceramic tiled floor, low voltage spotlights.
MODERN BATHROOM:
White suite comprising low flush wc, feature vanity unit with wash hand basin, panelled bath, fully tiled shower cubicle, fully tiled walls, ceramic tiled floor, low voltage spotlights, extractor fan, Velux window.
BEDROOM (2): 15' 5" X 11' 6" (4.70m X 3.51m)
Range of built-in wardrobes, units, drawers and desk, Velux window, low voltage spotlights, exposed beams, feature brick fireplace, dual aspect.
BEDROOM (3): 11' 9" X 9' 0" (3.58m X 2.74m)
Built-in wardrobes, drawers and desk, Velux window, low voltage spotlights, ladder to mezzanine.
BEDROOM (4): 11' 8" X 9' 1" (3.56m X 2.77m)
Built-in wardrobes, drawers and desk, exposed beams, low voltage spotlights, Velux window, ladder mazzanine.
Walnut stairs to . . .
HALL:
Low voltage spotlights.
LUGGAGE ROOM:
Low voltage spotlights.
GUEST/BEDROOM (5): 12' 3" X 9' 4" (3.73m X 2.84m)
(at widest points). Built-in wardrobe.
ENSUITE SHOWER ROOM:
White suite comprising low flush wc, wash hand basin, fully tiled shower cubicle with drencher shower, fully tiled walls, ceramic tiled floor, extractor fan, low voltage spotlights.
ENTERTAINMENT ROOM/ADDITIONAL LIVING ROOM: 19' 3" X 15' 9" (5.87m X 4.80m)
Ceramic tiled floor, low voltage spotlights, sliding door to gardens. Double oors to gym.
HOME GYM: 14' 4" X 13' 7" (4.37m X 4.14m)
Low voltage spotlights.
Electric entrance gates with private laneway to tarmac parking for several cars, srtifical grass lawns with boundry fencing and trees. Built-in garden storage. Delightful courtyard which is landscaped in beds, bushes and trees. Wooden sitting area, hot tub, extensive external lighting.
Broadband Speed Availability
Potential Speeds for 9 Deramore Park South
Max Download
10000
Mbps
Max Upload
10000
MbpsThe speeds indicated represent the maximum estimated fixed-line speeds as predicted by Ofcom. Please note that these are estimates, and actual service availability and speeds may differ.
Property Location
Mortgage Calculator
Directions
Travelling along the Malone Road turn into Deramore Park South. Number 9 is on the right via a tree lined driveway.
Contact Agent
Contact Templeton Robinson (Lisburn Road)
Request More Information
Requesting Info about...
The Stables, 9 Deramore Park South, Malone Road, Belfast, BT9 5JY
By registering your interest, you acknowledge our Privacy Policy
By registering your interest, you acknowledge our Privacy Policy