Contact Agent
Contact Templeton Robinson (Lisburn Road)
5 Bed Detached House
64 Balmoral Avenue
Malone, Belfast, BT9 6NY
offers over
£675,000
- Status For Sale
- Property Type Detached
- Bedrooms 5
- Receptions 2
- Heating Oil
-
Stamp Duty
Higher amount applies when purchasing as buy to let or as an additional property£23,750 / £57,500*
Key Features & Description
Attractive Red Brick Detached Family Home, Constructed Late 1800s
Sympathetically Extended And Modernised Over Recent Years
Deceptively Spacious Family Accommodation over 2 Floors
Five Bedrooms with Principle Bedroom incorporating an En-Suite Shower Room
Superb Open Plan Living/Dining With Fireplace and Twin Double Doors To Garden
Sitting Room, Study and Large Front Sun Porch
Fully Fitted Kitchen opening to ample Dining Area
Separate Utility Room
Family Bathroom And Additional Wet Room
Oil Fired Central Heating/ Double Glazed Windows
Stunning Well Attended Gardens Laid In Lawns with large raised decked area ideal for BBQ and Outdoor Entertaining
Popular And Sought After Residential Location In South Belfast, withing walking distance of the Lisburn Road, excellent Schooling And Transport Routes including the Balmoral Train Station
Description
An elegant red-brick detached family home, originally constructed in the late 1800s, this property has been thoughtfully extended and modernised in recent years while retaining its original charm.
Offering deceptively spacious accommodation, the home comprises five well-proportioned bedrooms and superb open-plan living and dining space, complete with twin double doors opening onto the garden. Additional living areas include comfortable sitting room, and a dedicated study.
The property also benefits from a fully fitted kitchen, a separate utility room, a family bathroom, and an additional wet room.
Externally, the home is set within beautifully south west facing maintained gardens to the front, side, and rear, predominantly laid in lawns and enhanced by mature trees, shrubs, and flowerbeds.
Ideally situated in a highly sought-after residential area of South Belfast, the property enjoys close proximity to a wide range of local amenities, reputable schools, and excellent transport links to Belfast city centre and beyond. Tucked away off a private laneway shared with just one other home off Balmoral Avenue, it offers both convenience and a sense of privacy.
This home is perfectly suited to the needs of a growing family but also may suit the downsizing market.
An elegant red-brick detached family home, originally constructed in the late 1800s, this property has been thoughtfully extended and modernised in recent years while retaining its original charm.
Offering deceptively spacious accommodation, the home comprises five well-proportioned bedrooms and superb open-plan living and dining space, complete with twin double doors opening onto the garden. Additional living areas include comfortable sitting room, and a dedicated study.
The property also benefits from a fully fitted kitchen, a separate utility room, a family bathroom, and an additional wet room.
Externally, the home is set within beautifully south west facing maintained gardens to the front, side, and rear, predominantly laid in lawns and enhanced by mature trees, shrubs, and flowerbeds.
Ideally situated in a highly sought-after residential area of South Belfast, the property enjoys close proximity to a wide range of local amenities, reputable schools, and excellent transport links to Belfast city centre and beyond. Tucked away off a private laneway shared with just one other home off Balmoral Avenue, it offers both convenience and a sense of privacy.
This home is perfectly suited to the needs of a growing family but also may suit the downsizing market.
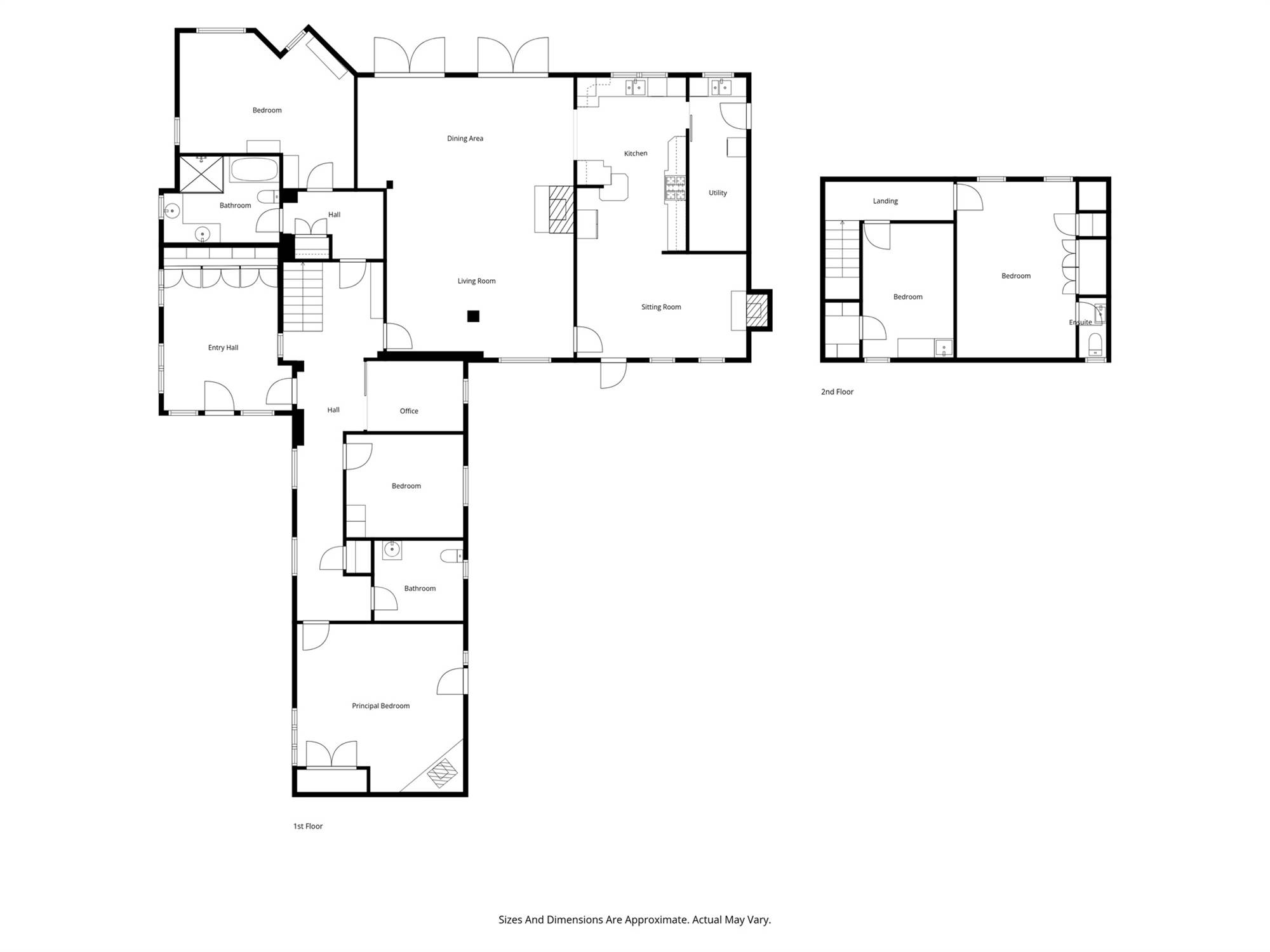
Rooms
Hardwood front door with glazed sidelight to . . .
RECEPTION PORCH: 15' 3" X 11' 8" (4.65m X 3.56m)
Glass atrium, ceramic tiled floor, wall to wall built-in cupboards. Glazed inner door to . . .
RECEPTION HALL:
Ceramic tiled floor, airing cupboard with built-in shelving and radiator.
LIVING ROOM: 28' 5" X 21' 7" (8.66m X 6.58m)
Amtico floor, dual aspect windows, twin double glazed French doors to rear garden with beautiful mature outlook, glass atrium, limestone surround fireplace with granite hearth and open fire. Archway through to . . .
KITCHEN: 29' 9" X 16' 9" (9.07m X 5.11m)
(at widest points, L-shaped). Fully fitted kitchen with range of high and low level Shaker style units, laminate work surfaces, built-in Beko oven, four ring gas hob with extractor fan above and granite worktop, part tiled walls, stainless steel single drainer 1.5 bowl sink unit with mixer tap, built-in display unit, low voltage spotlights, plumbed for American fridge freezer, two Velux windows, mature outlook over rear garden, dual aspect windows. Open to ample dining area with ceramic tiled floor, cast iron wood burning stove with tiled hearth, uPVC double glazed door to side garden, hatch to roofspace.
UTILITY ROOM: 17' 9" X 5' 8" (5.41m X 1.73m)
Plumbed for washing machine, ceramic tiled floor, stainless steel double drainer sink unit with mixer tap, double glazed door to side.
PRINCIPAL SUITE:
Built-in cupboard.
BEDROOM (1): 17' 7" X 14' 10" (5.36m X 4.52m)
(at widest points). Beech wooden floor, mature outlook, dual aspect windows.
ENSUITE BATHROOM: 10' 8" X 6' 6" (3.25m X 1.98m)
White suite comprising low flush wc, Jack and Jill vanity unit with granite worktop and built-in cabinet below, walk-in shower with Aqua Stream shower unit, soak away, porcelain tiled floor, tiled bath with chrome mixer tap, built-in shelving, Velux window, heated towel rail, built-in shelving, ceramic tiled floor.
BEDROOM (2): 12' 5" X 10' 10" (3.78m X 3.30m)
Laminate wood effect floor, access to roofspace.
BEDROOM (3)/FAMILY ROOM: 16' 7" X 16' 7" (5.05m X 5.05m)
Cast iron electric stove, *** POSSIBLY GAS ***,ceramic tiled floor, built-in wardrobe, uPVC door to patio garden.
WET ROOM:
White suite comprising low flush wc, floating wash hand basin with chrome mixer tap, built-in Mira Sport electric shower unit, soak away, ceramic tiled floor, fully tiled walls, extractor fan.
LANDING:
Storage into eaves.
BEDROOM (4): 13' 5" X 10' 8" (4.09m X 3.25m)
Walk-in cupboard.
BEDROOM (5): 17' 8" X 12' 3" (5.38m X 3.73m)
Outlook to garden, views across to Black Mountain, large built-in storage including wardrobes and cupboards.
ENSUITE WC:
White suite comprising low flush wc, vanity unit with chrome mixer tap and built-in cabinet below, part tiled walls.
Enclosed, south-west facing rear garden laid in extensive lawns with raised flower beds, mature trees, shrubs, excellent degree of privacy, raised timber decking ideal for barbecuing and outdoor entertaining, raised vegetable patch. Boiler house with oil fired boiler and built-in shelving, uPVC storage tank. Additional patio garden with paved patio area, mature trees and shrubs, garden shed. Driveway with off street parking, electric car charging point.
Broadband Speed Availability
Potential Speeds for 64 Balmoral Avenue
Max Download
10000
Mbps
Max Upload
10000
MbpsThe speeds indicated represent the maximum estimated fixed-line speeds as predicted by Ofcom. Please note that these are estimates, and actual service availability and speeds may differ.
Property Location
Mortgage Calculator
Directions
From the Lisburn Road turn left onto Balmoral Avenue and number 64 is on the left hand side.
Contact Agent
Contact Templeton Robinson (Lisburn Road)
Request More Information
Requesting Info about...
64 Balmoral Avenue, Malone, Belfast, BT9 6NY
By registering your interest, you acknowledge our Privacy Policy
By registering your interest, you acknowledge our Privacy Policy