Contact Agent
Contact Templeton Robinson (Lisburn Road)
5 Bed Semi-detached
4 Malone Chase
Malone, Belfast, BT9 6XF
offers over
£495,000
Key Features & Description
Fully Renovated and Extended Semi-Detached Home in Immaculate Condition with Enclosed Rear Gardens
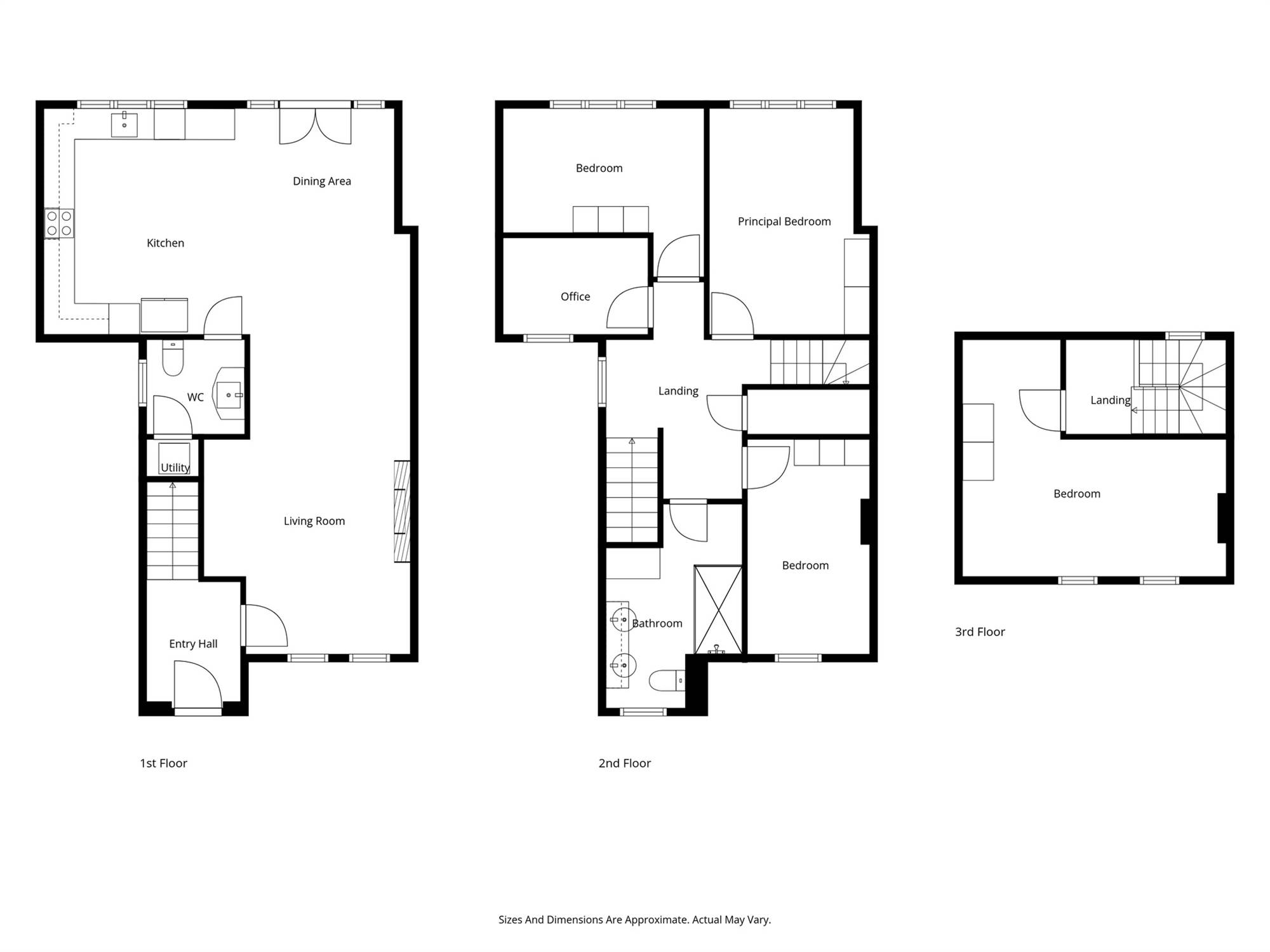
Entrance Hall
Spacious Lounge with Oak Floor and Glass Fronted, Wall Mounted Electric Fire
Open plan to Dining Room and Modern Fitted Kitchen with Range of Integrated Appliances
Downstairs wc and Utility Area
Five Well Proportioned Bedrooms, One Currently Used as a Home Office
Modern Bathroom
Gas Heating / Double Glazed Windows
Delightful Rear Gardens in Lawns with Wooden Fencing and Shed
Driveway Parking to the Front with Three Car Parking Spaces
Conveniently Positioned for Those Seeking Good Access to the City Centre, Malone and Lisburn Road amenities, Queen's University, Belfast City Hospital & Belfast City Centre
Immaculate Presentation and Specification Throughout
Description
Beautifully presented and renovated to a high standard, this semi detached home is in an ideal location walking distance of the Malone and Lisburn Roads, the City Centre and a host of amenities including; shops, cafes, bars, restaurants and public transport alongside; The Royal and City Hospitals and Queens University.
The property is in super condition and comprises: entrance hall, spacious lounge open plan to dining room and modern fitted kitchen with range of appliances. There is a downstairs wc and utility area. There are four well-proportioned bedrooms, principal bedroom with ensuite, home office or fifth bedroom and modern bathroom.
Externally there is paved driveway parking for three cars, immaculate enclosed rear gardens in lawns with paved patio and surrounding fencing.
Recent sales of this particular style of property have proven extremely successful and with all this property has to offer early viewing is advised.
Beautifully presented and renovated to a high standard, this semi detached home is in an ideal location walking distance of the Malone and Lisburn Roads, the City Centre and a host of amenities including; shops, cafes, bars, restaurants and public transport alongside; The Royal and City Hospitals and Queens University.
The property is in super condition and comprises: entrance hall, spacious lounge open plan to dining room and modern fitted kitchen with range of appliances. There is a downstairs wc and utility area. There are four well-proportioned bedrooms, principal bedroom with ensuite, home office or fifth bedroom and modern bathroom.
Externally there is paved driveway parking for three cars, immaculate enclosed rear gardens in lawns with paved patio and surrounding fencing.
Recent sales of this particular style of property have proven extremely successful and with all this property has to offer early viewing is advised.
Rooms
Composite front door with glazing to:
ENTRANCE HALL:
Oak floor.
LOUNGE: 21' 4" X 13' 7" (6.50m X 4.14m)
(at widest points). Glass fronted wall mounted electric fire, oak floor.
DINING ROOM: 13' 8" X 11' 2" (4.17m X 3.40m)
(at widest points). Oak floor, glazed doors to rear. Open plan to:
MODERN FITTED KITCHEN: 14' 0" X 12' 10" (4.27m X 3.91m)
Handless high gloss range of high and low level units, granite work surfaces and drainer, stainless steel sink, spacefor American fridge/freezer, integrated Beko oven, integrated Blanco hob, stainless steel extractor fan, integrated dishwasher, granite splashback, porcelain tiled floor, low voltage spotlights.
CLOAKROOM / WC:
Low flush wc, vanity unit with wash hand basin, porcelain tiled floor, heated towel rail, extractor fan.
UTILITY CUPBOARD:
Plumbed for washing machine, condensing gas boiler.
LANDING:
Oak floor, storage cupboard.
BEDROOM (1): 13' 10" X 9' 2" (4.22m X 2.79m)
Built-in robes with mirrored doors, oak floor.
BEDROOM (2): 12' 9" X 10' 11" (3.89m X 3.33m)
Oak floor.
BEDROOM (3): 14' 3" X 7' 9" (4.34m X 2.36m)
Oak floor.
BEDROOM (5)/HOME OFFICE: 9' 3" X 5' 10" (2.82m X 1.78m)
Oak floor.
MODERN BATHROOM:
White suite comprising low flush wc, vanity unit with twin wash hand basins, fully tiled shower cubicle, porcelain wall and floor tiles. Low voltage spotlights, extractor fan, heated towel rail.
LANDING:
Oak floor, eaves storage, Velux window.
BEDROOM (4): 16' 9" X 14' 8" (5.11m X 4.47m)
(at widest points). Oak floor, Velux windows.
Paved driveway parking for three cars. Delightful enclosed rear gardens in lawn with boundary fencing, paved path and patio area. Outside light, power point and tap. Wooden shed.
Broadband Speed Availability
Potential Speeds for 4 Malone Chase
Max Download
10000
Mbps
Max Upload
10000
MbpsThe speeds indicated represent the maximum estimated fixed-line speeds as predicted by Ofcom. Please note that these are estimates, and actual service availability and speeds may differ.
Property Location
Mortgage Calculator
Directions
Heading out of town on the Malone Road take right hand turn after Sans Souci Park on the left hand side.
Contact Agent
Contact Templeton Robinson (Lisburn Road)
Request More Information
Requesting Info about...
4 Malone Chase, Malone, Belfast, BT9 6XF
By registering your interest, you acknowledge our Privacy Policy
By registering your interest, you acknowledge our Privacy Policy