Contact Agent

Contact Templeton Robinson (Lisburn Road)

Contact Templeton Robinson (Lisburn Road)

2 Bed Detached House

The Studio House, 46A Myrtlefield Park

Malone, Belfast, BT9 6NF

offers around £495,000
  • Status Sale Agreed
  • Property Type Detached
  • Bedrooms 2
  • Receptions 1
  • Heating Gas
  • EPC Rating C78 / C78 -
  • Stamp Duty
    Higher amount applies when purchasing as buy to let or as an additional property
    £14,750 / £39,500*
  • Typical Mortgage
    Click price to use our mortgage calculator
EPC Rating

Key Features & Description

Attractive detached villa constructed in 1998 of approximately 1600 sq ft
Modern fitted kitchen & dining area/Separate utility room
Bright spacious living room with sandstone fireplace open plan to modern fitted kitchen & dining area, separate utility room
2 bedrooms both with ensuite facilities
Gas fired central heating (underfloor on ground floor) & hardwood double glazed window frames
Driveway with entrance pillars & stone car parking, south facing stone paved patio
Description
The studio house was built in 1998 and is a bright comfortable two storey detached dwelling. The accommodation comprises a bright living room with sandstone fireplace open to modern fitted kitchen with dining area, separate utility room and two first floor bedrooms, both with ensuite facilities.
Outside there are entrance pillars to a stone driveway with parking and a South facing stone paved patio to the front of the dwelling.
Within walking distance of public transport, the convenience of shops and restaurants that are available on the Lisburn Road.

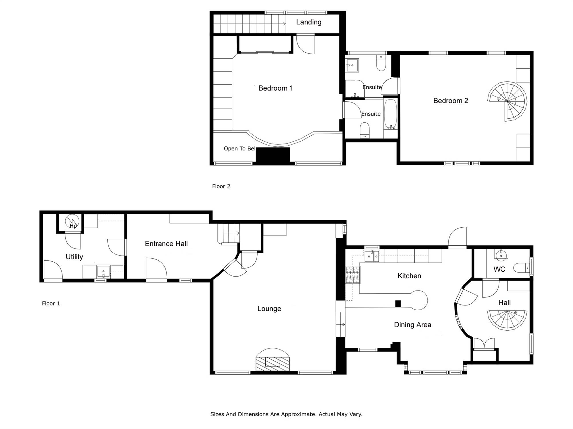
Rooms

Hardwood front door and feature glazing to . . .
ENTRANCE HALL: Tiled floor, Velux window, tongue and groove ceiling, circular window.
UTILITY ROOM: 11' 2" X 9' 2" (3.40m X 2.79m) Range of high and low level units, work surfaces, single drainer stainless steel sink unit, plumbed for washing machine, space for tumble dryer, gas boiler, circular window, low voltage spotlights, extractor fan, part tiled walls, tiled floor, hardwood door to front, airing cupboard.
LIVING ROOM: 20' 3" X 17' 4" (6.17m X 5.28m) Oak foor, sandstone fireplace with slate inset and hearth, low voltage spotlights. Open plan to . . .
MODERN FITTED KITCHEN & DINING AREA: 17' 10" X 14' 2" (5.44m X 4.32m) Range of high gloss, high and low level units, granite work surfaces and drainer, 1.5 bowl stainless steel sink, Bosch oven and five ring Smeg gas hob, stainless steel extractor fan, integrated fridge freezer, plumbed for dishwasher, circular breakfast bar, part tiled walls, tiled floor, low voltage spotlights, wooden door and stained glass window to rear.
REAR HALL: Cupboard, tiled floor.
CLOAKROOM / WC: Low flush wc, vanity unit with wash hand basin, low flush wc, tiled floor, low voltage spotlights, extractor fan.
Spiral staircase to . . .
LANDING: Feature window.
BEDROOM (1): 15' 5" X 15' 2" (4.70m X 4.62m) Pine floor, built-in wardrobes, Velux windows, low voltage spotlights.
ENSUITE SHOWER ROOM: White suite comprising low flush wc, pedestal wash hand basin, fully tiled shower cubicle, part tiled walls, ceramic tiled floor, Velux windows, low voltage spotlights.
BEDROOM (2): 17' 0" X 15' 7" (5.18m X 4.75m) Oak floor, large range of built-in wardrobes with mirrored doors, low voltage spotlights, Velux window, circular window.
ENSUITE BATHROOM: White suite comprising low flush wc, pedestal wash hand basin, panelled bath with shower over, part tiled walls, ceramic tiled floor, Velux window, heated towel rail.
Driveway with entrance pillars leading to stone car parking with space for several cars, south facing stone paved patio to front of dwelling.

Broadband Speed Availability

Ultrafast

Potential Speeds for 46A Myrtlefield Park

Max Download
1800
Mbps
Max Upload
220
Mbps
The speeds indicated represent the maximum estimated fixed-line speeds as predicted by Ofcom. Please note that these are estimates, and actual service availability and speeds may differ.

Property Location

Show Map

Mortgage Calculator

Disclaimer: The following calculations act as a guide only, and are based on a typical repayment mortgage model. Financial decisions should not be made based on these calculations and accuracy is not guaranteed. Always seek professional advice before making any financial decisions.

Directions

Travelling on the Malone Road out of town, Myrtlefield Park is the next on the right after St Johns Church.

Contact Agent

Contact Templeton Robinson (Lisburn Road)

Contact Templeton Robinson (Lisburn Road)

Request More Information
Requesting Info about...
The Studio House, 46A Myrtlefield Park, Malone, Belfast, BT9 6NF The Studio House, 46A Myrtlefield Park, Malone, Belfast, BT9 6NF

By registering your interest, you acknowledge our Privacy Policy
Ask Holmes
Ask Holmes
Let's find your next home

Are you sure you want to reset the chat?

Checking API...